Description
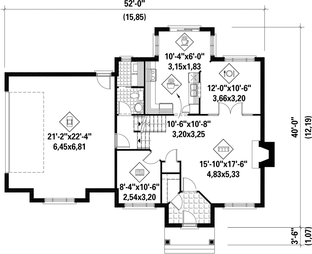
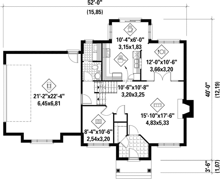
This prestigious two-storey house is 52 feet wide by 40 feet deep and provides 2,616 square feet of living space. The impressive entrance, architectural details, large windows and brick facing give the home a most elegant look.
With a 1,012 square foot living area, the ground floor includes a living room with a fireplace separated from the dining room by French doors, a kitchen with a breakfast nook, a powder room with a laundry area, and another room that can be used as an office or a studio. There is also a 552 square foot two-car garage with a side entrance.
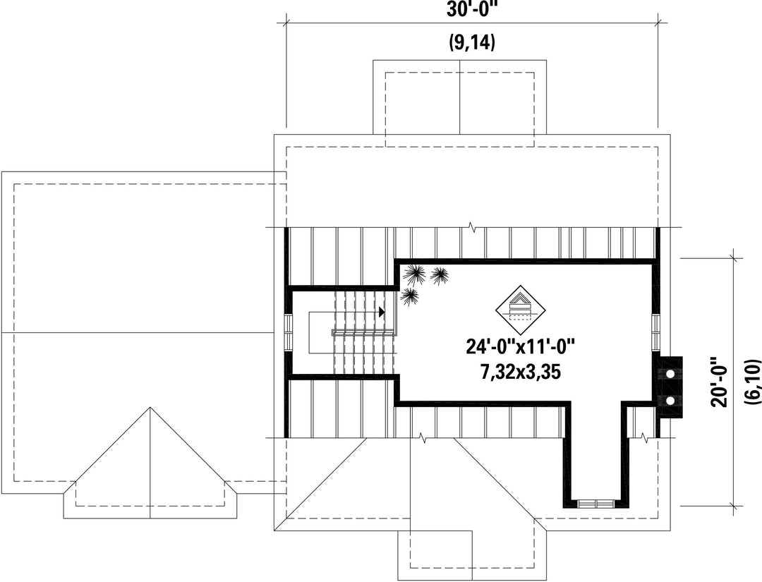
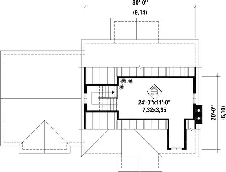
The second floor covers 1,241 square feet and has a family bathroom and three bedrooms including a master bedroom with a reading area and a private bathroom. A 361 square foot loft located above the bedrooms can be used as a home theater.
With a 1,012 square foot living area, the ground floor includes a living room with a fireplace separated from the dining room by French doors, a kitchen with a breakfast nook, a powder room with a laundry area, and another room that can be used as an office or a studio. There is also a 552 square foot two-car garage with a side entrance.
The second floor covers 1,241 square feet and has a family bathroom and three bedrooms including a master bedroom with a reading area and a private bathroom. A 361 square foot loft located above the bedrooms can be used as a home theater.
Additional info
Measurements: Imperial| House style | Colonial |
Construction price
Approximate amount equivalent to what it would cost to have a general contractor (Montreal's South Shore region) build a similar home, excluding the lot and the infrastructure.
|
555658 $ |
|---|---|---|---|
| Front | 52 ft | Total living surface | 2616 ft² |
| Depth | 40 ft | Bathrooms | 2 |
| Height | 37 ft 2 in | Bedrooms | 3 |
| Master bedroom | Pedestal bath + Shower + Double sink + Wardrobe + Toilet | ||
| First floor area | 1012 ft² | Exterior walls | Aggregates + Aluminum + Brick |
| Second floor area | 1241 ft² | Kitchen | Dining area + U-shape + Dining room |
| Garage area | 552 ft² | Garages | 2 |
| Garage wall | 8 ft | First floor wall | 9 ft |
| Second floor wall | 8 ft | Front/back roof slope | 12/12 |
| House style | Colonial |
|---|---|
|
Construction price
Approximate amount equivalent to what it would cost to have a general contractor (Montreal's South Shore region) build a similar home, excluding the lot and the infrastructure.
|
555658 $ |
| Front | 52 ft |
| Total living surface | 2616 ft² |
| Depth | 40 ft |
| Bathrooms | 2 |
| Height | 37 ft 2 in |
| Bedrooms | 3 |
| Master bedroom | Pedestal bath + Shower + Double sink + Wardrobe + Toilet |
| First floor area | 1012 ft² |
| Exterior walls | Aggregates + Aluminum + Brick |
| Second floor area | 1241 ft² |
| Kitchen | Dining area + U-shape + Dining room |
| Garage area | 552 ft² |
| Garages | 2 |
| Garage wall | 8 ft |
| First floor wall | 9 ft |
| Second floor wall | 8 ft |
| Front/back roof slope | 12/12 |