Description
This impressive two-storey home features many interesting characteristics like a living room with fireplace. The house is 53 feet wide by 26 feet deep and has a living area of 1664 square feet.
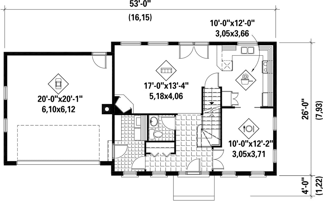
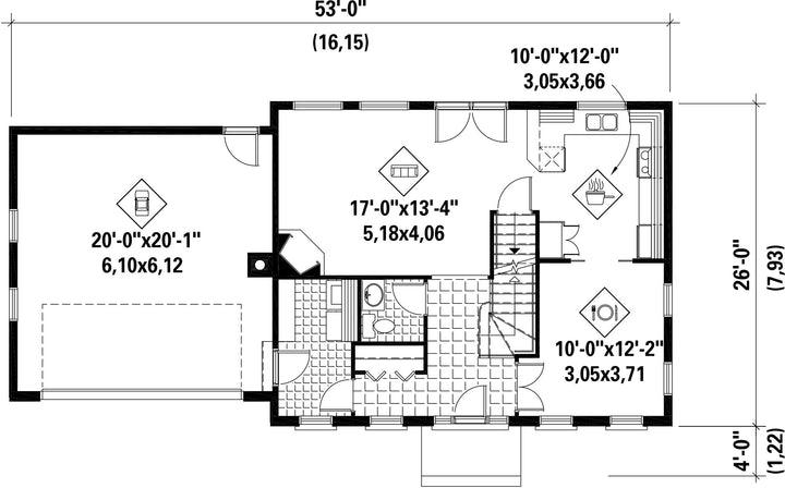
With a living area of 832 square feet, the main floor includes a kitchen, a dining room, a living room with fireplace, a powder room, a laundry room and a two-car garage.
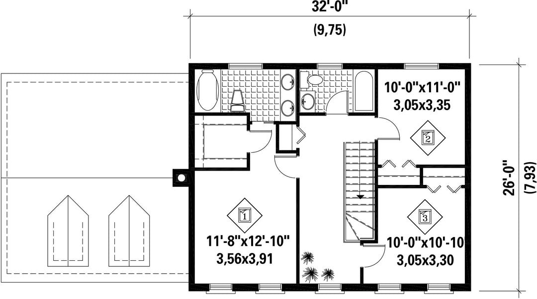
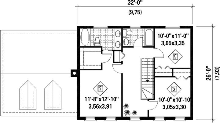
The second floor has a living area of 898 square feet and includes a master bedroom with walk-in closet and adjoining bathroom, two additional bedrooms and a bathroom.
With a living area of 832 square feet, the main floor includes a kitchen, a dining room, a living room with fireplace, a powder room, a laundry room and a two-car garage.
The second floor has a living area of 898 square feet and includes a master bedroom with walk-in closet and adjoining bathroom, two additional bedrooms and a bathroom.
Additional info
Measurements: Imperial| House style | Colonial |
Construction price
Approximate amount equivalent to what it would cost to have a general contractor (Montreal's South Shore region) build a similar home, excluding the lot and the infrastructure.
|
368994 $ |
|---|---|---|---|
| Front | 53 ft | Total living surface | 1664 ft² |
| Depth | 26 ft | Bathrooms | 2 |
| Height | 34 ft 6 in | Bedrooms | 3 |
| Master bedroom | Pedestal bath + Double sink + Wardrobe + Toilet | Master bedroom - comments | --- |
| First floor area | 832 ft² | Exterior walls | Aluminum + Brick |
| Second floor area | 832 ft² | Kitchen | Breakfast bar + U-shaped layout + Dining room |
| Garage area | 462 ft² | Garages | 2 |
| Garage wall | 8 ft | First floor wall | 9 ft |
| Second floor wall | 8 ft | Front/back roof slope | 12/12 |
| House style | Colonial |
|---|---|
|
Construction price
Approximate amount equivalent to what it would cost to have a general contractor (Montreal's South Shore region) build a similar home, excluding the lot and the infrastructure.
|
368994 $ |
| Front | 53 ft |
| Total living surface | 1664 ft² |
| Depth | 26 ft |
| Bathrooms | 2 |
| Height | 34 ft 6 in |
| Bedrooms | 3 |
| Master bedroom | Pedestal bath + Double sink + Wardrobe + Toilet |
| Master bedroom - comments | --- |
| First floor area | 832 ft² |
| Exterior walls | Aluminum + Brick |
| Second floor area | 832 ft² |
| Kitchen | Breakfast bar + U-shaped layout + Dining room |
| Garage area | 462 ft² |
| Garages | 2 |
| Garage wall | 8 ft |
| First floor wall | 9 ft |
| Second floor wall | 8 ft |
| Front/back roof slope | 12/12 |