Description
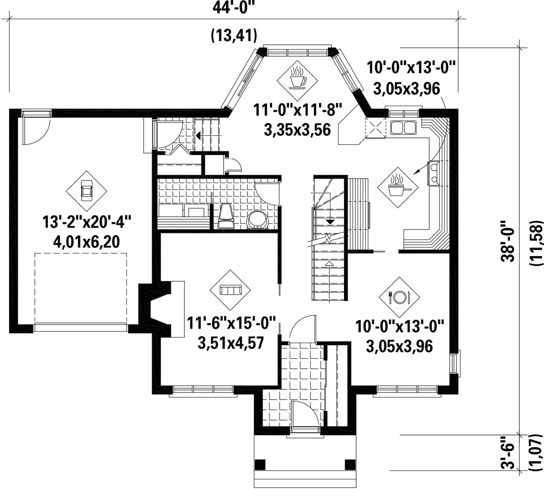
This lovely house is 44 feet wide by 38 feet deep with a living area of 2,256 square feet. It is ideally suited to its environment, whether it is located in town, in the suburbs or in the country.
With a living area of 946 square feet, the ground floor includes a kitchen, a breakfast nook, a dining room, a living room with fireplace, a powder room, a laundry room, as well as a 308 square feet one-car garage.
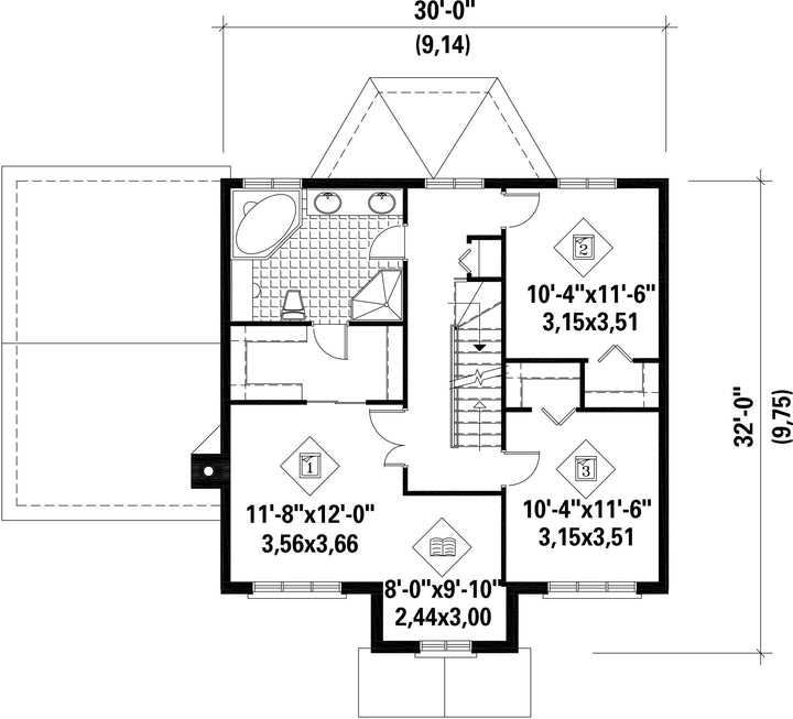
The second floor covers 880 square feet and includes three bedrooms, one of which is a master bedroom with a reading area and a large walk-in closet that communicates with a private bathroom.
The house also has a 430 square feet loft located under the roof with windows on the side. This floor can be used as a bedroom for a young adult, as a home office or as an entertainment center.
With a living area of 946 square feet, the ground floor includes a kitchen, a breakfast nook, a dining room, a living room with fireplace, a powder room, a laundry room, as well as a 308 square feet one-car garage.
The second floor covers 880 square feet and includes three bedrooms, one of which is a master bedroom with a reading area and a large walk-in closet that communicates with a private bathroom.
The house also has a 430 square feet loft located under the roof with windows on the side. This floor can be used as a bedroom for a young adult, as a home office or as an entertainment center.
Additional info
Measurements: Imperial| House style | Colonial |
Construction price
Approximate amount equivalent to what it would cost to have a general contractor (Montreal's South Shore region) build a similar home, excluding the lot and the infrastructure.
|
457619 $ |
|---|---|---|---|
| Front | 44 ft | Total living surface | 2256 ft² |
| Depth | 38 ft | Bathrooms | 1 |
| Height | 37 ft 8 in | Bedrooms | 3 |
| Master bedroom | Wardrobe + Double Doors | ||
| First floor area | 946 ft² | Exterior walls | Aluminum + Brick |
| Second floor area | 880 ft² | Kitchen | Dining area + Breakfast bar + U-shape + Dining room |
| Garage area | 308 ft² | Garages | 1 |
| Garage wall | 8 ft | First floor wall | 9 ft |
| Second floor wall | 8 ft | Front/back roof slope | 10/12 |
| House style | Colonial |
|---|---|
|
Construction price
Approximate amount equivalent to what it would cost to have a general contractor (Montreal's South Shore region) build a similar home, excluding the lot and the infrastructure.
|
457619 $ |
| Front | 44 ft |
| Total living surface | 2256 ft² |
| Depth | 38 ft |
| Bathrooms | 1 |
| Height | 37 ft 8 in |
| Bedrooms | 3 |
| Master bedroom | Wardrobe + Double Doors |
| First floor area | 946 ft² |
| Exterior walls | Aluminum + Brick |
| Second floor area | 880 ft² |
| Kitchen | Dining area + Breakfast bar + U-shape + Dining room |
| Garage area | 308 ft² |
| Garages | 1 |
| Garage wall | 8 ft |
| First floor wall | 9 ft |
| Second floor wall | 8 ft |
| Front/back roof slope | 10/12 |