Description
NULL
Additional info
Measurements: Imperial| House style | Colonial |
Construction price
Approximate amount equivalent to what it would cost to have a general contractor (Montreal's South Shore region) build a similar home, excluding the lot and the infrastructure.
|
728335 $ |
|---|---|---|---|
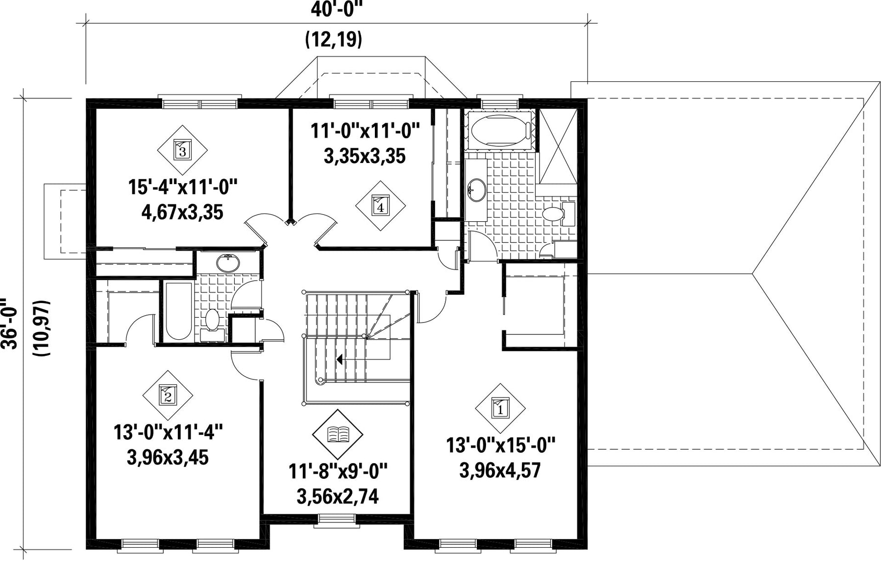
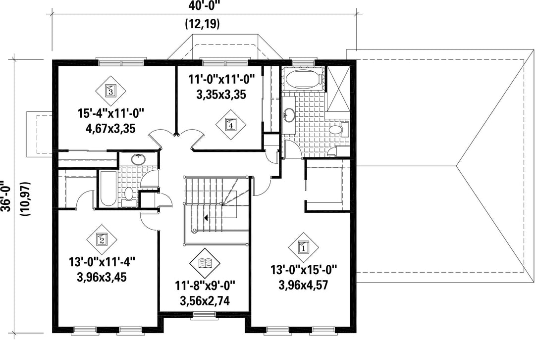
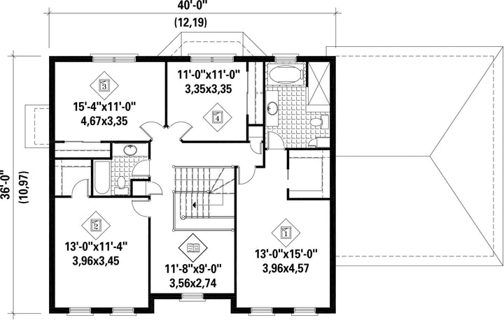
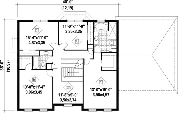
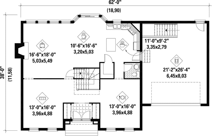
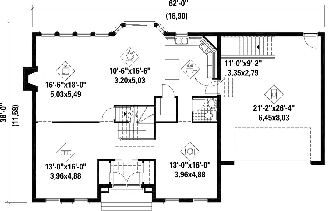
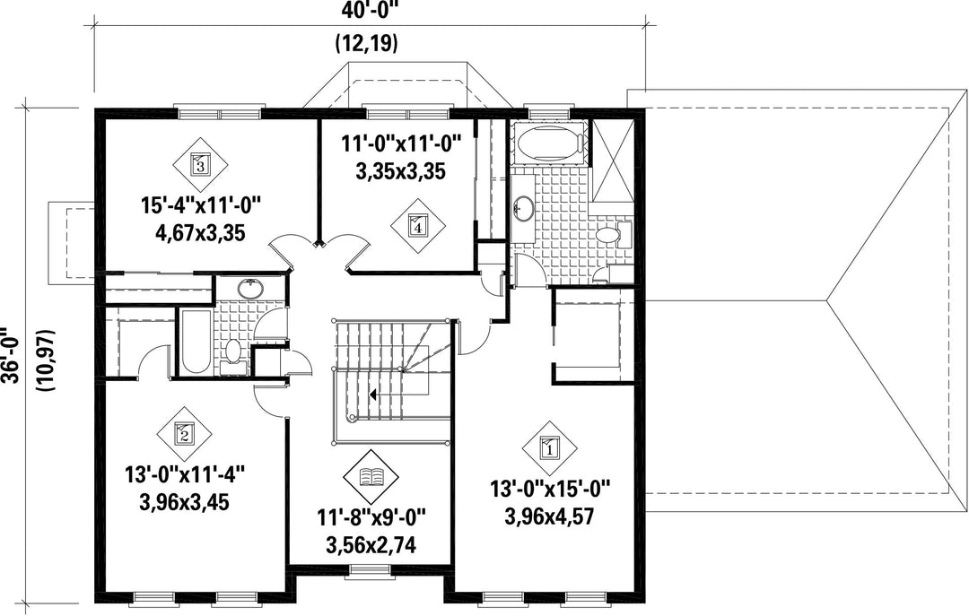
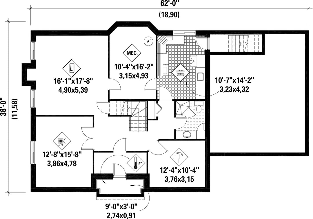
| Front | 62 ft | Total living surface | 4273 ft² |
| Depth | 38 ft | Bathrooms | 3 |
| Height | 33 ft 7 in | Bedrooms | 4 |
| Master bedroom | Pedestal bath + Shower + Single sink + Wardrobe + Toilet | ||
| First floor area | 1427 ft² | Exterior walls | Rock |
| Second floor area | 1419 ft² | Kitchen | Dining area + L-shaped layout + Dining room + Island |
| Garage area | 616 ft² | Garages | 2 |
| Garage wall | 8 ft | First floor wall | 9 ft |
| Second floor wall | 8 ft | Front/back roof slope | 8/12 |
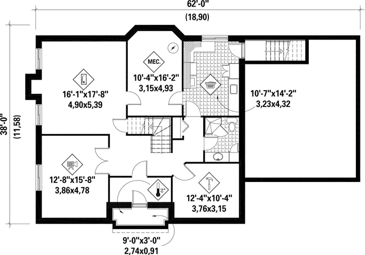
| Left/right roof slope | 12/12 | Basement area | 1427 ft² |
| House style | Colonial |
|---|---|
|
Construction price
Approximate amount equivalent to what it would cost to have a general contractor (Montreal's South Shore region) build a similar home, excluding the lot and the infrastructure.
|
728335 $ |
| Front | 62 ft |
| Total living surface | 4273 ft² |
| Depth | 38 ft |
| Bathrooms | 3 |
| Height | 33 ft 7 in |
| Bedrooms | 4 |
| Master bedroom | Pedestal bath + Shower + Single sink + Wardrobe + Toilet |
| First floor area | 1427 ft² |
| Exterior walls | Rock |
| Second floor area | 1419 ft² |
| Kitchen | Dining area + L-shaped layout + Dining room + Island |
| Garage area | 616 ft² |
| Garages | 2 |
| Garage wall | 8 ft |
| First floor wall | 9 ft |
| Second floor wall | 8 ft |
| Front/back roof slope | 8/12 |
| Left/right roof slope | 12/12 |
| Basement area | 1427 ft² |