Description
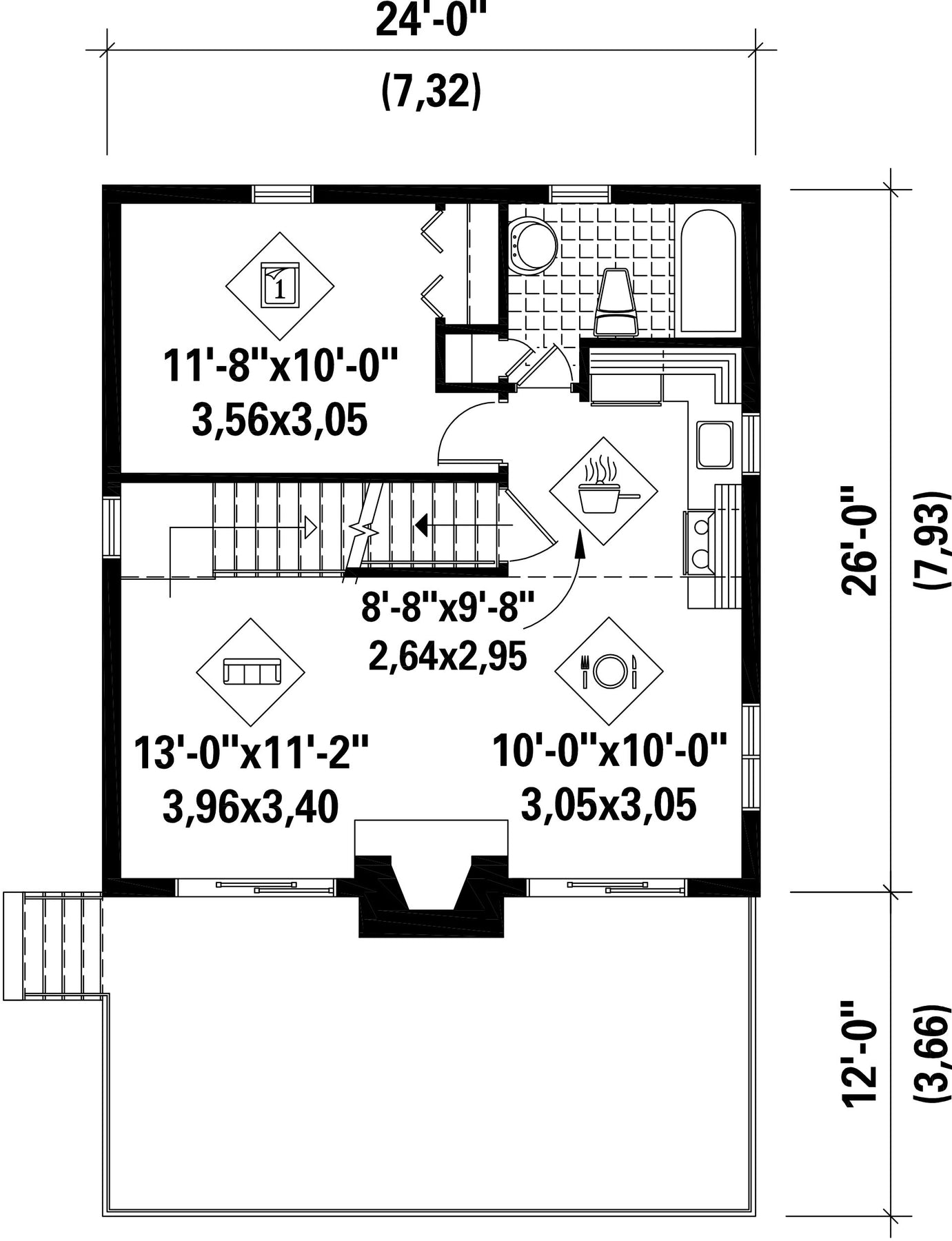
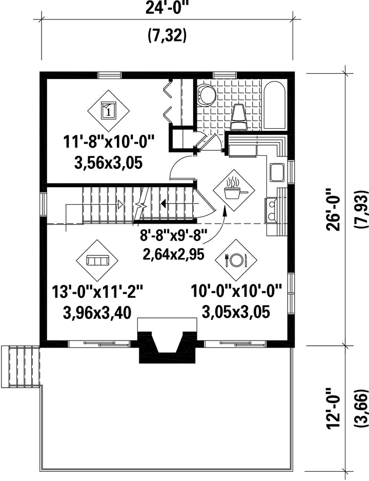
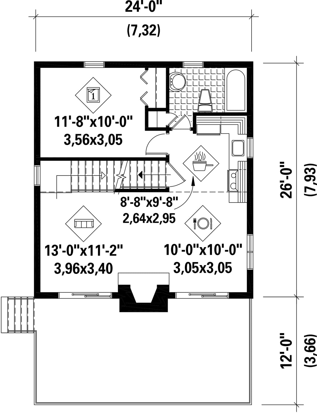
This small cottage has a spacious veranda, several panoramic windows and is warm and inviting. The house is 24 feet wide by 26 feet deep and provides 808 square feet of living space.
The ground floor offers 624 square feet of living space and includes a dining and living room with a cathedral ceiling and a fireplace, a kitchen, a bathroom and a bedroom.
The mezzanine on the upper floor covers 184 square feet and features a room to read, relax or sleep — your choice!
The ground floor offers 624 square feet of living space and includes a dining and living room with a cathedral ceiling and a fireplace, a kitchen, a bathroom and a bedroom.
The mezzanine on the upper floor covers 184 square feet and features a room to read, relax or sleep — your choice!
Additional info
Measurements: Imperial| House style | Classic |
Construction price
Approximate amount equivalent to what it would cost to have a general contractor (Montreal's South Shore region) build a similar home, excluding the lot and the infrastructure.
|
184766 $ |
|---|---|---|---|
| Front | 24 ft | Total living surface | 808 ft² |
| Depth | 26 ft | Bathrooms | 1 |
| Height | 29 ft 10 in | Bedrooms | 1 |
| Master bedroom | N / A | ||
| First floor area | 624 ft² | Exterior walls | Aluminum |
| Second floor area | 184 ft² | Kitchen | L-shaped |
| Garages | 0 | ||
| First floor wall | 10 ft | ||
| Second floor wall | 8 ft | ||
| Left/right roof slope | 10/12 |
| House style | Classic |
|---|---|
|
Construction price
Approximate amount equivalent to what it would cost to have a general contractor (Montreal's South Shore region) build a similar home, excluding the lot and the infrastructure.
|
184766 $ |
| Front | 24 ft |
| Total living surface | 808 ft² |
| Depth | 26 ft |
| Bathrooms | 1 |
| Height | 29 ft 10 in |
| Bedrooms | 1 |
| Master bedroom | N / A |
| First floor area | 624 ft² |
| Exterior walls | Aluminum |
| Second floor area | 184 ft² |
| Kitchen | L-shaped |
| Garages | 0 |
| First floor wall | 10 ft |
| Second floor wall | 8 ft |
| Left/right roof slope | 10/12 |