Description
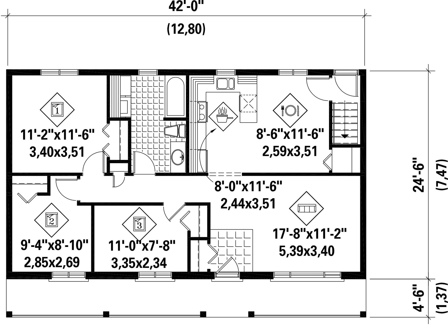
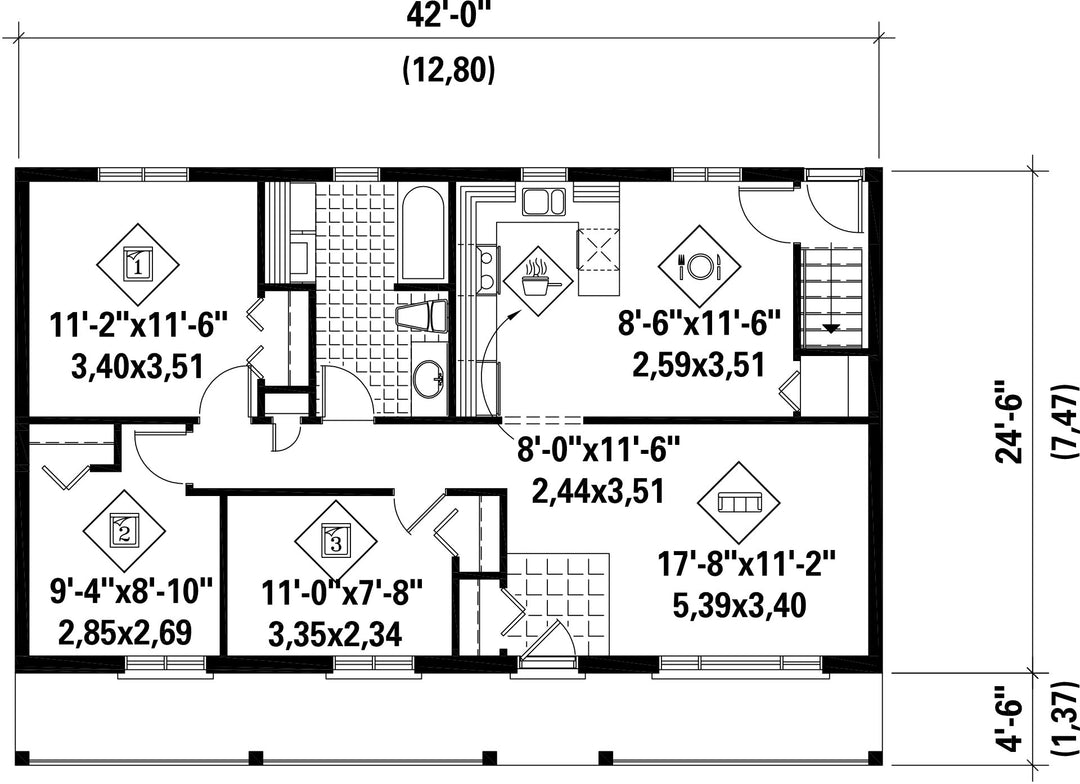
This lovely country-style bungalow has a long veranda, decorative moldings and a secondary entrance in the back. The house is 42 feet wide by 24 feet 6 inches deep and has a 1,029 square foot living area.
The house includes three bedrooms, a laundry area, a living room as well as an open kitchen and dining area.
The house includes three bedrooms, a laundry area, a living room as well as an open kitchen and dining area.
Additional info
Measurements: Imperial| House style | Classic |
Construction price
Approximate amount equivalent to what it would cost to have a general contractor (Montreal's South Shore region) build a similar home, excluding the lot and the infrastructure.
|
252901 $ |
|---|---|---|---|
| Front | 42 ft | Total living surface | 1029 ft² |
| Depth | 24 ft 6 in | Bathrooms | 1 |
| Height | 18 ft 1 in | Bedrooms | 3 |
| Master bedroom | N / A | ||
| First floor area | 1029 ft² | Exterior walls | Aluminum + Brick |
| Kitchen | U-shaped + Dining room | ||
| Garages | 0 | ||
| First floor wall | 8 ft | ||
| Front/back roof slope | 6/12 | ||
| House style | Classic |
|---|---|
|
Construction price
Approximate amount equivalent to what it would cost to have a general contractor (Montreal's South Shore region) build a similar home, excluding the lot and the infrastructure.
|
252901 $ |
| Front | 42 ft |
| Total living surface | 1029 ft² |
| Depth | 24 ft 6 in |
| Bathrooms | 1 |
| Height | 18 ft 1 in |
| Bedrooms | 3 |
| Master bedroom | N / A |
| First floor area | 1029 ft² |
| Exterior walls | Aluminum + Brick |
| Kitchen | U-shaped + Dining room |
| Garages | 0 |
| First floor wall | 8 ft |
| Front/back roof slope | 6/12 |