Description
NULL
Additional info
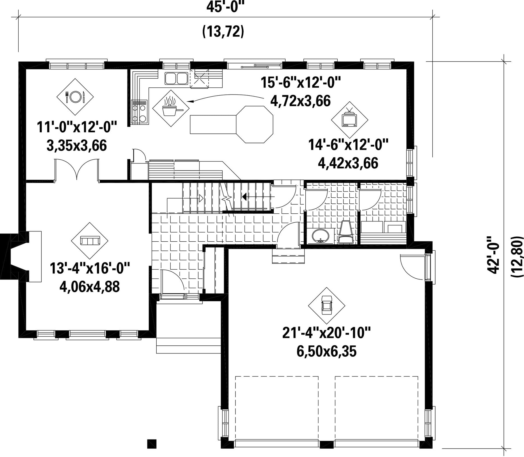
Measurements: Imperial| House style | Classic |
Construction price
Approximate amount equivalent to what it would cost to have a general contractor (Montreal's South Shore region) build a similar home, excluding the lot and the infrastructure.
|
440585 $ |
|---|---|---|---|
| Front | 45 ft | Total living surface | 1841 ft² |
| Depth | 42 ft | Bathrooms | 1 |
| Height | 28 ft 2 in | Bedrooms | 3 |
| Master bedroom | Wardrobe | ||
| First floor area | 1064 ft² | Exterior walls | Aluminum + Brick |
| Second floor area | 777 ft² | Kitchen | Lunch counter + Laboratory + Dining room + Island |
| Garage area | 496 ft² | Garages | 2 |
| Garage wall | 8 ft | First floor wall | 8 ft |
| Second floor wall | 8 ft | Front/back roof slope | 5/12 |
| House style | Classic |
|---|---|
|
Construction price
Approximate amount equivalent to what it would cost to have a general contractor (Montreal's South Shore region) build a similar home, excluding the lot and the infrastructure.
|
440585 $ |
| Front | 45 ft |
| Total living surface | 1841 ft² |
| Depth | 42 ft |
| Bathrooms | 1 |
| Height | 28 ft 2 in |
| Bedrooms | 3 |
| Master bedroom | Wardrobe |
| First floor area | 1064 ft² |
| Exterior walls | Aluminum + Brick |
| Second floor area | 777 ft² |
| Kitchen | Lunch counter + Laboratory + Dining room + Island |
| Garage area | 496 ft² |
| Garages | 2 |
| Garage wall | 8 ft |
| First floor wall | 8 ft |
| Second floor wall | 8 ft |
| Front/back roof slope | 5/12 |