Description
With its urban architecture and rustic spirit, this this two-storey cottage is in symbiosis with nature. It is 24 feet wide by 40 feet deep and offer a living area of 1 514 square feet.
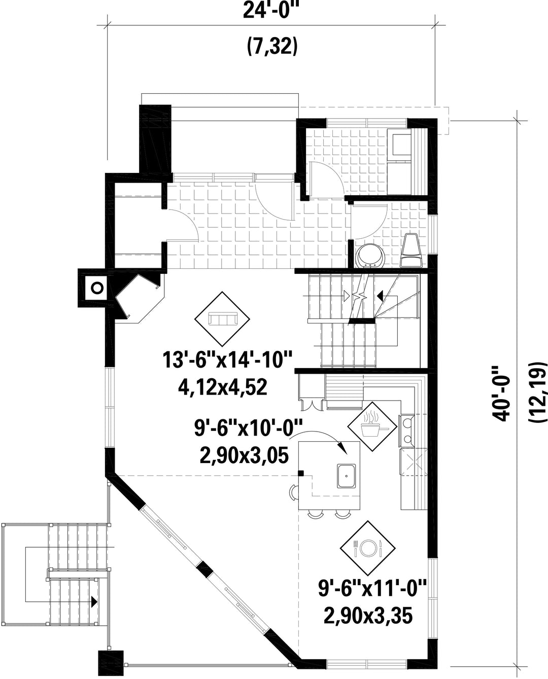
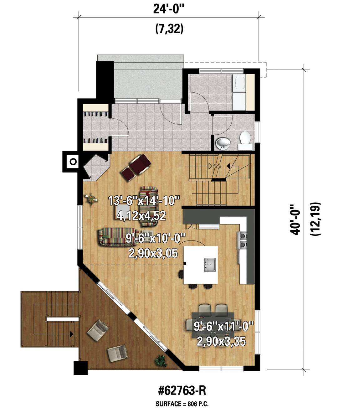
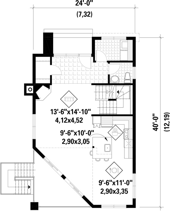
The 806 square feet ground floor has 9 foot ceilings, a walk-in in the hall, a washroom and separate laundry room, et and immense open-plan area where are the living room with fireplace, the dining room and the kitchen with a wide island, and free space opening to study on the second floor, and two patio doors giving access to the terrace.
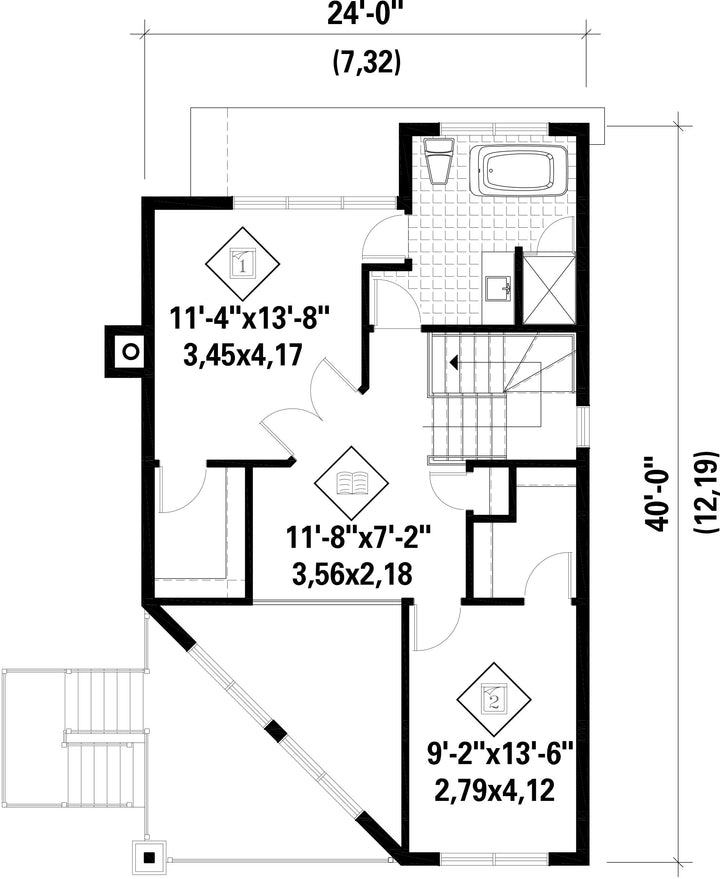
The 708 square feet floor include a bathroom with private access to the master bedroom, a space for reading or study, and two bedrooms with two wardrobes.
The 806 square feet ground floor has 9 foot ceilings, a walk-in in the hall, a washroom and separate laundry room, et and immense open-plan area where are the living room with fireplace, the dining room and the kitchen with a wide island, and free space opening to study on the second floor, and two patio doors giving access to the terrace.
The 708 square feet floor include a bathroom with private access to the master bedroom, a space for reading or study, and two bedrooms with two wardrobes.
Additional info
Measurements: Imperial| House style | Urban |
Construction price
Approximate amount equivalent to what it would cost to have a general contractor (Montreal's South Shore region) build a similar home, excluding the lot and the infrastructure.
|
338603 $ |
|---|---|---|---|
| Front | 24 ft | Total living surface | 1514 ft² |
| Depth | 40 ft | Bathrooms | 1 |
| Height | 34 ft 2 in | Bedrooms | 2 |
| Master bedroom | Walk in + Double doors | ||
| First floor area | 806 ft² | Exterior walls | Wood |
| Second floor area | 708 ft² | Kitchen | L shaped + Island |
| Garages | 0 | ||
| First floor wall | 9 ft | ||
| Second floor wall | 8 ft | Front/back roof slope | 5/15 |
| Left/right roof slope | 5/12 |
| House style | Urban |
|---|---|
|
Construction price
Approximate amount equivalent to what it would cost to have a general contractor (Montreal's South Shore region) build a similar home, excluding the lot and the infrastructure.
|
338603 $ |
| Front | 24 ft |
| Total living surface | 1514 ft² |
| Depth | 40 ft |
| Bathrooms | 1 |
| Height | 34 ft 2 in |
| Bedrooms | 2 |
| Master bedroom | Walk in + Double doors |
| First floor area | 806 ft² |
| Exterior walls | Wood |
| Second floor area | 708 ft² |
| Kitchen | L shaped + Island |
| Garages | 0 |
| First floor wall | 9 ft |
| Second floor wall | 8 ft |
| Front/back roof slope | 5/15 |
| Left/right roof slope | 5/12 |