Description
The architecture of this large cottage designed for nature lovers may be urban, but the wooden facing gives it definite rustic appearance. This house is 32 feet wide by 32 feet deep and provides 1,536 square feet of living space.
The ground floor has a 768 square foot living area that features an entrance hall with a closet, three bedrooms, a bathroom, two small storage rooms, as well as a screened veranda accessible through a patio door.
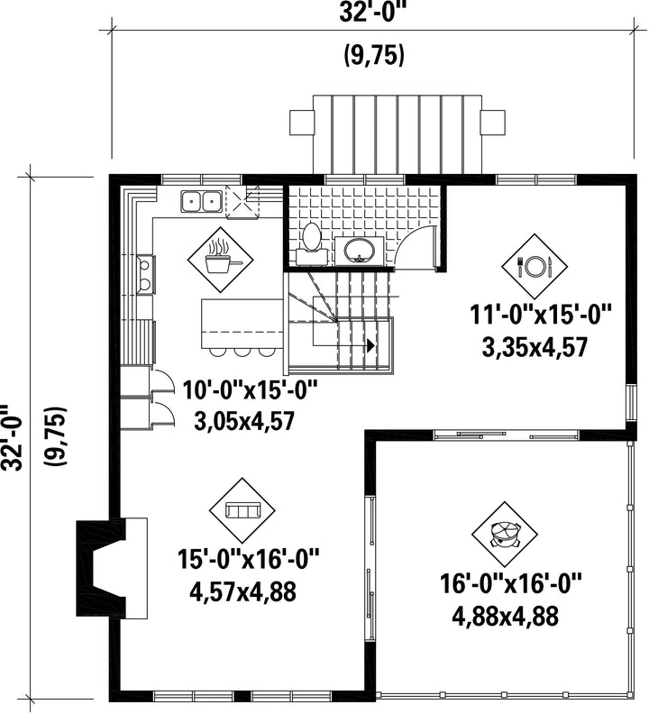
The upper floor also has 768 square feet of living space. The entire living area has cathedral ceilings and huge windows. There is a living room with a gas fireplace, a large kitchen with a lunch counter, a dining room, and a powder room. The dining room and the living room both have large panoramic doors that open out to a large terrace.
The ground floor has a 768 square foot living area that features an entrance hall with a closet, three bedrooms, a bathroom, two small storage rooms, as well as a screened veranda accessible through a patio door.
The upper floor also has 768 square feet of living space. The entire living area has cathedral ceilings and huge windows. There is a living room with a gas fireplace, a large kitchen with a lunch counter, a dining room, and a powder room. The dining room and the living room both have large panoramic doors that open out to a large terrace.
Additional info
Measurements: Imperial| House style | Urban |
Construction price
Approximate amount equivalent to what it would cost to have a general contractor (Montreal's South Shore region) build a similar home, excluding the lot and the infrastructure.
|
359153 $ |
|---|---|---|---|
| Front | 32 ft | Total living surface | 1536 ft² |
| Depth | 32 ft | Bathrooms | 2 |
| Height | 25 ft 5 in | Bedrooms | 3 |
| Master bedroom | Walk in | ||
| First floor area | 768 ft² | Exterior walls | Wood |
| Second floor area | 768 ft² | Kitchen | Snack + L shaped |
| Garages | 0 | ||
| First floor wall | 8 ft | ||
| Second floor wall | 9 ft | Front/back roof slope | 4/12 |
| Left/right roof slope | 4/12 |
| House style | Urban |
|---|---|
|
Construction price
Approximate amount equivalent to what it would cost to have a general contractor (Montreal's South Shore region) build a similar home, excluding the lot and the infrastructure.
|
359153 $ |
| Front | 32 ft |
| Total living surface | 1536 ft² |
| Depth | 32 ft |
| Bathrooms | 2 |
| Height | 25 ft 5 in |
| Bedrooms | 3 |
| Master bedroom | Walk in |
| First floor area | 768 ft² |
| Exterior walls | Wood |
| Second floor area | 768 ft² |
| Kitchen | Snack + L shaped |
| Garages | 0 |
| First floor wall | 8 ft |
| Second floor wall | 9 ft |
| Front/back roof slope | 4/12 |
| Left/right roof slope | 4/12 |