Description
Designed for relaxation, this lovely cottage offers a spectacular view of the surrounding nature thanks to an elevated terrace and several huge windows. The home is 24 feet wide by 30 feet deep and provides 1,188 square feet of living space.
With 696 square feet of living space, the open area on the ground floor includes a living room with a cathedral ceiling whose height varies from 10 to 14 feet, where you can relax by the gas fireplace, a kitchen with an island, a dining room, a bedroom and a powder room with space for a washer and dryer. A triple patio door located in the living room overlooks a huge terrace.
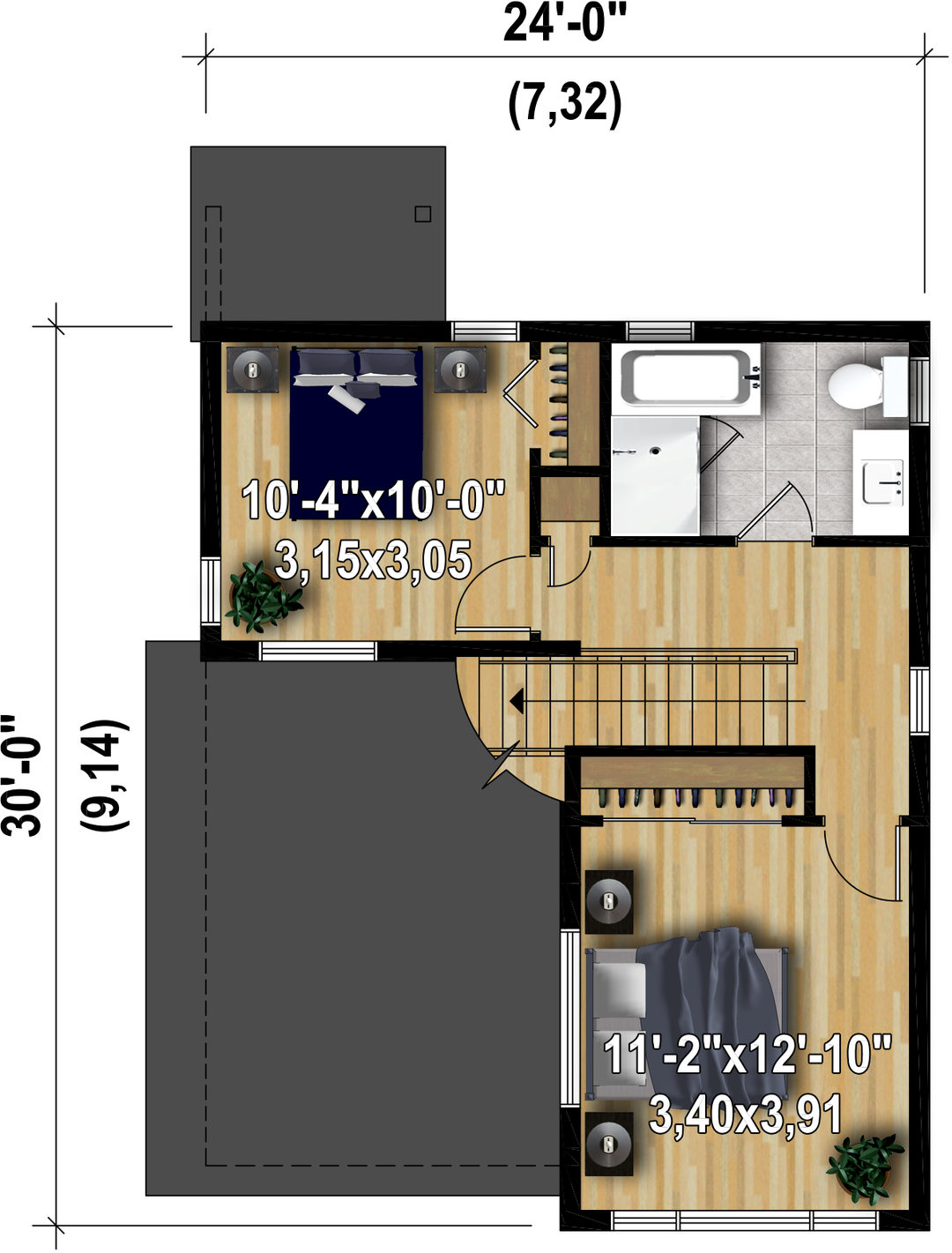
Offering a 492 square-foot living area, the second floor features a bathroom with separate bathtub and shower, as well as two bedrooms, including a master bedroom with a cathedral ceiling.
With 696 square feet of living space, the open area on the ground floor includes a living room with a cathedral ceiling whose height varies from 10 to 14 feet, where you can relax by the gas fireplace, a kitchen with an island, a dining room, a bedroom and a powder room with space for a washer and dryer. A triple patio door located in the living room overlooks a huge terrace.
Offering a 492 square-foot living area, the second floor features a bathroom with separate bathtub and shower, as well as two bedrooms, including a master bedroom with a cathedral ceiling.
Additional info
Measurements: Imperial| House style | Urban |
Construction price
Approximate amount equivalent to what it would cost to have a general contractor (Montreal's South Shore region) build a similar home, excluding the lot and the infrastructure.
|
286861 $ |
|---|---|---|---|
| Front | 24 ft | Total living surface | 1188 ft² |
| Depth | 30 ft | Bathrooms | 1 |
| Height | 32 ft 8 in | Bedrooms | 3 |
| Master bedroom | N / A | ||
| First floor area | 696 ft² | Exterior walls | Drink |
| Second floor area | 492 ft² | Kitchen | Laboratory + Island |
| Garages | 0 | ||
| First floor wall | 9 ft | ||
| Second floor wall | 8 ft | Front/back roof slope | N / A |
| Left/right roof slope | 4/12 |
| House style | Urban |
|---|---|
|
Construction price
Approximate amount equivalent to what it would cost to have a general contractor (Montreal's South Shore region) build a similar home, excluding the lot and the infrastructure.
|
286861 $ |
| Front | 24 ft |
| Total living surface | 1188 ft² |
| Depth | 30 ft |
| Bathrooms | 1 |
| Height | 32 ft 8 in |
| Bedrooms | 3 |
| Master bedroom | N / A |
| First floor area | 696 ft² |
| Exterior walls | Drink |
| Second floor area | 492 ft² |
| Kitchen | Laboratory + Island |
| Garages | 0 |
| First floor wall | 9 ft |
| Second floor wall | 8 ft |
| Front/back roof slope | N / A |
| Left/right roof slope | 4/12 |