Description
With its large windows and corner veranda in the front, this charming country-style two-storey cottage will please those who are looking for rest and relaxation. The house is 26 feet wide by 32 feet deep and provides 1,288 square feet of living space.
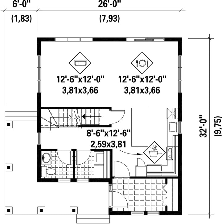
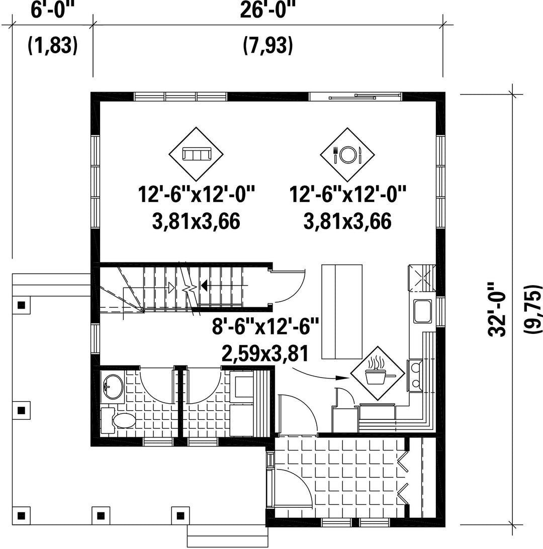
The ground floor has a 754 square foot living area and features a closed entrance hall, a powder room, a laundry room, a kitchen with an island overlooking the front, and a huge open area that includes the living and dining rooms in the back.
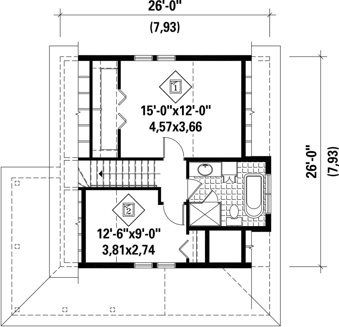
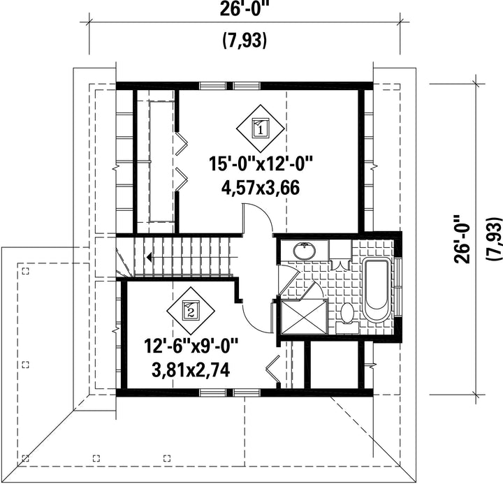
The upper floor has 534 square feet of living space and includes two bedrooms and a bathroom.
The ground floor has a 754 square foot living area and features a closed entrance hall, a powder room, a laundry room, a kitchen with an island overlooking the front, and a huge open area that includes the living and dining rooms in the back.
The upper floor has 534 square feet of living space and includes two bedrooms and a bathroom.
Additional info
Measurements: Imperial| House style | Handcrafted |
Construction price
Approximate amount equivalent to what it would cost to have a general contractor (Montreal's South Shore region) build a similar home, excluding the lot and the infrastructure.
|
253706 $ |
|---|---|---|---|
| Front | 26 ft | Total living surface | 1288 ft² |
| Depth | 32 ft | Bathrooms | 1 |
| Height | 26 ft 7 in | Bedrooms | 2 |
| Master bedroom | Wardrobe | ||
| First floor area | 754 ft² | Exterior walls | Aluminum + Cedar Shingles |
| Second floor area | 534 ft² | Kitchen | Meal counter + Island |
| Garages | 0 | ||
| First floor wall | 8 ft | ||
| Second floor wall | 8 ft | ||
| Left/right roof slope | 12/12 |
| House style | Handcrafted |
|---|---|
|
Construction price
Approximate amount equivalent to what it would cost to have a general contractor (Montreal's South Shore region) build a similar home, excluding the lot and the infrastructure.
|
253706 $ |
| Front | 26 ft |
| Total living surface | 1288 ft² |
| Depth | 32 ft |
| Bathrooms | 1 |
| Height | 26 ft 7 in |
| Bedrooms | 2 |
| Master bedroom | Wardrobe |
| First floor area | 754 ft² |
| Exterior walls | Aluminum + Cedar Shingles |
| Second floor area | 534 ft² |
| Kitchen | Meal counter + Island |
| Garages | 0 |
| First floor wall | 8 ft |
| Second floor wall | 8 ft |
| Left/right roof slope | 12/12 |