Description
This modern two-storey cottage will not go unnoticed. The beautiful home is 32 feet wide by 34 feet deep and provides 1,480 square feet of living space.
The 720 square-foot ground floor of this weekend home features a wall of columns that hides the staircase and ceilings that are nine feet high. It includes a closed entrance hall with a rail door (barn type), a powder room and an open area that includes a kitchen with an island, a dining room and a living room with a wood fireplace. A covered balcony connects to the large outdoor terrace located near the ground.
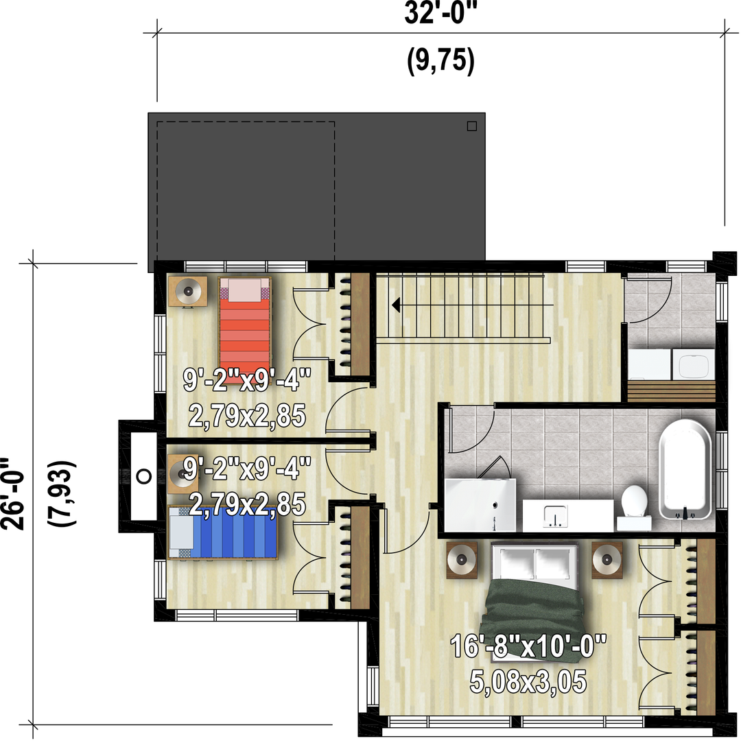
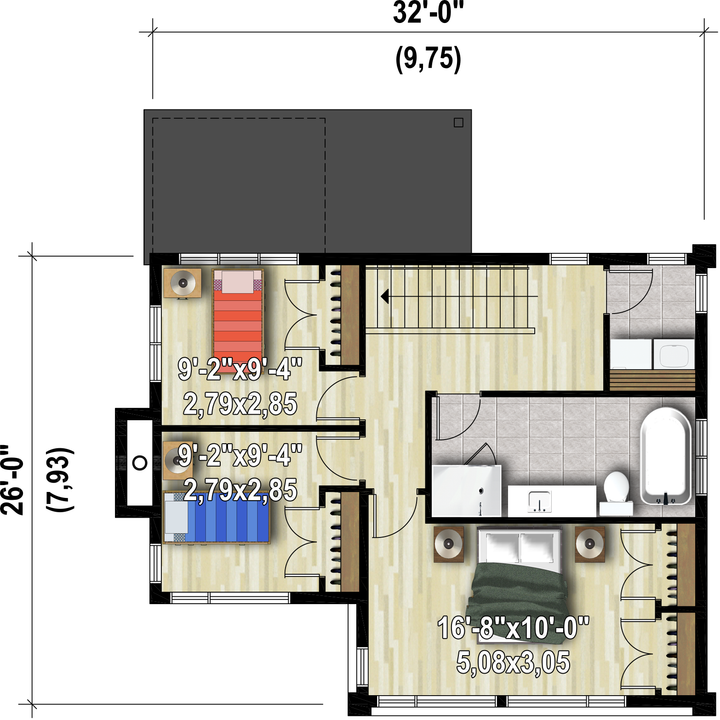
With 760 square feet of living space, the upper floor includes three bedrooms, a laundry room and a bathroom with a separate shower and freestanding bathtub.
The 720 square-foot ground floor of this weekend home features a wall of columns that hides the staircase and ceilings that are nine feet high. It includes a closed entrance hall with a rail door (barn type), a powder room and an open area that includes a kitchen with an island, a dining room and a living room with a wood fireplace. A covered balcony connects to the large outdoor terrace located near the ground.
With 760 square feet of living space, the upper floor includes three bedrooms, a laundry room and a bathroom with a separate shower and freestanding bathtub.
Additional info
Measurements: Imperial| House style | Urban |
Construction price
Approximate amount equivalent to what it would cost to have a general contractor (Montreal's South Shore region) build a similar home, excluding the lot and the infrastructure.
|
330544 $ |
|---|---|---|---|
| Front | 32 ft | Total living surface | 1480 ft² |
| Depth | 34 ft | Bathrooms | 1 |
| Height | 31 ft 6 in | Bedrooms | 3 |
| Master bedroom | N / A | ||
| First floor area | 720 ft² | Exterior walls | Aluminum + Wood |
| Second floor area | 760 ft² | Kitchen | Laboratory + Island |
| Garages | 0 | ||
| First floor wall | 9 ft | ||
| Second floor wall | 8 ft | Front/back roof slope | 4/12 |
| Left/right roof slope | 4/12 |
| House style | Urban |
|---|---|
|
Construction price
Approximate amount equivalent to what it would cost to have a general contractor (Montreal's South Shore region) build a similar home, excluding the lot and the infrastructure.
|
330544 $ |
| Front | 32 ft |
| Total living surface | 1480 ft² |
| Depth | 34 ft |
| Bathrooms | 1 |
| Height | 31 ft 6 in |
| Bedrooms | 3 |
| Master bedroom | N / A |
| First floor area | 720 ft² |
| Exterior walls | Aluminum + Wood |
| Second floor area | 760 ft² |
| Kitchen | Laboratory + Island |
| Garages | 0 |
| First floor wall | 9 ft |
| Second floor wall | 8 ft |
| Front/back roof slope | 4/12 |
| Left/right roof slope | 4/12 |