Description
Families who enjoy the outdoors will love this Cape Cod style cottage. The house is 34 feet wide by 32 feet deep and offers a 1,461 square foot living area.
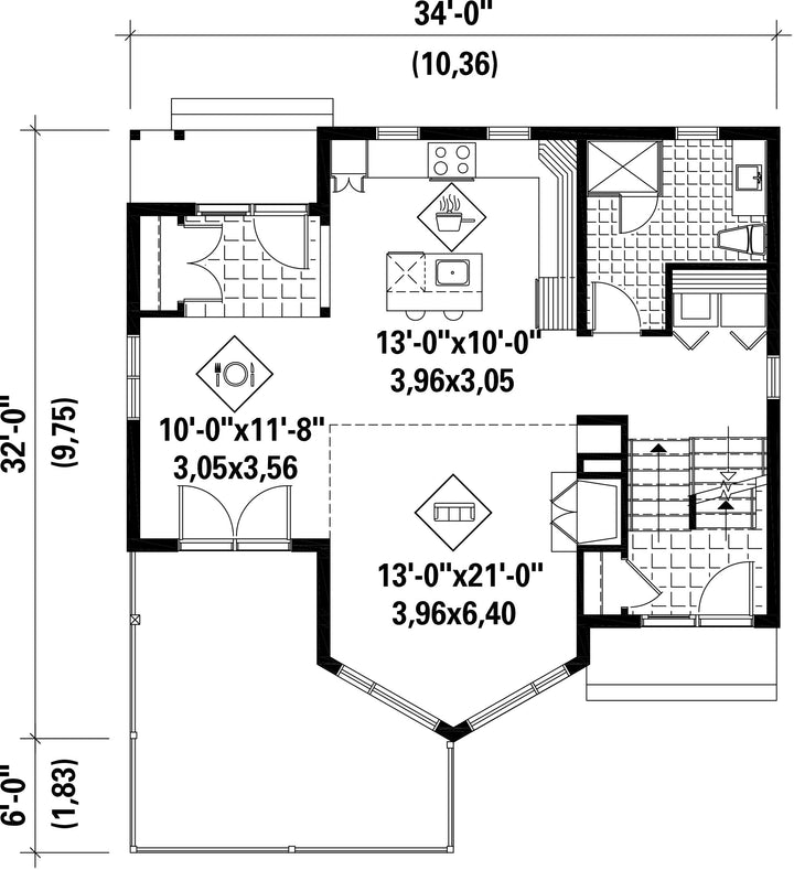
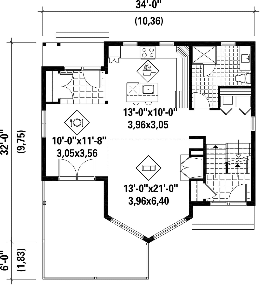
The ground floor covers 860 square feet and features a functional kitchen with an island, a dining room that opens out to a partially covered terrace, a large living room with a wood fireplace open to the second floor, a bathroom and a laundry closet.
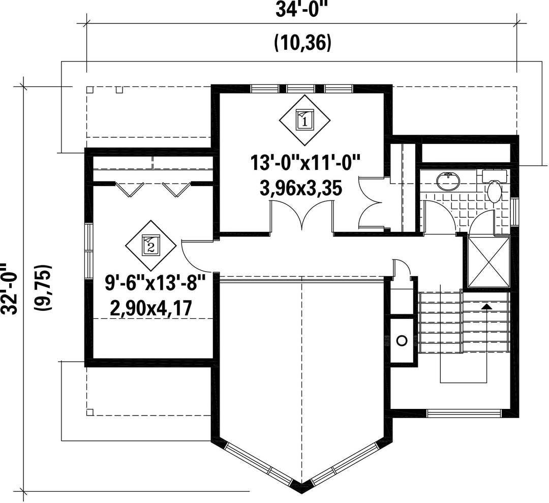
The 601 square foot mezzanine overlooking the living room features two bedrooms and a bathroom.
The ground floor covers 860 square feet and features a functional kitchen with an island, a dining room that opens out to a partially covered terrace, a large living room with a wood fireplace open to the second floor, a bathroom and a laundry closet.
The 601 square foot mezzanine overlooking the living room features two bedrooms and a bathroom.
Additional info
Measurements: Imperial| House style | Cape Cod |
Construction price
Approximate amount equivalent to what it would cost to have a general contractor (Montreal's South Shore region) build a similar home, excluding the lot and the infrastructure.
|
337990 $ |
|---|---|---|---|
| Front | 34 ft | Total living surface | 1461 ft² |
| Depth | 32 ft | Bathrooms | 2 |
| Height | 30 ft 8 in | Bedrooms | 2 |
| Master bedroom | Double doors | ||
| First floor area | 860 ft² | Exterior walls | Drink |
| Second floor area | 601 ft² | Kitchen | L-shaped + Island |
| Garages | 0 | ||
| First floor wall | 9 ft | ||
| Second floor wall | 8 ft | Front/back roof slope | 5/12-12/12 |
| Left/right roof slope | 12/12 |
| House style | Cape Cod |
|---|---|
|
Construction price
Approximate amount equivalent to what it would cost to have a general contractor (Montreal's South Shore region) build a similar home, excluding the lot and the infrastructure.
|
337990 $ |
| Front | 34 ft |
| Total living surface | 1461 ft² |
| Depth | 32 ft |
| Bathrooms | 2 |
| Height | 30 ft 8 in |
| Bedrooms | 2 |
| Master bedroom | Double doors |
| First floor area | 860 ft² |
| Exterior walls | Drink |
| Second floor area | 601 ft² |
| Kitchen | L-shaped + Island |
| Garages | 0 |
| First floor wall | 9 ft |
| Second floor wall | 8 ft |
| Front/back roof slope | 5/12-12/12 |
| Left/right roof slope | 12/12 |