Description
NULL
Additional info
Measurements: Imperial| House style | Canadian |
Construction price
Approximate amount equivalent to what it would cost to have a general contractor (Montreal's South Shore region) build a similar home, excluding the lot and the infrastructure.
|
403307 $ |
|---|---|---|---|
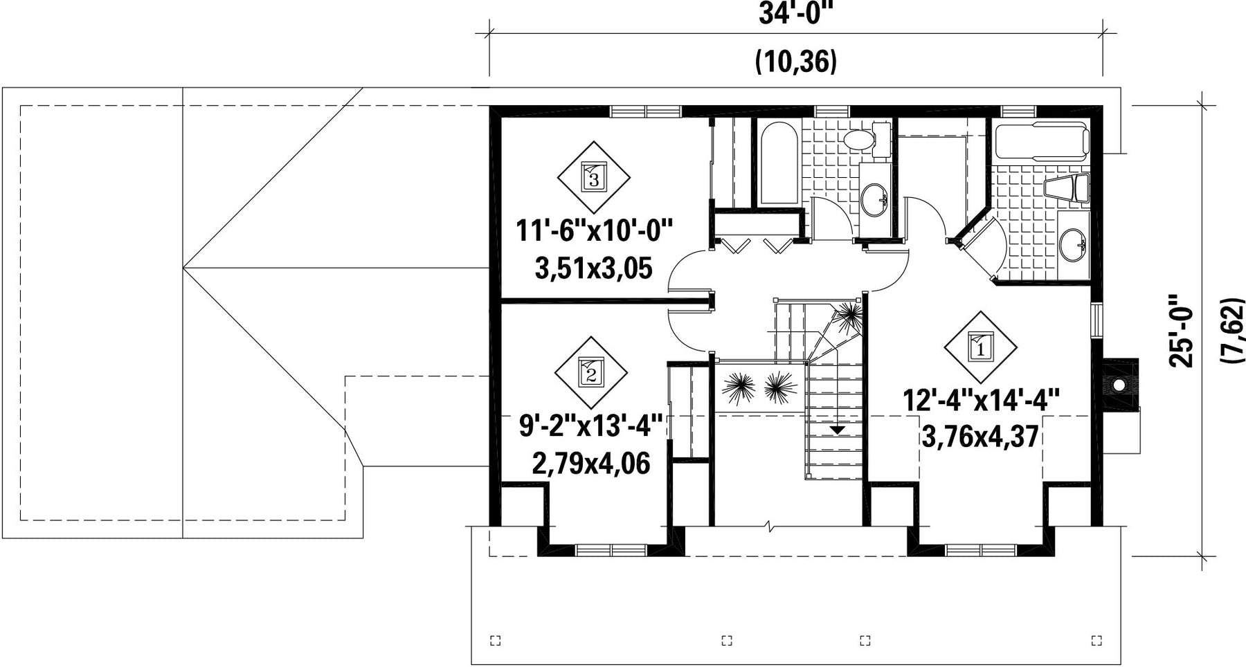
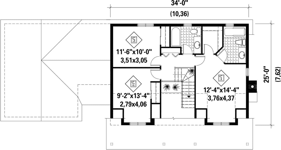
| Front | 60 ft | Total living surface | 1706 ft² |
| Depth | 25 ft | Bathrooms | 2 |
| Height | 26 ft 3 in | Bedrooms | 3 |
| Master bedroom | Pedestal bath + Single sink + Wardrobe + Toilet | ||
| First floor area | 983 ft² | Exterior walls | Aluminum + Stone |
| Second floor area | 723 ft² | Kitchen | Breakfast nook + Breakfast bar + L-shaped layout + Dining room + Island |
| Garage area | 402 ft² | Garages | 1 |
| Garage wall | 8 ft | First floor wall | 8 ft |
| Second floor wall | 8 ft | Front/back roof slope | 12/12 |
| Left/right roof slope | 12/12 |
| House style | Canadian |
|---|---|
|
Construction price
Approximate amount equivalent to what it would cost to have a general contractor (Montreal's South Shore region) build a similar home, excluding the lot and the infrastructure.
|
403307 $ |
| Front | 60 ft |
| Total living surface | 1706 ft² |
| Depth | 25 ft |
| Bathrooms | 2 |
| Height | 26 ft 3 in |
| Bedrooms | 3 |
| Master bedroom | Pedestal bath + Single sink + Wardrobe + Toilet |
| First floor area | 983 ft² |
| Exterior walls | Aluminum + Stone |
| Second floor area | 723 ft² |
| Kitchen | Breakfast nook + Breakfast bar + L-shaped layout + Dining room + Island |
| Garage area | 402 ft² |
| Garages | 1 |
| Garage wall | 8 ft |
| First floor wall | 8 ft |
| Second floor wall | 8 ft |
| Front/back roof slope | 12/12 |
| Left/right roof slope | 12/12 |