Description
This prestigious multigenerational house will catch the eye with its gables, its cedar shingles and its huge veranda. The home is 62 feet wide by 49 feet deep and provides a 3,455 square feet living area.
The ground floor is divided into two distinct sections and covers 2,037 square feet. One of the sections includes a living room, a dining room, a kitchen, a bathroom as well as a bedroom. The other consists of a reading area, a powder room, a large kitchen with breakfast nook, a living room and a dining room divided by a see-through fireplace.
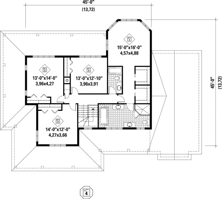
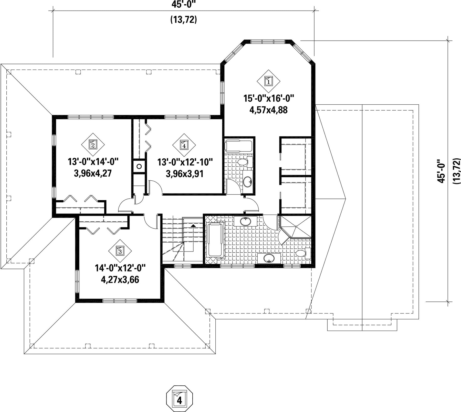
The second floor has 1,418 square feet of living space and consists of a family bathroom, and four bedrooms including a master bedroom with large windows, two walk-in closets and a huge private bathroom.
The ground floor is divided into two distinct sections and covers 2,037 square feet. One of the sections includes a living room, a dining room, a kitchen, a bathroom as well as a bedroom. The other consists of a reading area, a powder room, a large kitchen with breakfast nook, a living room and a dining room divided by a see-through fireplace.
The second floor has 1,418 square feet of living space and consists of a family bathroom, and four bedrooms including a master bedroom with large windows, two walk-in closets and a huge private bathroom.
Additional info
Measurements: Imperial| House style | Rustic |
Construction price
Approximate amount equivalent to what it would cost to have a general contractor (Montreal's South Shore region) build a similar home, excluding the lot and the infrastructure.
|
726287 $ |
|---|---|---|---|
| Front | 62 ft | Total living surface | 3455 ft² |
| Depth | 49 ft | Bathrooms | 3 |
| Height | 41 ft 8 in | Bedrooms | 5 |
| Master bedroom | Bathtub + Shower + Double sink + Wardrobe + Toilet | ||
| First floor area | 2037 ft² | Exterior walls | Aluminum + Cedar Shingles |
| Second floor area | 1418 ft² | Kitchen | N / A |
| Garages | 0 | ||
| First floor wall | 9 ft | ||
| Second floor wall | 8 ft | Front/back roof slope | 12/12 |
| Left/right roof slope | 12/12 |
| House style | Rustic |
|---|---|
|
Construction price
Approximate amount equivalent to what it would cost to have a general contractor (Montreal's South Shore region) build a similar home, excluding the lot and the infrastructure.
|
726287 $ |
| Front | 62 ft |
| Total living surface | 3455 ft² |
| Depth | 49 ft |
| Bathrooms | 3 |
| Height | 41 ft 8 in |
| Bedrooms | 5 |
| Master bedroom | Bathtub + Shower + Double sink + Wardrobe + Toilet |
| First floor area | 2037 ft² |
| Exterior walls | Aluminum + Cedar Shingles |
| Second floor area | 1418 ft² |
| Kitchen | N / A |
| Garages | 0 |
| First floor wall | 9 ft |
| Second floor wall | 8 ft |
| Front/back roof slope | 12/12 |
| Left/right roof slope | 12/12 |