Description
This multigenerational home stands out with its brick facing and the 255 square foot one-car garage located towards the center of the building. The two-storey house is 48 feet wide by 44 feet 2 inches deep and provides 2,676 square feet of living space. Each dwelling unit has its own private entrance, one in the front and the other on the side of the house.
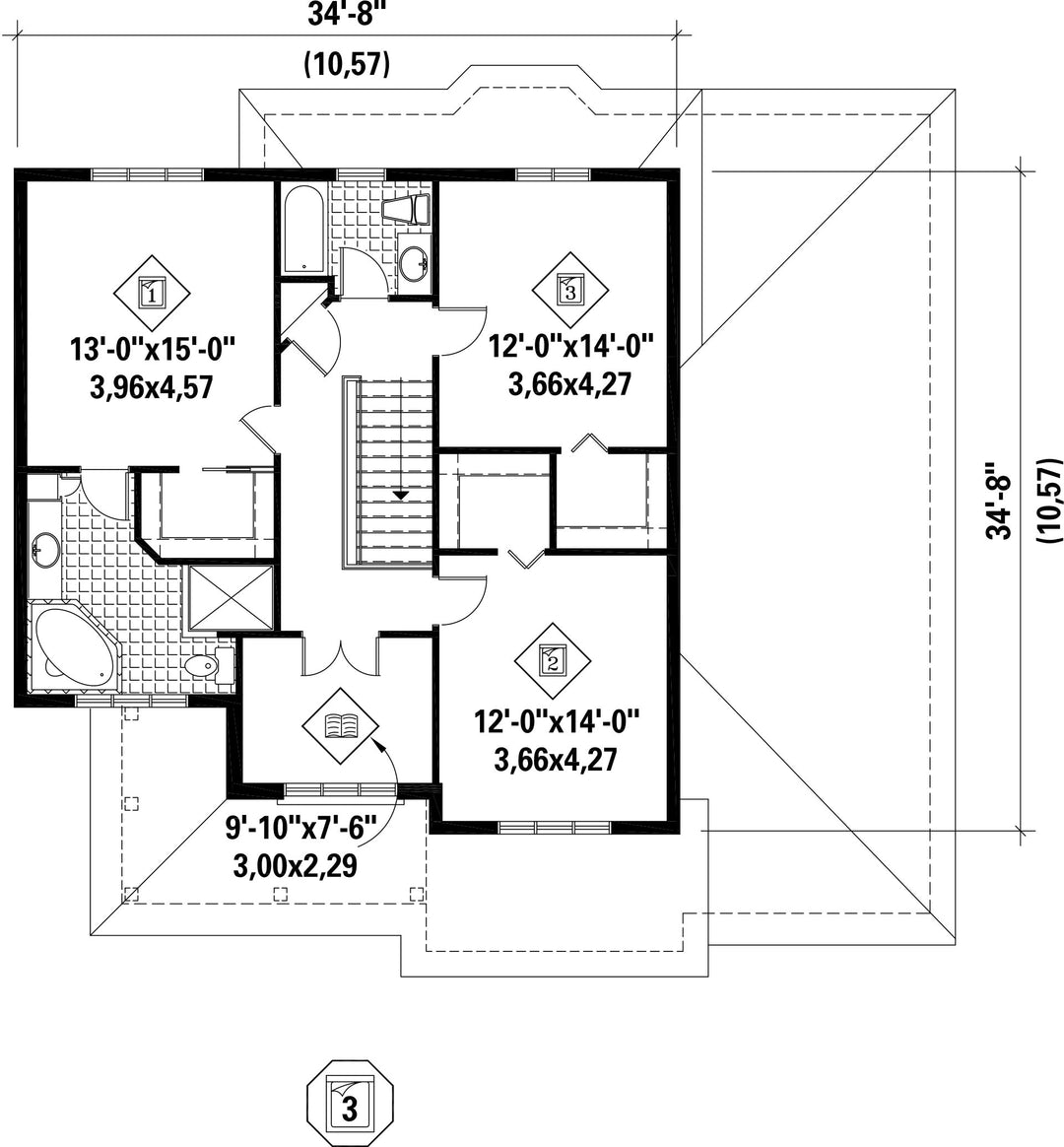
The ground floor has a 1,565 square foot living area and is divided into two distinct sections linked by a communicating door. The main unit includes a living room, a powder room, a dining room, as well as a kitchen with an island and a breakfast nook. The three bedrooms, one of which is the main bedroom with a large walk-in closet and a private bathroom, are located on the second floor that provides 1,111 square feet of living space and also includes a reading room and a bathroom. Located entirely on the ground floor, the second unit has a living room, a kitchen, a bathroom and a bedroom.
The ground floor has a 1,565 square foot living area and is divided into two distinct sections linked by a communicating door. The main unit includes a living room, a powder room, a dining room, as well as a kitchen with an island and a breakfast nook. The three bedrooms, one of which is the main bedroom with a large walk-in closet and a private bathroom, are located on the second floor that provides 1,111 square feet of living space and also includes a reading room and a bathroom. Located entirely on the ground floor, the second unit has a living room, a kitchen, a bathroom and a bedroom.
Additional info
Measurements: Imperial| House style | European |
Construction price
Approximate amount equivalent to what it would cost to have a general contractor (Montreal's South Shore region) build a similar home, excluding the lot and the infrastructure.
|
574515 $ |
|---|---|---|---|
| Front | 48 ft | Total living surface | 2676 ft² |
| Depth | 44 ft | Bathrooms | 3 |
| Height | 35 ft 9 in | Bedrooms | 4 |
| Master bedroom | Pedestal bath + Shower + Single sink + Wardrobe + Toilet | ||
| First floor area | 1565 ft² | Exterior walls | Aluminum + Stone |
| Second floor area | 1111 ft² | Kitchen | Dining area + L-shaped layout + Dining room + Island |
| Garage area | 255 ft² | Garages | 1 |
| Garage wall | 8 ft | First floor wall | 9 ft |
| Second floor wall | 8 ft | Front/back roof slope | 10/12 |
| Left/right roof slope | 10/12 |
| House style | European |
|---|---|
|
Construction price
Approximate amount equivalent to what it would cost to have a general contractor (Montreal's South Shore region) build a similar home, excluding the lot and the infrastructure.
|
574515 $ |
| Front | 48 ft |
| Total living surface | 2676 ft² |
| Depth | 44 ft |
| Bathrooms | 3 |
| Height | 35 ft 9 in |
| Bedrooms | 4 |
| Master bedroom | Pedestal bath + Shower + Single sink + Wardrobe + Toilet |
| First floor area | 1565 ft² |
| Exterior walls | Aluminum + Stone |
| Second floor area | 1111 ft² |
| Kitchen | Dining area + L-shaped layout + Dining room + Island |
| Garage area | 255 ft² |
| Garages | 1 |
| Garage wall | 8 ft |
| First floor wall | 9 ft |
| Second floor wall | 8 ft |
| Front/back roof slope | 10/12 |
| Left/right roof slope | 10/12 |