Description
This country style multigenerational two-storey house is 62 feet wide by 32 feet deep and provides 2,655 square feet of living space. The 369 square foot one-car garage has access to the basement.
The ground floor has a 1,275 square foot living area and is divided into two distinct areas. One of the dwellings is reserved for seniors and includes a living room, a kitchen, a dining room, a bathroom and a bedroom. The second dwelling includes a large living room, a dining room, a kitchen with an island, a bathroom, and the bedrooms are on the upper floor.
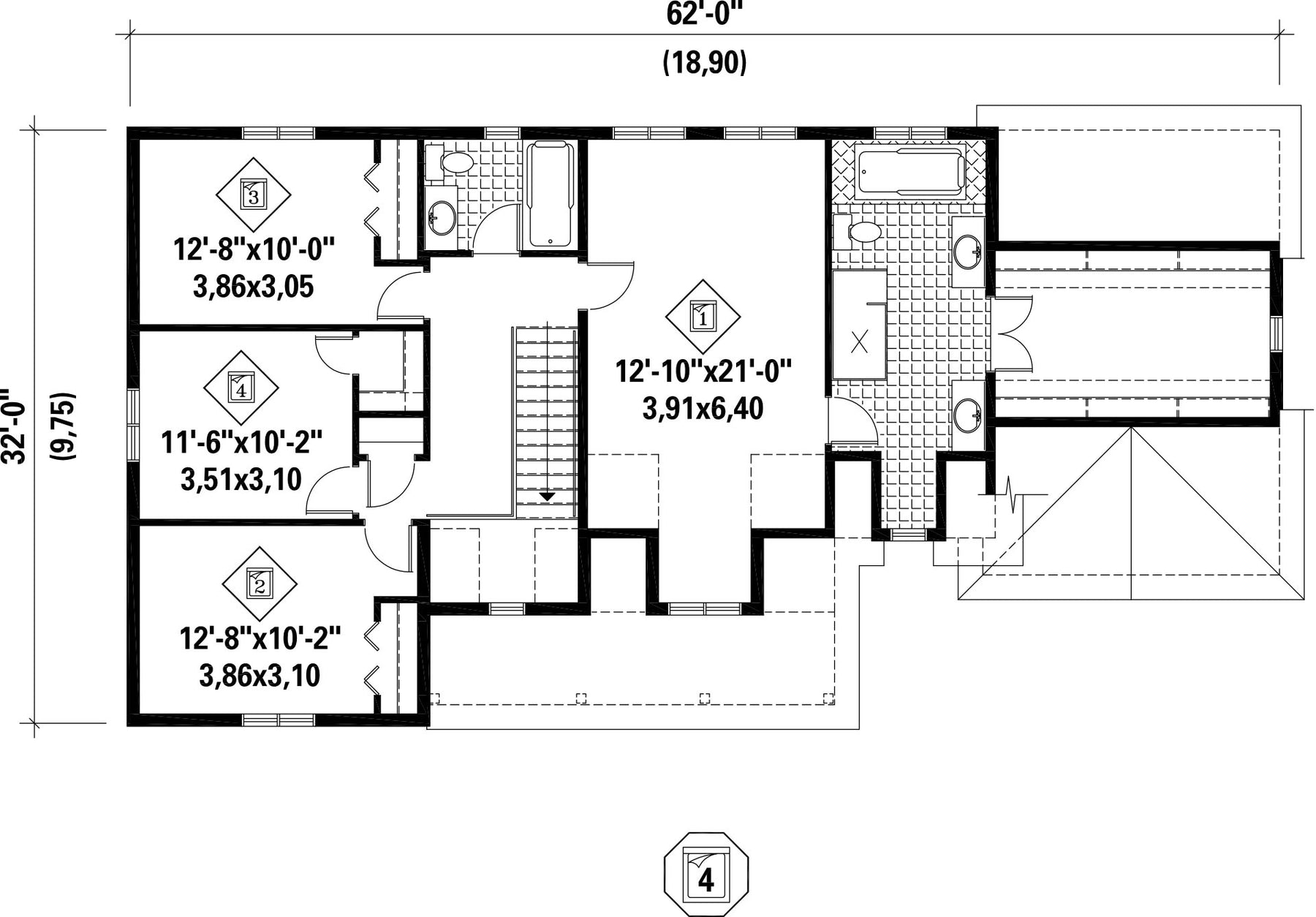
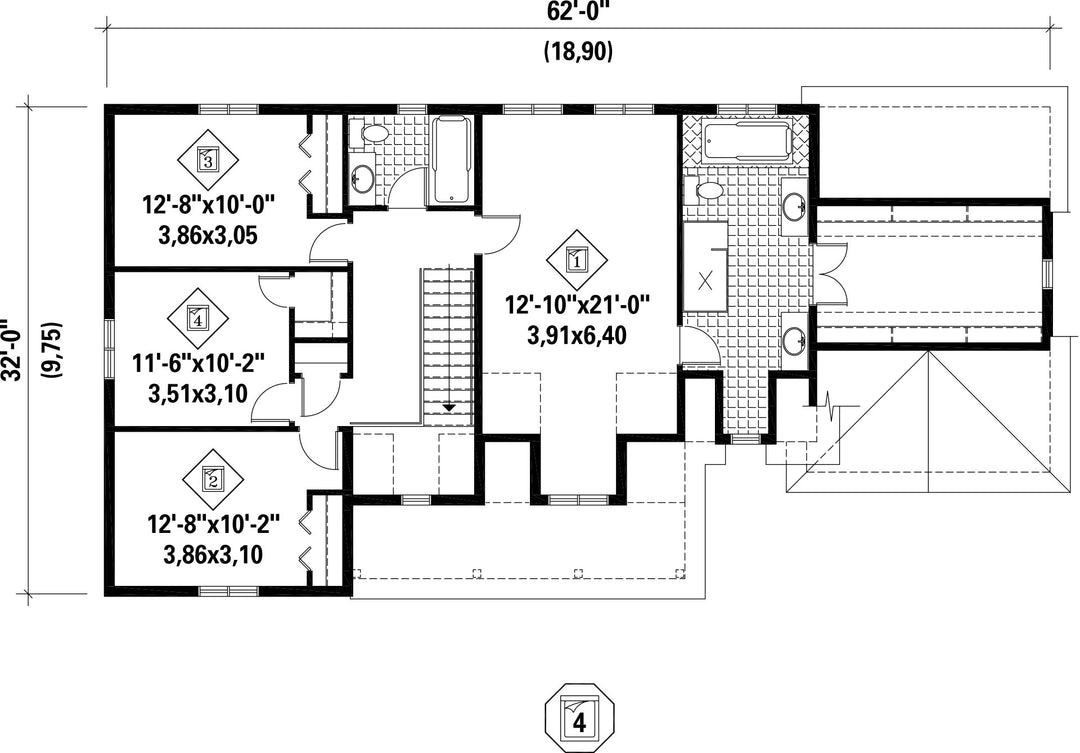
The second floor has 1,380 square feet of living space and includes a family bathroom and four bedrooms, one of which is a huge master bedroom with a large private bathroom and vast walk-in closet.
The ground floor has a 1,275 square foot living area and is divided into two distinct areas. One of the dwellings is reserved for seniors and includes a living room, a kitchen, a dining room, a bathroom and a bedroom. The second dwelling includes a large living room, a dining room, a kitchen with an island, a bathroom, and the bedrooms are on the upper floor.
The second floor has 1,380 square feet of living space and includes a family bathroom and four bedrooms, one of which is a huge master bedroom with a large private bathroom and vast walk-in closet.
Additional info
Measurements: Imperial| House style | Rustic |
Construction price
Approximate amount equivalent to what it would cost to have a general contractor (Montreal's South Shore region) build a similar home, excluding the lot and the infrastructure.
|
524236 $ |
|---|---|---|---|
| Front | 62 ft | Total living surface | 2655 ft² |
| Depth | 32 ft | Bathrooms | 4 |
| Height | 34 ft 2 in | Bedrooms | 5 |
| Master bedroom | N / A | ||
| First floor area | 1275 ft² | Exterior walls | Aluminum |
| Second floor area | 1380 ft² | Kitchen | L-shaped |
| Garage area | 369 ft² | Garages | 1 |
| Garage wall | 8 ft | First floor wall | 8 ft |
| Second floor wall | 8 ft | Front/back roof slope | 12/12 |
| House style | Rustic |
|---|---|
|
Construction price
Approximate amount equivalent to what it would cost to have a general contractor (Montreal's South Shore region) build a similar home, excluding the lot and the infrastructure.
|
524236 $ |
| Front | 62 ft |
| Total living surface | 2655 ft² |
| Depth | 32 ft |
| Bathrooms | 4 |
| Height | 34 ft 2 in |
| Bedrooms | 5 |
| Master bedroom | N / A |
| First floor area | 1275 ft² |
| Exterior walls | Aluminum |
| Second floor area | 1380 ft² |
| Kitchen | L-shaped |
| Garage area | 369 ft² |
| Garages | 1 |
| Garage wall | 8 ft |
| First floor wall | 8 ft |
| Second floor wall | 8 ft |
| Front/back roof slope | 12/12 |