Description
This two-storey house is most inviting with its decorative shutters and warm brick facing. The multigenerational home is 36 feet wide by 38 feet deep and provides 2,060 square feet of living space.
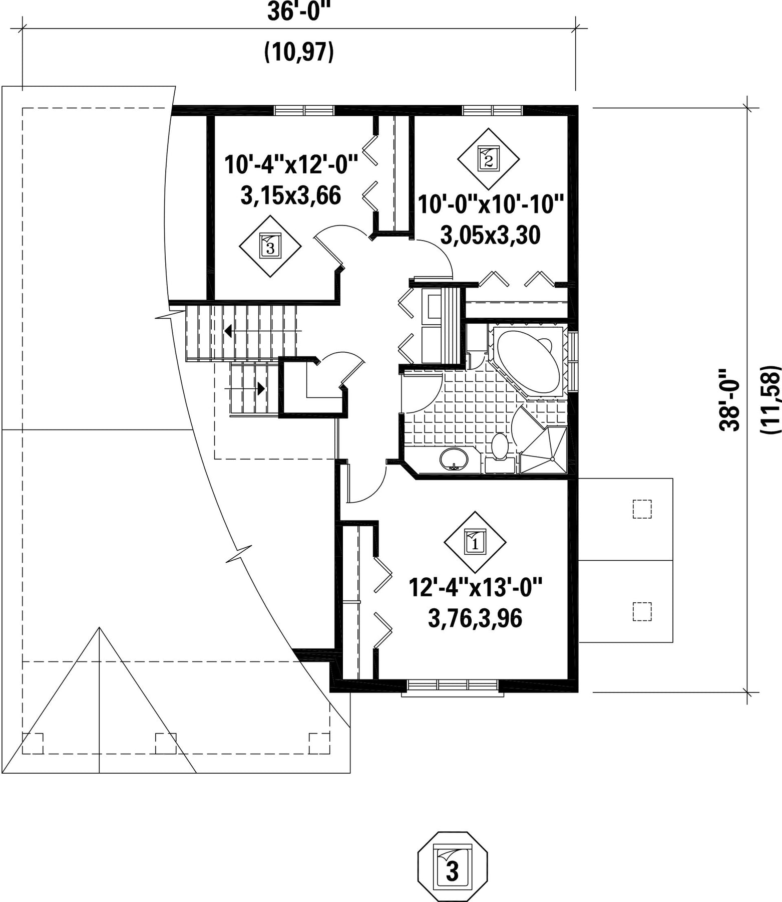
The ground floor has a 1,329 square foot living area and is divided into two distinct areas. Each unit has its own private entrance, one in the front and the other on the side of the house. A communicating door provides access to both units from inside. One of the units includes five rooms on the ground floor – a living room, a dining room, a kitchen, a bathroom and a bedroom. The other unit has four rooms on the ground floor – a powder room, a living room, a dining room and laboratory kitchen – as well as three bedrooms and a bathroom located on the second floor that has a 731 square foot living area.
The ground floor has a 1,329 square foot living area and is divided into two distinct areas. Each unit has its own private entrance, one in the front and the other on the side of the house. A communicating door provides access to both units from inside. One of the units includes five rooms on the ground floor – a living room, a dining room, a kitchen, a bathroom and a bedroom. The other unit has four rooms on the ground floor – a powder room, a living room, a dining room and laboratory kitchen – as well as three bedrooms and a bathroom located on the second floor that has a 731 square foot living area.
Additional info
Measurements: Imperial| House style | European |
Construction price
Approximate amount equivalent to what it would cost to have a general contractor (Montreal's South Shore region) build a similar home, excluding the lot and the infrastructure.
|
433123 $ |
|---|---|---|---|
| Front | 36 ft | Total living surface | 2060 ft² |
| Depth | 38 ft | Bathrooms | 2 |
| Height | 33 ft 3 in | Bedrooms | 4 |
| Master bedroom | N / A | Master bedroom - comments | --- |
| First floor area | 1329 ft² | Exterior walls | Aluminum + Brick |
| Second floor area | 731 ft² | Kitchen | Laboratory |
| Garages | 0 | ||
| First floor wall | 9 ft | ||
| Second floor wall | 8 ft | Front/back roof slope | 8/12 |
| House style | European |
|---|---|
|
Construction price
Approximate amount equivalent to what it would cost to have a general contractor (Montreal's South Shore region) build a similar home, excluding the lot and the infrastructure.
|
433123 $ |
| Front | 36 ft |
| Total living surface | 2060 ft² |
| Depth | 38 ft |
| Bathrooms | 2 |
| Height | 33 ft 3 in |
| Bedrooms | 4 |
| Master bedroom | N / A |
| Master bedroom - comments | --- |
| First floor area | 1329 ft² |
| Exterior walls | Aluminum + Brick |
| Second floor area | 731 ft² |
| Kitchen | Laboratory |
| Garages | 0 |
| First floor wall | 9 ft |
| Second floor wall | 8 ft |
| Front/back roof slope | 8/12 |