Description
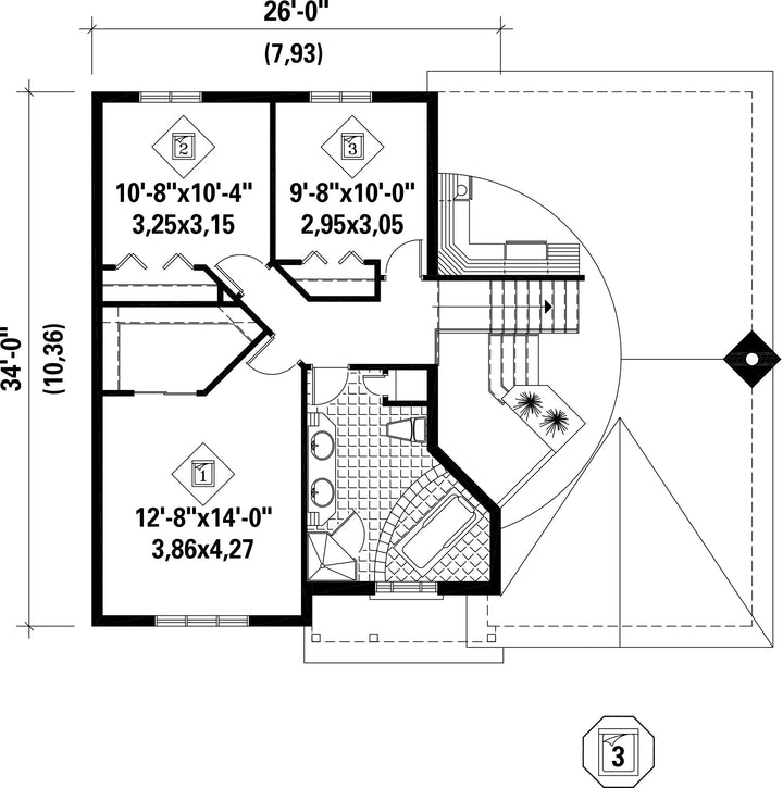
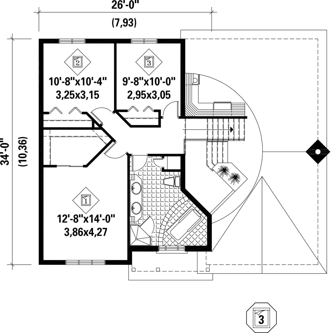
This attractive home seems to be a two-storey house like many others. In fact, it's a multigenerational house that includes two private dwellings that share a common entrance at the front. It provides 2,153 square feet of living space and is 43 feet 10 inches wide by 34 feet deep.
The ground floor occupies 1,391 square feet and is divided into two distinct areas. One of the dwellings includes a bathroom, a bedroom, as well as an open living room, dining room and kitchen. The other unit has a large living room, a dining room, a kitchen, as well as three bedrooms on the second floor that provides 762 square feet of living space and also includes a bathroom.
The ground floor occupies 1,391 square feet and is divided into two distinct areas. One of the dwellings includes a bathroom, a bedroom, as well as an open living room, dining room and kitchen. The other unit has a large living room, a dining room, a kitchen, as well as three bedrooms on the second floor that provides 762 square feet of living space and also includes a bathroom.
Additional info
Measurements: Imperial| House style | European |
Construction price
Approximate amount equivalent to what it would cost to have a general contractor (Montreal's South Shore region) build a similar home, excluding the lot and the infrastructure.
|
448443 $ |
|---|---|---|---|
| Front | 43 ft 10 in | Total living surface | 2153 ft² |
| Depth | 34 ft | Bathrooms | 2 |
| Height | 30 ft 9 in | Bedrooms | 4 |
| Master bedroom | N / A | ||
| First floor area | 1391 ft² | Exterior walls | Aggregates + Brick |
| Second floor area | 762 ft² | Kitchen | N / A |
| Garages | 0 | ||
| First floor wall | 8 ft | ||
| Second floor wall | 8 ft | Front/back roof slope | 8/12 |
| Left/right roof slope | 12/12 |
| House style | European |
|---|---|
|
Construction price
Approximate amount equivalent to what it would cost to have a general contractor (Montreal's South Shore region) build a similar home, excluding the lot and the infrastructure.
|
448443 $ |
| Front | 43 ft 10 in |
| Total living surface | 2153 ft² |
| Depth | 34 ft |
| Bathrooms | 2 |
| Height | 30 ft 9 in |
| Bedrooms | 4 |
| Master bedroom | N / A |
| First floor area | 1391 ft² |
| Exterior walls | Aggregates + Brick |
| Second floor area | 762 ft² |
| Kitchen | N / A |
| Garages | 0 |
| First floor wall | 8 ft |
| Second floor wall | 8 ft |
| Front/back roof slope | 8/12 |
| Left/right roof slope | 12/12 |