Description
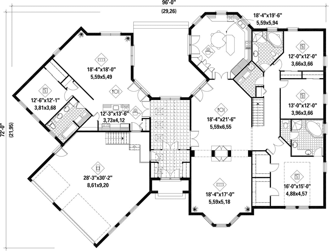
This prestigious multigenerational house is 96 feet wide by 72 feet deep. The elegant bungalow provides 3,701 square feet of living space in addition to an 864 square foot three-car garage that has direct access to the basement.
The home includes a very large common atrium with huge windows and a cathedral ceiling with several skylights.
One of the dwellings includes an open living room and a dining room with a see through fireplace in the middle, a large kitchen with an island and a lunch counter, a laundry room, a bathroom as well as three bedrooms, one of which is a master bedroom with two walk-in closets and a large private bathroom.
The second dwelling has a large open area that incorporates the living room, the dining room and the kitchen, and also includes a bedroom and a bathroom.
The home includes a very large common atrium with huge windows and a cathedral ceiling with several skylights.
One of the dwellings includes an open living room and a dining room with a see through fireplace in the middle, a large kitchen with an island and a lunch counter, a laundry room, a bathroom as well as three bedrooms, one of which is a master bedroom with two walk-in closets and a large private bathroom.
The second dwelling has a large open area that incorporates the living room, the dining room and the kitchen, and also includes a bedroom and a bathroom.
Additional info
Measurements: Imperial| House style | European |
Construction price
Approximate amount equivalent to what it would cost to have a general contractor (Montreal's South Shore region) build a similar home, excluding the lot and the infrastructure.
|
1074184 $ |
|---|---|---|---|
| Front | 96 ft | Total living surface | 3701 ft² |
| Depth | 72 ft | Bathrooms | 3 |
| Height | 36 ft 6 in | Bedrooms | 4 |
| Master bedroom | Pedestal bath + Shower + Double sink + Wardrobe + Double doors + Toilet | ||
| First floor area | 3701 ft² | Exterior walls | Rock |
| Kitchen | Meal counter + Laboratory + Island | ||
| Garage area | 864 ft² | Garages | 3 and more |
| Garage wall | 8 ft | First floor wall | 8 ft |
| Front/back roof slope | 8/12 | ||
| Left/right roof slope | 18/12 |
| House style | European |
|---|---|
|
Construction price
Approximate amount equivalent to what it would cost to have a general contractor (Montreal's South Shore region) build a similar home, excluding the lot and the infrastructure.
|
1074184 $ |
| Front | 96 ft |
| Total living surface | 3701 ft² |
| Depth | 72 ft |
| Bathrooms | 3 |
| Height | 36 ft 6 in |
| Bedrooms | 4 |
| Master bedroom | Pedestal bath + Shower + Double sink + Wardrobe + Double doors + Toilet |
| First floor area | 3701 ft² |
| Exterior walls | Rock |
| Kitchen | Meal counter + Laboratory + Island |
| Garage area | 864 ft² |
| Garages | 3 and more |
| Garage wall | 8 ft |
| First floor wall | 8 ft |
| Front/back roof slope | 8/12 |
| Left/right roof slope | 18/12 |