Description
This two-storey house is both elegant and modern with its stone and horizontal aluminum facing in the front as well as its impressive front porch with decorative columns. The house is 42 feet 10 inches wide by 48 feet 5 inches deep, provides 2,536 square feet of living space as well as a 446 square foot two-car garage.
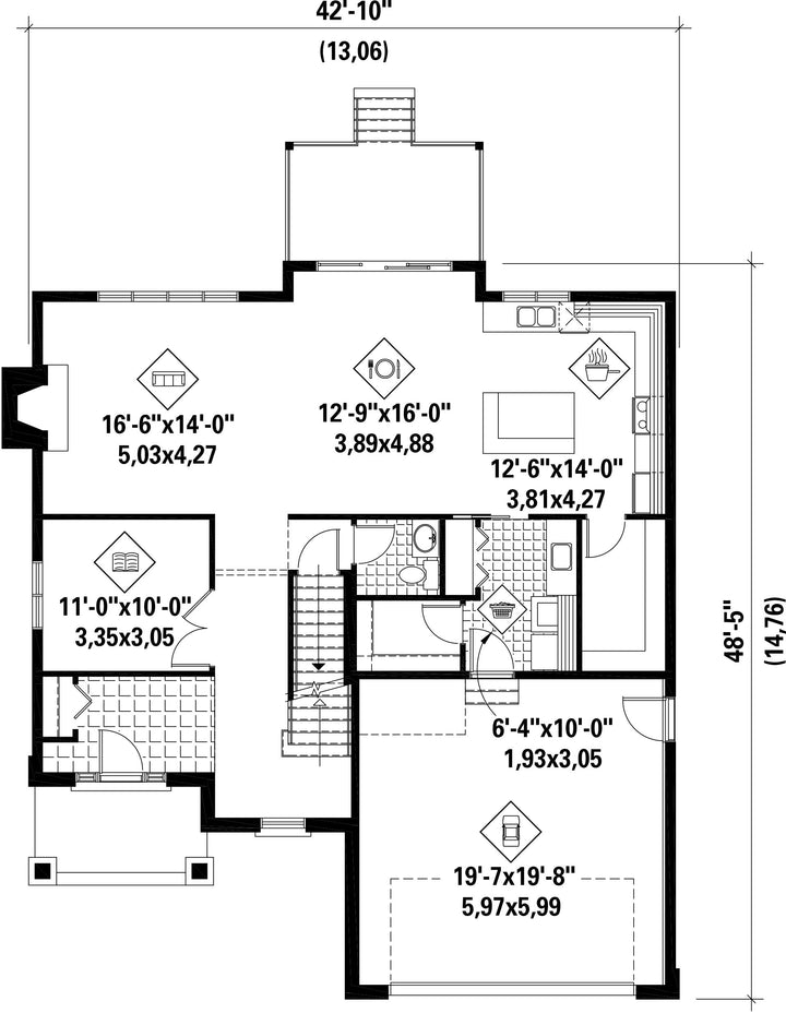
With a 1,274 square foot living area and nine-foot high ceilings, the ground floor features a large entrance hall, a reading room, a powder room, a laundry room with a walk-in closet, as well as a spacious open area that includes a living room with a fireplace, a dining room as well as a large kitchen with an island and a vast pantry.
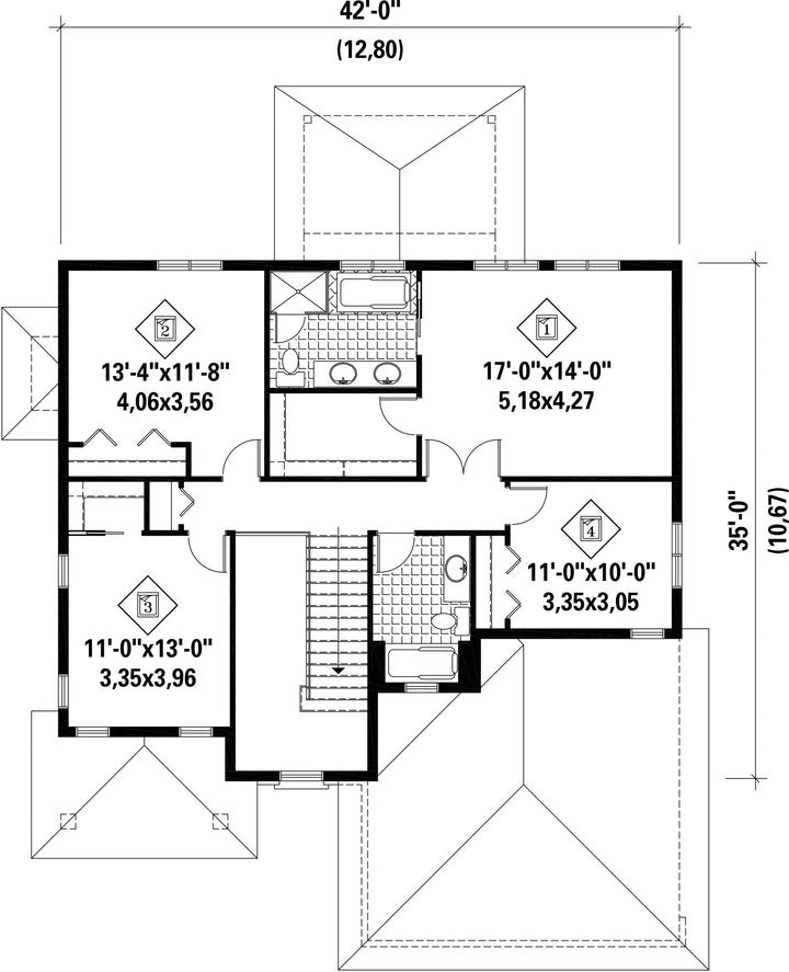
The upper floor has 1,262 square feet of living space and features a large master bedroom with a private bathroom and a walk-in closet, as well as three other bedrooms and a family bathroom.
With a 1,274 square foot living area and nine-foot high ceilings, the ground floor features a large entrance hall, a reading room, a powder room, a laundry room with a walk-in closet, as well as a spacious open area that includes a living room with a fireplace, a dining room as well as a large kitchen with an island and a vast pantry.
The upper floor has 1,262 square feet of living space and features a large master bedroom with a private bathroom and a walk-in closet, as well as three other bedrooms and a family bathroom.
Additional info
Measurements: Imperial| House style | Handcrafted |
Construction price
Approximate amount equivalent to what it would cost to have a general contractor (Montreal's South Shore region) build a similar home, excluding the lot and the infrastructure.
|
511304 $ |
|---|---|---|---|
| Front | 42 ft 10 in | Total living surface | 2536 ft² |
| Depth | 48 ft 5 in | Bathrooms | 2 |
| Height | 28 ft 9 in | Bedrooms | 4 |
| Master bedroom | Bathtub + Shower + Double sink + Wardrobe + Double doors + Toilet | ||
| First floor area | 1274 ft² | Exterior walls | Aluminum + Stone |
| Second floor area | 1262 ft² | Kitchen | Breakfast bar + L-shaped layout + Dining room + Island |
| Garage area | 446 ft² | Garages | 2 |
| Garage wall | 8 ft | First floor wall | 9 ft |
| Second floor wall | 8 ft | Front/back roof slope | 6/12 |
| Left/right roof slope | 6/12 |
| House style | Handcrafted |
|---|---|
|
Construction price
Approximate amount equivalent to what it would cost to have a general contractor (Montreal's South Shore region) build a similar home, excluding the lot and the infrastructure.
|
511304 $ |
| Front | 42 ft 10 in |
| Total living surface | 2536 ft² |
| Depth | 48 ft 5 in |
| Bathrooms | 2 |
| Height | 28 ft 9 in |
| Bedrooms | 4 |
| Master bedroom | Bathtub + Shower + Double sink + Wardrobe + Double doors + Toilet |
| First floor area | 1274 ft² |
| Exterior walls | Aluminum + Stone |
| Second floor area | 1262 ft² |
| Kitchen | Breakfast bar + L-shaped layout + Dining room + Island |
| Garage area | 446 ft² |
| Garages | 2 |
| Garage wall | 8 ft |
| First floor wall | 9 ft |
| Second floor wall | 8 ft |
| Front/back roof slope | 6/12 |
| Left/right roof slope | 6/12 |