R-19A
R-19A
R-19A
R-19A

R-19A


Fichier - File
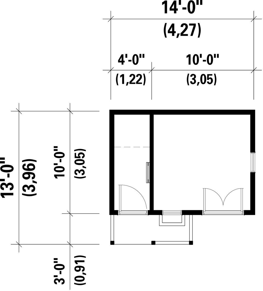
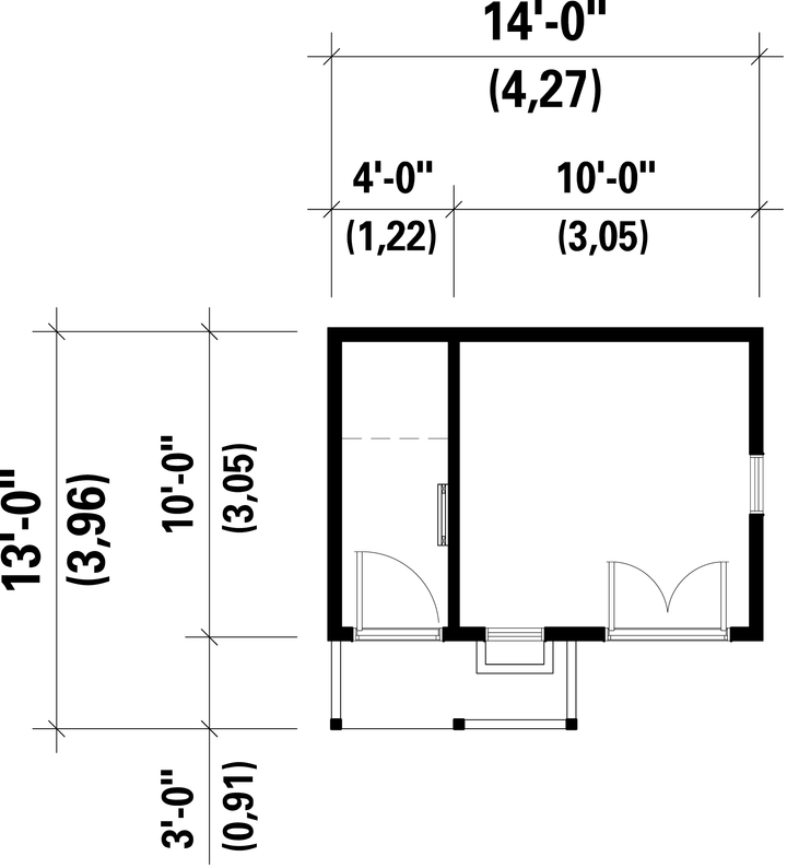
Dimensions
Liste des matériaux - List of materials
Regular price$59.95
/

This site is protected by hCaptcha and the hCaptcha Privacy Policy and Terms of Service apply.

Description

With its gabled roof, this garden shed is both charming and practical. The ground floor can be used as a storage area, and the loft, which is accessible by a staircase, can be used as a playroom for the kids. In addition to the entrance door, the shed has a double door that is large enough to accommodate a lawn tractor or an all-terrain vehicle. A dormer window lights up the loft and two windows, one of which has a flower box, brighten the ground floor.

Additional info

Measurements: Imperial

Bathrooms 0
Bedrooms 0
Garages 0
First floor wall 8 ft
Bathrooms 0
Bedrooms 0
Garages 0
First floor wall 8 ft

Ces plans de maison pourraient également vous intéresser


Recently viewed