G-17A
G-17A
G-17A

G-17A


Fichier - File
Dimensions
Liste des matériaux - List of materials
Regular price$224.95
/

This site is protected by hCaptcha and the hCaptcha Privacy Policy and Terms of Service apply.

Description

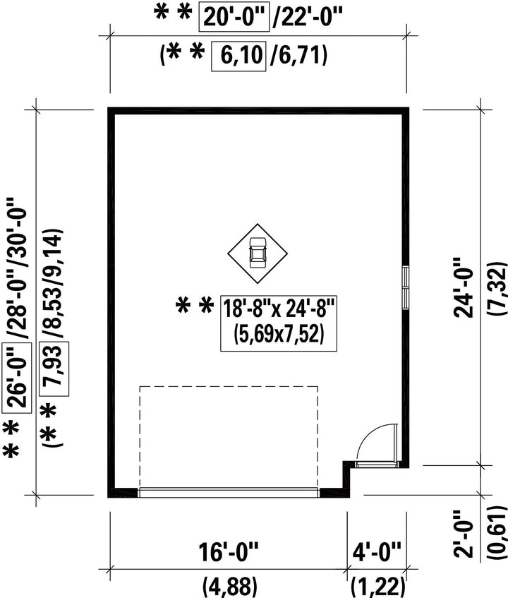
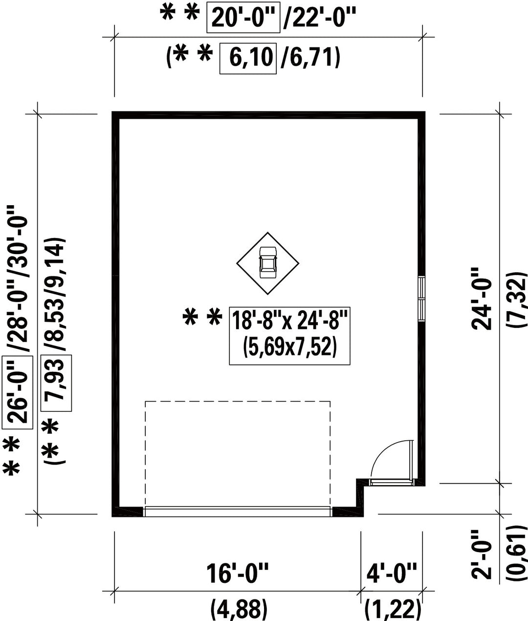
You car will be protected in this one-car garage that includes a garage door and an entrance door in the front, and a window on the right side. The room is big enough to set up a workshop against the wall on the right side.

Additional info

Measurements: Imperial

Bathrooms 0
Bedrooms 0
Exterior walls Aluminum
Garages 1
Garage wall 8 ftFirst floor wall 8 ft
Front/back roof slope 10/12
Left/right roof slope 10/12
Bathrooms 0
Bedrooms 0
Exterior walls Aluminum
Garages 1
Garage wall 8 ft
First floor wall 8 ft
Front/back roof slope 10/12
Left/right roof slope 10/12

Ces plans de maison pourraient également vous intéresser


Recently viewed