Description
"Plafond de 10'0"" au salon
Salle familiale au-dessus du garage
"
Salle familiale au-dessus du garage
"
Caractéristiques
Mesures : ImpérialStyle d'architecture | Champêtre |
Coût de construction
Montant approximatif équivalent à celui d'un entrepreneur général (région de la Rive-Sud de Montréal) pour une construction clé en main sans terrain ni infrastructures.
|
337091 $ |
---|---|---|---|
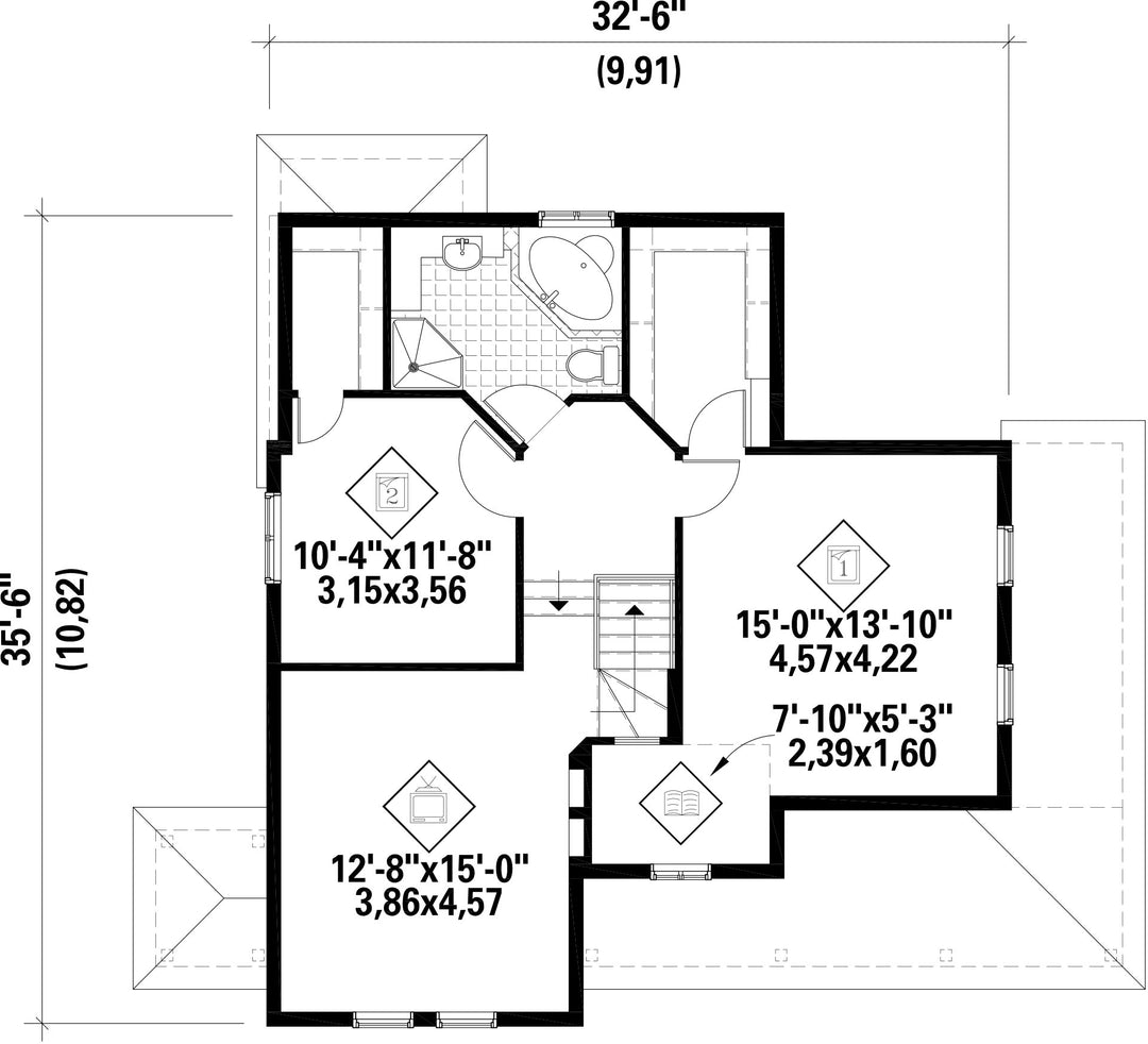
Façade | 37 pi 6 po | Surface habitable totale | 1639 pi² |
Profondeur | 38 pi | Nombre de salles de bain | 1 |
Hauteur | 34 pi 4 po | Nombre de chambres | 2 |
Chambre des maîtres | Penderie | Chambre des maîtres - commentaires | Coin détente dans la chambre des maîtres |
Surface rez-de-chaussée | 742 pi² | Finition extérieure | Aluminium + Brique |
Surface étage | 897 pi² | Type de cuisine | Comptoir repas + Salle à manger |
Surface garage | 266 pi² | Garage | 1 |
Mur garage | 8 pi | Mur rez-de-chaussée | 10 pi |
Mur étage | 10 pi | Inclinaison toit avant/arrière | 14/12 |
Inclinaison toit gauche/droite | 7/12 |
Style d'architecture | Champêtre |
---|---|
Coût de construction
Montant approximatif équivalent à celui d'un entrepreneur général (région de la Rive-Sud de Montréal) pour une construction clé en main sans terrain ni infrastructures.
|
337091 $ |
Façade | 37 pi 6 po |
Surface habitable totale | 1639 pi² |
Profondeur | 38 pi |
Nombre de salles de bain | 1 |
Hauteur | 34 pi 4 po |
Nombre de chambres | 2 |
Chambre des maîtres | Penderie |
Chambre des maîtres - commentaires | Coin détente dans la chambre des maîtres |
Surface rez-de-chaussée | 742 pi² |
Finition extérieure | Aluminium + Brique |
Surface étage | 897 pi² |
Type de cuisine | Comptoir repas + Salle à manger |
Surface garage | 266 pi² |
Garage | 1 |
Mur garage | 8 pi |
Mur rez-de-chaussée | 10 pi |
Mur étage | 10 pi |
Inclinaison toit avant/arrière | 14/12 |
Inclinaison toit gauche/droite | 7/12 |