DNC210001
DNC210001
DNC210001
DNC210001

DNC210001


Jeux de plans - Sets of plans
Prix régulier$1,440.00
/

Ce site est protégé par hCaptcha, et la Politique de confidentialité et les Conditions de service de hCaptcha s’appliquent.

Description

Penderie à l'entrée

Caractéristiques

Mesures : Impérial

Style d'architecture Victorien Coût de construction 
Montant approximatif équivalent à celui d'un entrepreneur général (région de la Rive-Sud de Montréal) pour une construction clé en main sans terrain ni infrastructures.
282375 $
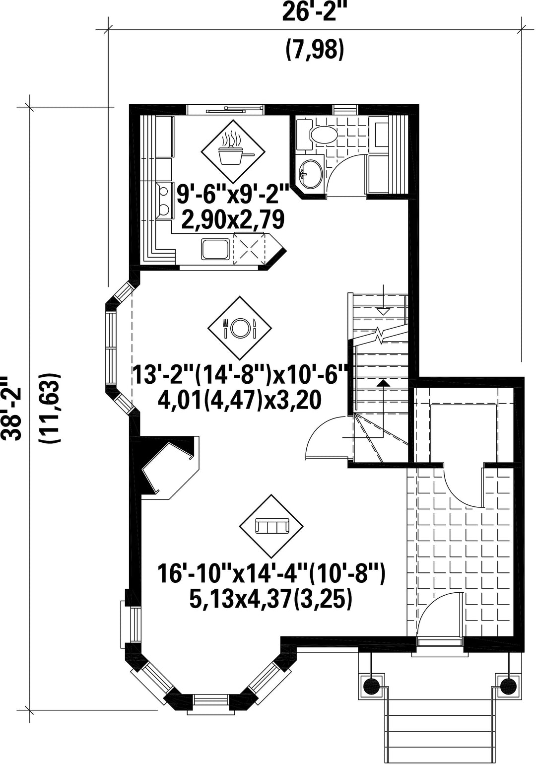
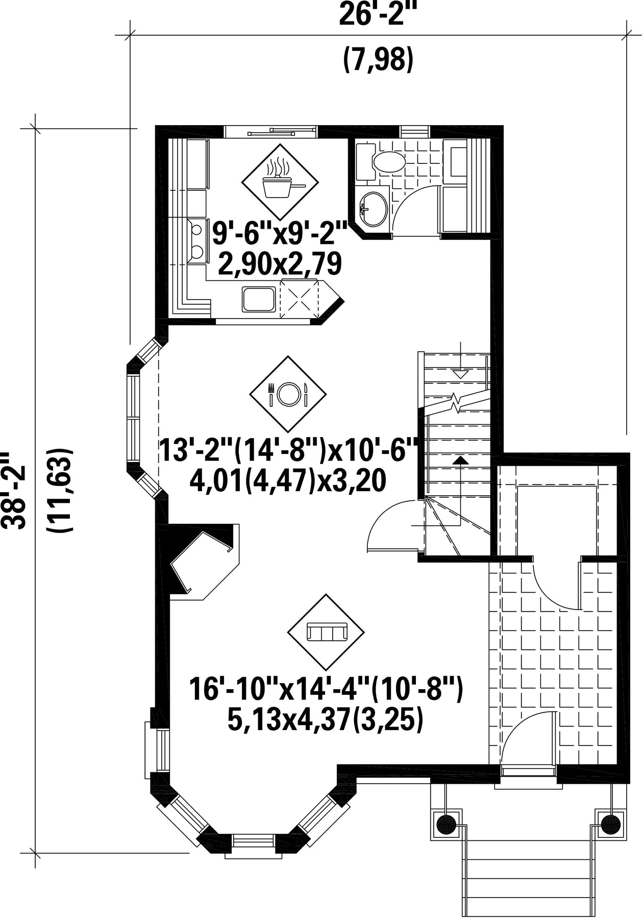
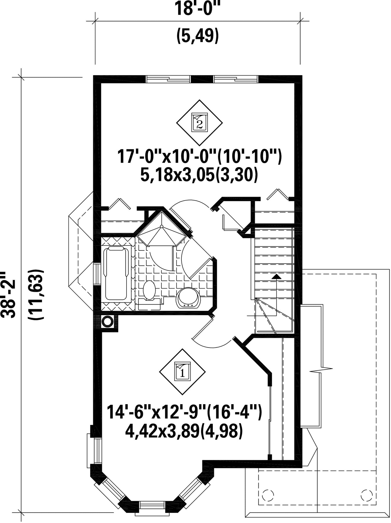
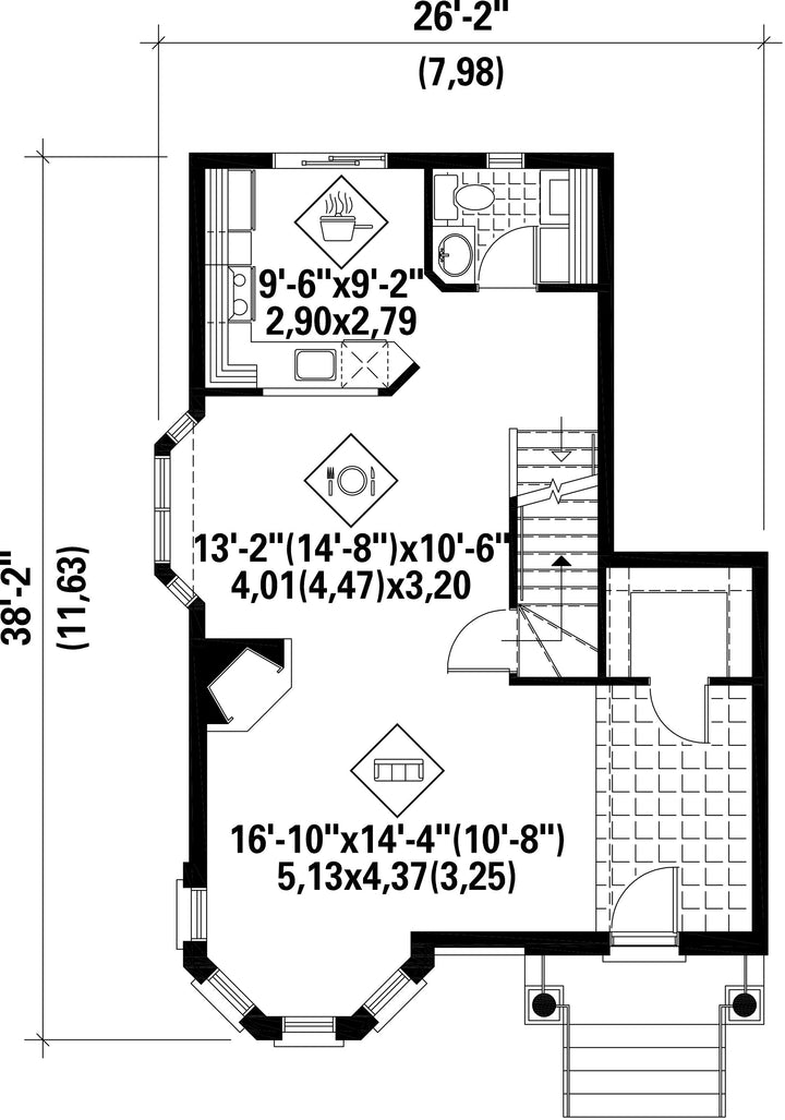
Façade 26 pi 2 po Surface habitable totale 1428 pi²
Profondeur 38 pi 2 poNombre de salles de bain 1
Hauteur 27 pi 3 poNombre de chambres 2
Chambre des maîtres - commentaires Tourelle
Surface rez-de-chaussée 778 pi² Finition extérieure Agrégats + Aluminium + Brique
Surface étage 650 pi² Type de cuisine Forme en L + Salle à manger
Garage 0
Mur rez-de-chaussée 8 pi
Mur étage 8 piInclinaison toit avant/arrière 7/12
Inclinaison toit gauche/droite 7/12
Style d'architecture Victorien
Coût de construction 
Montant approximatif équivalent à celui d'un entrepreneur général (région de la Rive-Sud de Montréal) pour une construction clé en main sans terrain ni infrastructures.
282375 $
Façade 26 pi 2 po
Surface habitable totale 1428 pi²
Profondeur 38 pi 2 po
Nombre de salles de bain 1
Hauteur 27 pi 3 po
Nombre de chambres 2
Chambre des maîtres - commentaires Tourelle
Surface rez-de-chaussée 778 pi²
Finition extérieure Agrégats + Aluminium + Brique
Surface étage 650 pi²
Type de cuisine Forme en L + Salle à manger
Garage 0
Mur rez-de-chaussée 8 pi
Mur étage 8 pi
Inclinaison toit avant/arrière 7/12
Inclinaison toit gauche/droite 7/12

Ces plans de maison pourraient également vous intéresser


Vu récemment