Description
Ces deux maisons à étage avec façade de briques construites côte à côte mesurent 45 pieds de largeur sur 30 pieds de profondeur et offrent une superficie habitable de 3 420 pieds carrés.
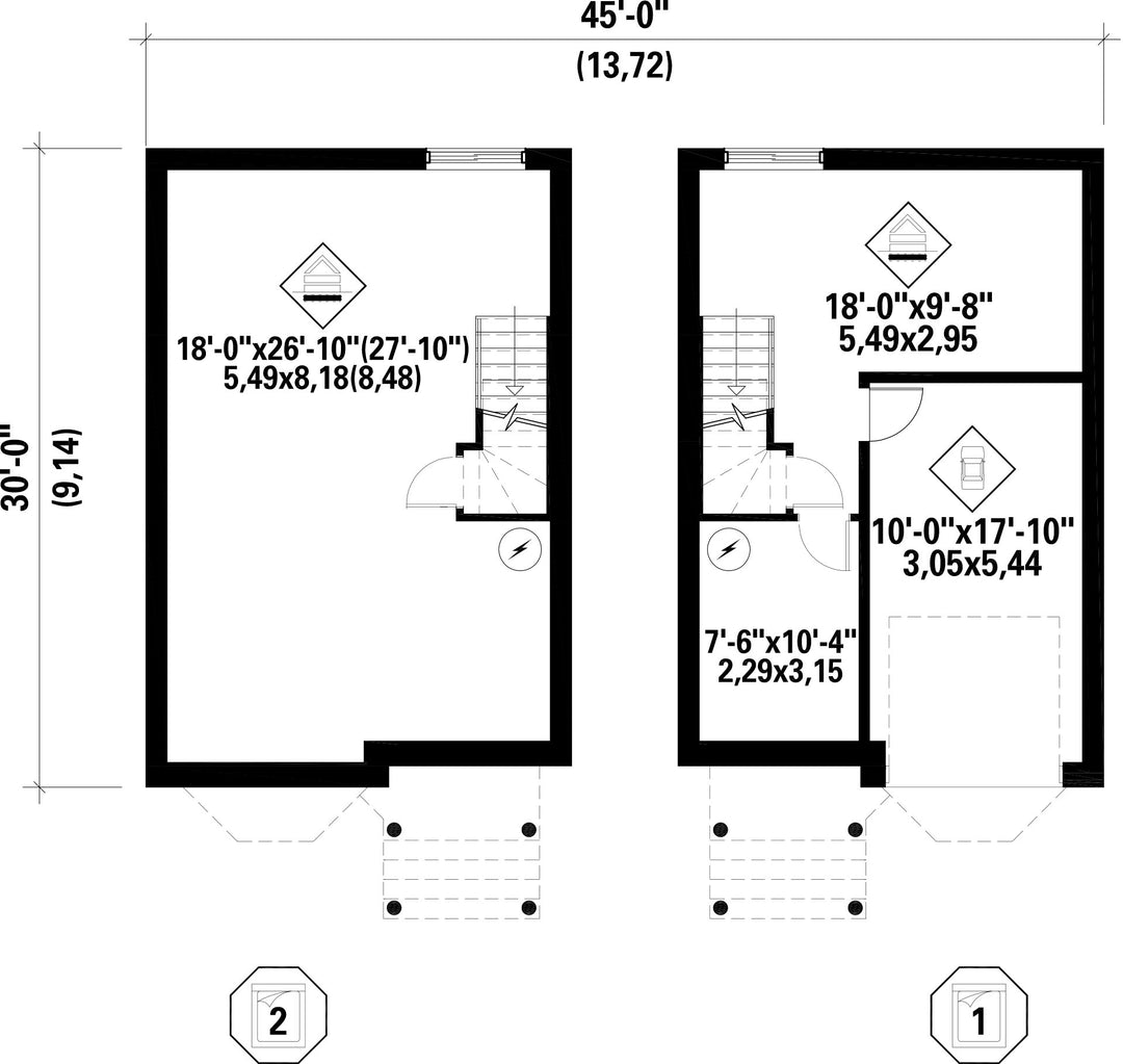
Le sous-sol de chaque unité mesure 974 pieds carrés. Une des deux unités comprend une pièce à aire ouverte. L’autre a deux pièces qui peuvent être utilisées soit comme salle familiale, comme espace de rangement ou comme atelier, ainsi qu’un garage simple de 210 pieds carrés.
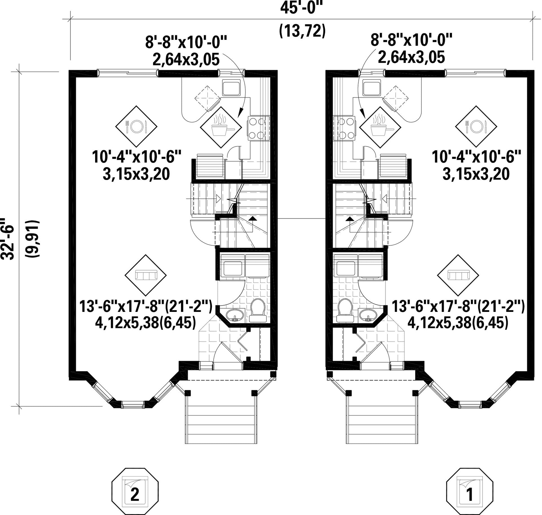
Avec une surface habitable de 1 214 pieds carrés, les deux maisons ont des rez-de-chaussée à aire ouverte identiques qui comptent un salon, une salle à manger, une cuisine fonctionnelle et une salle d’eau.
L’étage de 1 232 pieds carrés est presque identique dans les deux demeures. Une des maisons comprend une chambre avec une grande penderie, une salle de bains et une salle de lecture. L’autre dispose d’une très grande chambre des maîtres avec coin lecture ainsi qu’une salle de bains.
Le sous-sol de chaque unité mesure 974 pieds carrés. Une des deux unités comprend une pièce à aire ouverte. L’autre a deux pièces qui peuvent être utilisées soit comme salle familiale, comme espace de rangement ou comme atelier, ainsi qu’un garage simple de 210 pieds carrés.
Avec une surface habitable de 1 214 pieds carrés, les deux maisons ont des rez-de-chaussée à aire ouverte identiques qui comptent un salon, une salle à manger, une cuisine fonctionnelle et une salle d’eau.
L’étage de 1 232 pieds carrés est presque identique dans les deux demeures. Une des maisons comprend une chambre avec une grande penderie, une salle de bains et une salle de lecture. L’autre dispose d’une très grande chambre des maîtres avec coin lecture ainsi qu’une salle de bains.
Caractéristiques
Mesures : Impérial| Style d'architecture | Victorien |
Coût de construction
Montant approximatif équivalent à celui d'un entrepreneur général (région de la Rive-Sud de Montréal) pour une construction clé en main sans terrain ni infrastructures.
|
512905 $ |
|---|---|---|---|
| Façade | 45 pi | Surface habitable totale | 3420 pi² |
| Profondeur | 30 pi | Nombre de salles de bain | 2 |
| Hauteur | 28 pi 10 po | Nombre de chambres | 3 |
| Chambre des maîtres - commentaires | Grande chambre des maîtres | ||
| Surface rez-de-chaussée | 1214 pi² | Finition extérieure | Aluminium + Brique |
| Surface étage | 1232 pi² | Type de cuisine | Forme en U |
| Surface garage | 210 pi² | Garage | 1 |
| Mur garage | 8 pi | Mur rez-de-chaussée | 8 pi |
| Mur étage | 8 pi | Inclinaison toit avant/arrière | 6/12 |
| Surface sous-sol | 974 pi² |
| Style d'architecture | Victorien |
|---|---|
|
Coût de construction
Montant approximatif équivalent à celui d'un entrepreneur général (région de la Rive-Sud de Montréal) pour une construction clé en main sans terrain ni infrastructures.
|
512905 $ |
| Façade | 45 pi |
| Surface habitable totale | 3420 pi² |
| Profondeur | 30 pi |
| Nombre de salles de bain | 2 |
| Hauteur | 28 pi 10 po |
| Nombre de chambres | 3 |
| Chambre des maîtres - commentaires | Grande chambre des maîtres |
| Surface rez-de-chaussée | 1214 pi² |
| Finition extérieure | Aluminium + Brique |
| Surface étage | 1232 pi² |
| Type de cuisine | Forme en U |
| Surface garage | 210 pi² |
| Garage | 1 |
| Mur garage | 8 pi |
| Mur rez-de-chaussée | 8 pi |
| Mur étage | 8 pi |
| Inclinaison toit avant/arrière | 6/12 |
| Surface sous-sol | 974 pi² |