Description
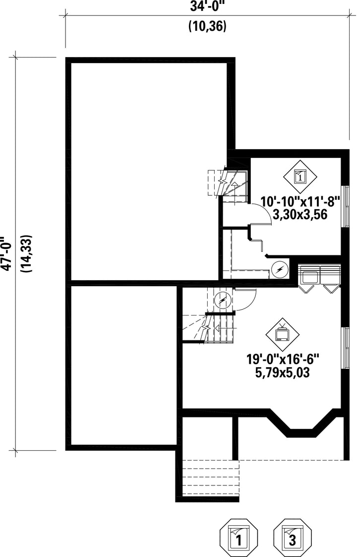
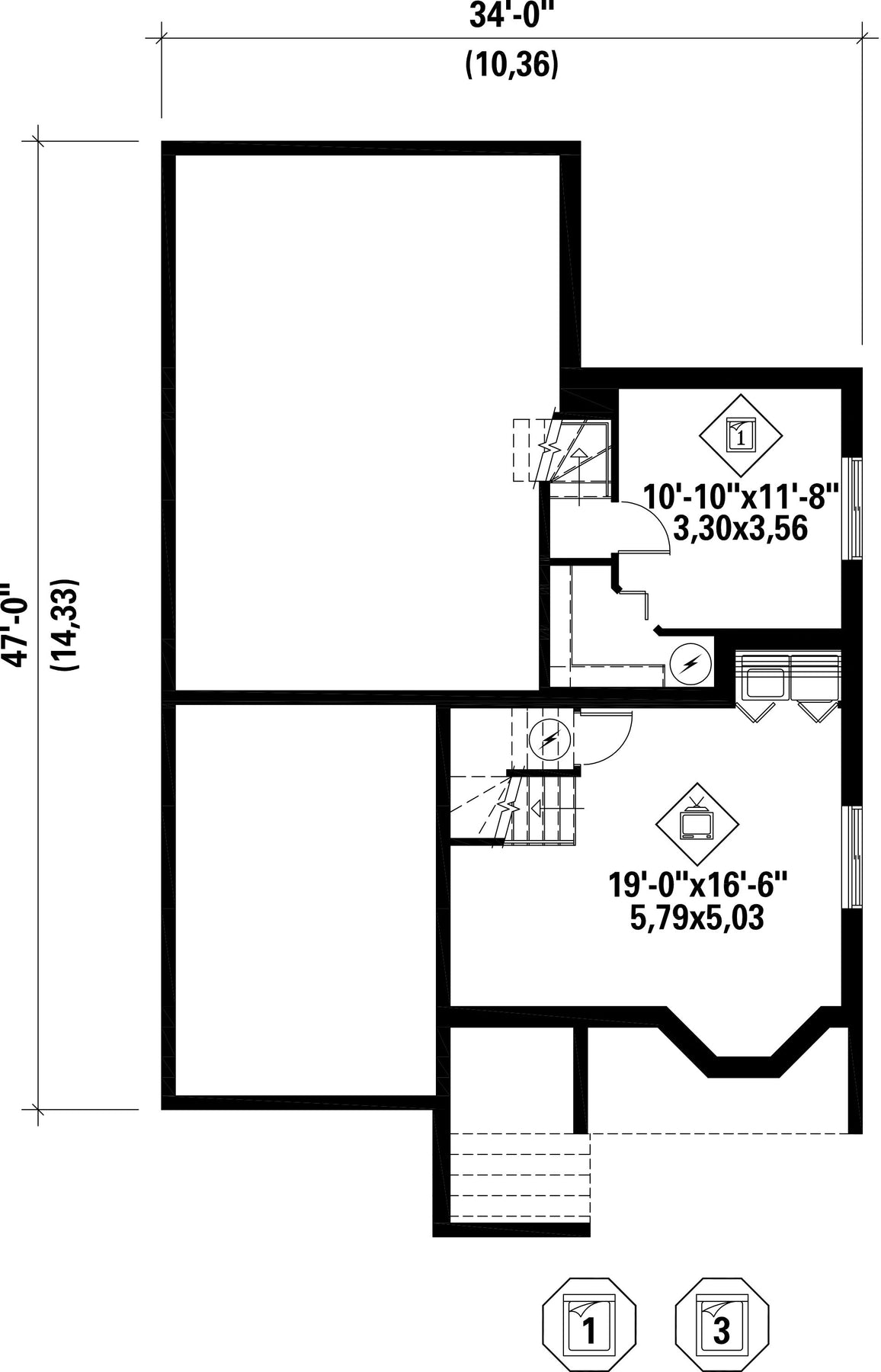
Avec ses détails architecturaux et sa tourelle, cette élégante maison à paliers de type « bigénération » se distingue des autres. Elle mesure 34 pieds de largeur sur 47 pieds de profondeur et est composée de deux logements privés. La superficie habitable totale est de 2 340 pieds carrés. Le sous-sol mesure 571 pieds carrés, le rez-de-chaussée 1 117 pieds carrés, et l’étage 652 pieds carrés. Le garage simple mesure 266 pieds carrés et donne accès à la maison principale.
Accessible par une porte de côté, le logement destiné aux aînés comprend une chambre avec une grande penderie au sous-sol. Leur section du rez-de-chaussée comporte un salon, une cuisine, une salle à manger, ainsi qu’une salle de bains et une salle de lavage.
Le logement réservé à l’autre famille comprend une salle familiale au sous-sol, un salon et une salle à manger à aire ouverte, ainsi qu’une cuisine au rez-de-chaussée. L’étage comporte trois chambres et une salle de bains.
Accessible par une porte de côté, le logement destiné aux aînés comprend une chambre avec une grande penderie au sous-sol. Leur section du rez-de-chaussée comporte un salon, une cuisine, une salle à manger, ainsi qu’une salle de bains et une salle de lavage.
Le logement réservé à l’autre famille comprend une salle familiale au sous-sol, un salon et une salle à manger à aire ouverte, ainsi qu’une cuisine au rez-de-chaussée. L’étage comporte trois chambres et une salle de bains.
Caractéristiques
Mesures : Impérial| Style d'architecture | Champêtre |
Coût de construction
Montant approximatif équivalent à celui d'un entrepreneur général (région de la Rive-Sud de Montréal) pour une construction clé en main sans terrain ni infrastructures.
|
396458 $ |
|---|---|---|---|
| Façade | 34 pi | Surface habitable totale | 2340 pi² |
| Profondeur | 47 pi | Nombre de salles de bain | 2 |
| Hauteur | 30 pi | Nombre de chambres | 4 |
| Chambre des maîtres - commentaires | --- | ||
| Surface rez-de-chaussée | 1117 pi² | Finition extérieure | Agrégats + Aluminium |
| Surface étage | 652 pi² | ||
| Surface garage | 266 pi² | Garage | 1 |
| Mur garage | 8 pi | Mur rez-de-chaussée | 8 pi |
| Mur étage | 8 pi | Inclinaison toit avant/arrière | 8/12 |
| Inclinaison toit gauche/droite | 12/12 | Surface sous-sol | 571 pi² |
| Style d'architecture | Champêtre |
|---|---|
|
Coût de construction
Montant approximatif équivalent à celui d'un entrepreneur général (région de la Rive-Sud de Montréal) pour une construction clé en main sans terrain ni infrastructures.
|
396458 $ |
| Façade | 34 pi |
| Surface habitable totale | 2340 pi² |
| Profondeur | 47 pi |
| Nombre de salles de bain | 2 |
| Hauteur | 30 pi |
| Nombre de chambres | 4 |
| Chambre des maîtres - commentaires | --- |
| Surface rez-de-chaussée | 1117 pi² |
| Finition extérieure | Agrégats + Aluminium |
| Surface étage | 652 pi² |
| Surface garage | 266 pi² |
| Garage | 1 |
| Mur garage | 8 pi |
| Mur rez-de-chaussée | 8 pi |
| Mur étage | 8 pi |
| Inclinaison toit avant/arrière | 8/12 |
| Inclinaison toit gauche/droite | 12/12 |
| Surface sous-sol | 571 pi² |