DNC059031
DNC059031
DNC059031
DNC059031

DNC059031


Jeux de plans - Sets of plans
Prix régulier$1,640.00
/

Ce site est protégé par hCaptcha, et la Politique de confidentialité et les Conditions de service de hCaptcha s’appliquent.

Description

"Maison de type Bigénération, 3 chambres + 1 chambre Fenêtre arquée sur la façade"

Caractéristiques

Mesures : Impérial

Style d'architecture Classique Coût de construction 
Montant approximatif équivalent à celui d'un entrepreneur général (région de la Rive-Sud de Montréal) pour une construction clé en main sans terrain ni infrastructures.
404617 $
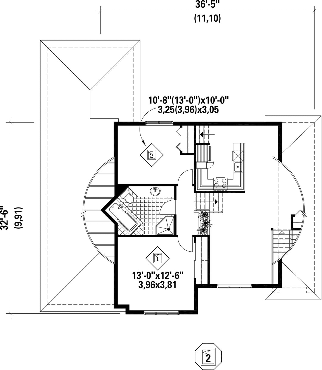
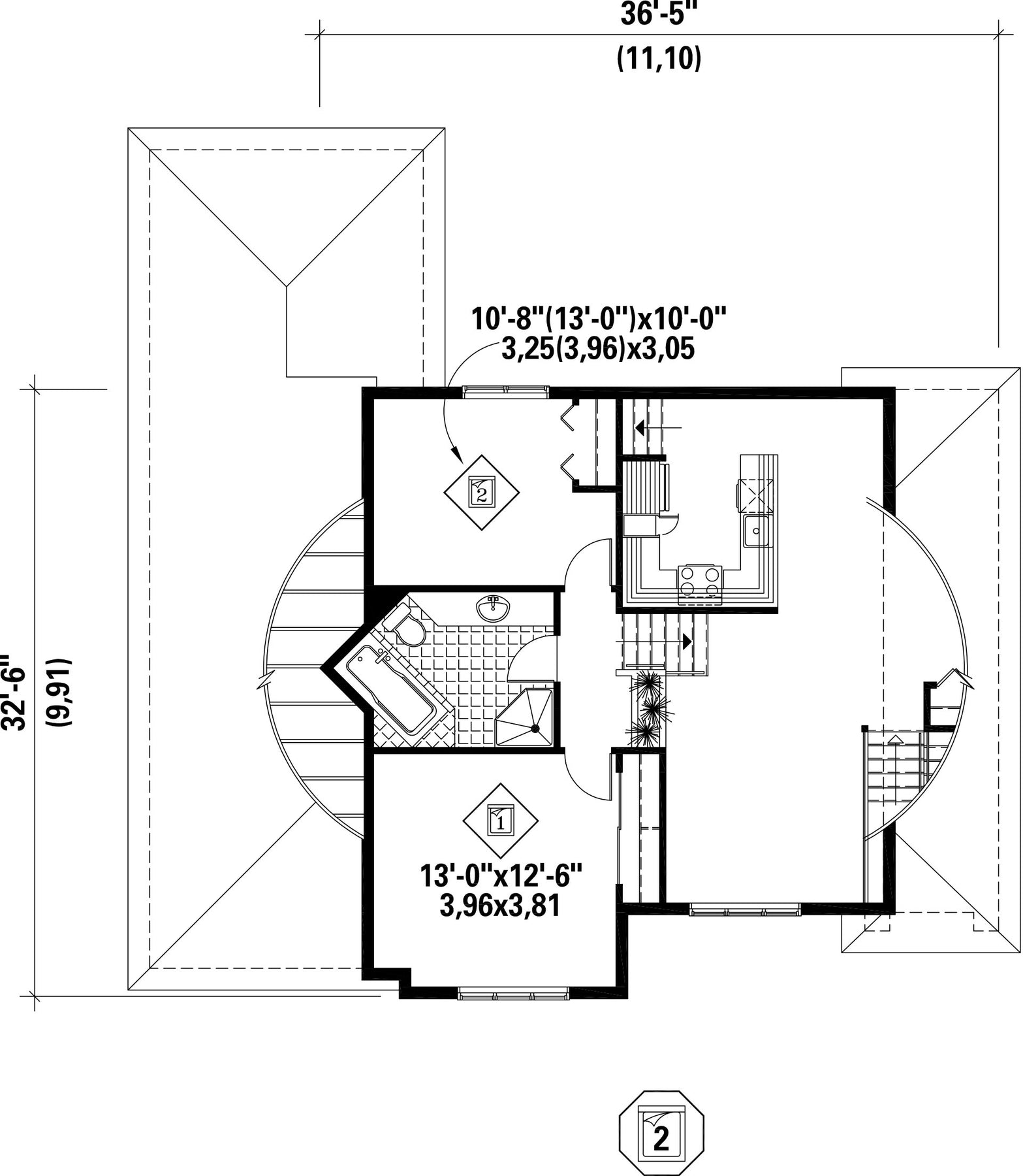
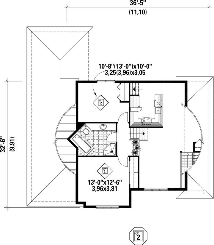
Façade 45 pi 6 po Surface habitable totale 1817 pi²
Profondeur 45 pi 4 poNombre de salles de bain 3
Hauteur 26 pi 10 poNombre de chambres 4
Surface rez-de-chaussée 1332 pi² Finition extérieure Aluminium
Surface étage 485 pi² Type de cuisine Forme en U + Salle à manger
Surface garage 225 pi² Garage 1
Mur garage 8 piMur rez-de-chaussée 8 pi
Mur étage 8 piInclinaison toit avant/arrière 7/12
Inclinaison toit gauche/droite 7/12
Style d'architecture Classique
Coût de construction 
Montant approximatif équivalent à celui d'un entrepreneur général (région de la Rive-Sud de Montréal) pour une construction clé en main sans terrain ni infrastructures.
404617 $
Façade 45 pi 6 po
Surface habitable totale 1817 pi²
Profondeur 45 pi 4 po
Nombre de salles de bain 3
Hauteur 26 pi 10 po
Nombre de chambres 4
Surface rez-de-chaussée 1332 pi²
Finition extérieure Aluminium
Surface étage 485 pi²
Type de cuisine Forme en U + Salle à manger
Surface garage 225 pi²
Garage 1
Mur garage 8 pi
Mur rez-de-chaussée 8 pi
Mur étage 8 pi
Inclinaison toit avant/arrière 7/12
Inclinaison toit gauche/droite 7/12

Ces plans de maison pourraient également vous intéresser


Vu récemment