Description
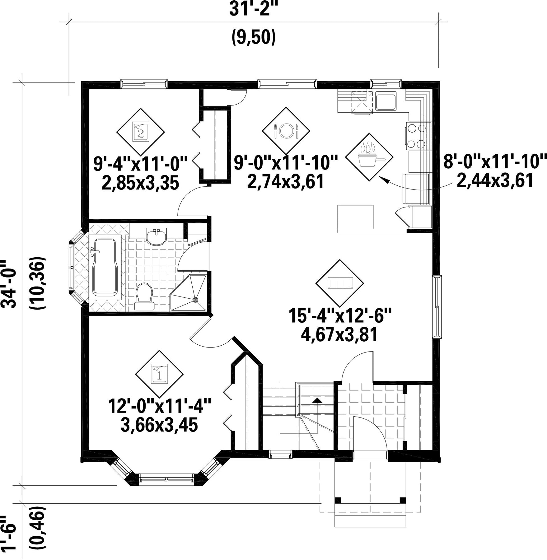
Cette coquette maison de plain-pied en briques et en aluminium horizontal mesure 31 pieds 2 pouces de largeur sur 34 pieds de profondeur et offre une surface habitable de 983 pieds carrés.
La demeure comprend un vestibule fermé, un grand salon, une cuisine fonctionnelle, une salle à manger, deux chambres et une salle de bains.
La demeure comprend un vestibule fermé, un grand salon, une cuisine fonctionnelle, une salle à manger, deux chambres et une salle de bains.
Caractéristiques
Mesures : Impérial| Style d'architecture | Champêtre |
Coût de construction
Montant approximatif équivalent à celui d'un entrepreneur général (région de la Rive-Sud de Montréal) pour une construction clé en main sans terrain ni infrastructures.
|
238322 $ |
|---|---|---|---|
| Façade | 31 pi 2 po | Surface habitable totale | 983 pi² |
| Profondeur | 34 pi | Nombre de salles de bain | 1 |
| Hauteur | 21 pi | Nombre de chambres | 2 |
| Surface rez-de-chaussée | 983 pi² | Finition extérieure | Aluminium + Brique |
| Garage | 0 | ||
| Mur rez-de-chaussée | 8 pi | ||
| Inclinaison toit avant/arrière | 6/12 | ||
| Inclinaison toit gauche/droite | 12/12 |
| Style d'architecture | Champêtre |
|---|---|
|
Coût de construction
Montant approximatif équivalent à celui d'un entrepreneur général (région de la Rive-Sud de Montréal) pour une construction clé en main sans terrain ni infrastructures.
|
238322 $ |
| Façade | 31 pi 2 po |
| Surface habitable totale | 983 pi² |
| Profondeur | 34 pi |
| Nombre de salles de bain | 1 |
| Hauteur | 21 pi |
| Nombre de chambres | 2 |
| Surface rez-de-chaussée | 983 pi² |
| Finition extérieure | Aluminium + Brique |
| Garage | 0 |
| Mur rez-de-chaussée | 8 pi |
| Inclinaison toit avant/arrière | 6/12 |
| Inclinaison toit gauche/droite | 12/12 |