Description
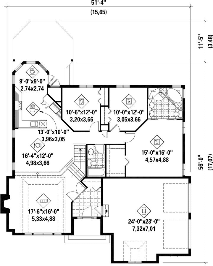
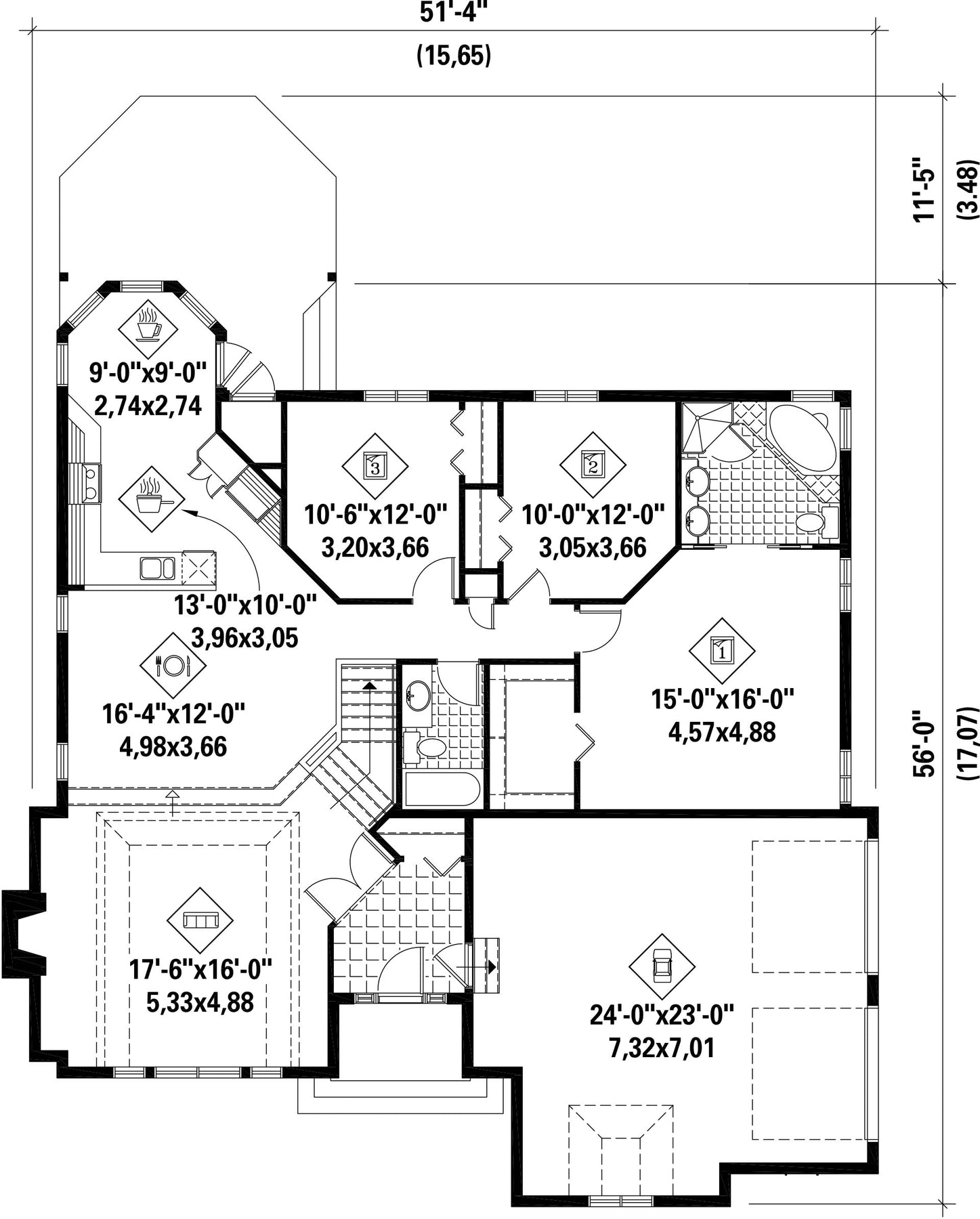
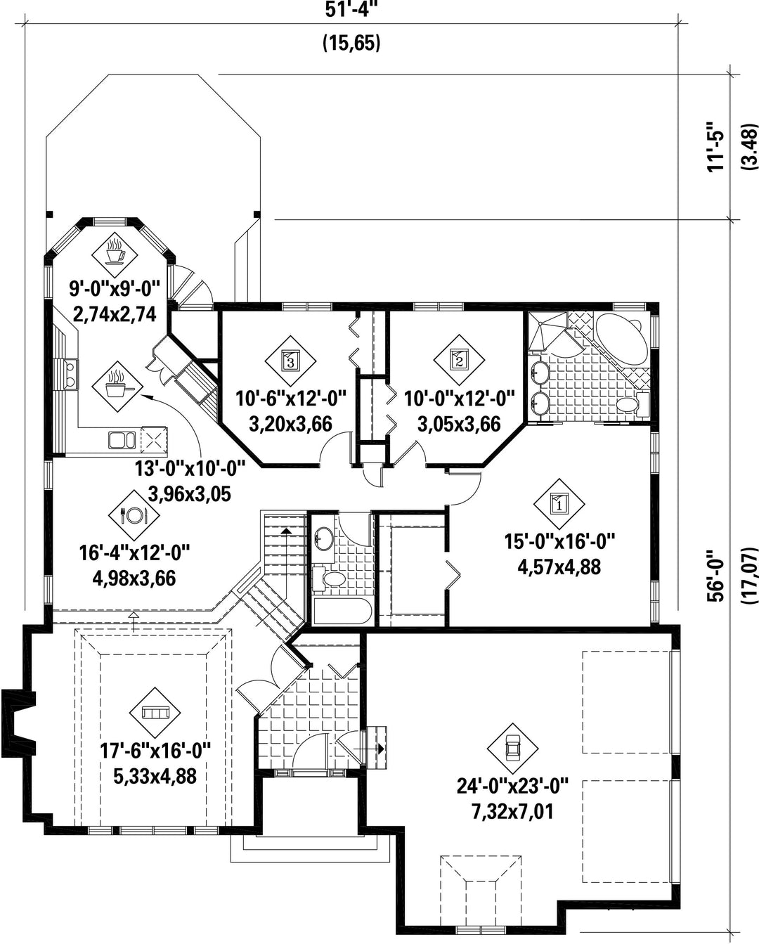
Cette élégante maison de plain-pied aux immenses fenêtres en arc à l’avant comprend un garage double de 542 pieds carrés situé sur le côté. La demeure mesure 51 pieds 4 pouces de largeur sur 56 pieds de profondeur et offre une surface habitable de 1 681 pieds carrés.
L'intérieur comprend un salon avec foyer, une cuisine à aire ouverte avec coin-repas, une salle à manger, une salle de bains familiale, une grande chambre principale avec penderie et salle de bain privée, ainsi que deux chambres secondaires.
L'intérieur comprend un salon avec foyer, une cuisine à aire ouverte avec coin-repas, une salle à manger, une salle de bains familiale, une grande chambre principale avec penderie et salle de bain privée, ainsi que deux chambres secondaires.
Caractéristiques
Mesures : Impérial| Style d'architecture | Champêtre |
Coût de construction
Montant approximatif équivalent à celui d'un entrepreneur général (région de la Rive-Sud de Montréal) pour une construction clé en main sans terrain ni infrastructures.
|
476348 $ |
|---|---|---|---|
| Façade | 51 pi 4 po | Surface habitable totale | 1681 pi² |
| Profondeur | 56 pi | Nombre de salles de bain | 2 |
| Hauteur | 26 pi 5 po | Nombre de chambres | 3 |
| Chambre des maîtres | Bain podium + Douche + Lavabo double + Penderie + Toilettes | Chambre des maîtres - commentaires | Chambre des maîtres de bonnes dimensions avec salle de bain privée |
| Surface rez-de-chaussée | 1681 pi² | Finition extérieure | Aluminium |
| Type de cuisine | Coin repas | ||
| Surface garage | 542 pi² | Garage | 2 |
| Mur garage | 8 pi | Mur rez-de-chaussée | 9 + 10 pi |
| Inclinaison toit avant/arrière | 12/12 | ||
| Inclinaison toit gauche/droite | 12/12 |
| Style d'architecture | Champêtre |
|---|---|
|
Coût de construction
Montant approximatif équivalent à celui d'un entrepreneur général (région de la Rive-Sud de Montréal) pour une construction clé en main sans terrain ni infrastructures.
|
476348 $ |
| Façade | 51 pi 4 po |
| Surface habitable totale | 1681 pi² |
| Profondeur | 56 pi |
| Nombre de salles de bain | 2 |
| Hauteur | 26 pi 5 po |
| Nombre de chambres | 3 |
| Chambre des maîtres | Bain podium + Douche + Lavabo double + Penderie + Toilettes |
| Chambre des maîtres - commentaires | Chambre des maîtres de bonnes dimensions avec salle de bain privée |
| Surface rez-de-chaussée | 1681 pi² |
| Finition extérieure | Aluminium |
| Type de cuisine | Coin repas |
| Surface garage | 542 pi² |
| Garage | 2 |
| Mur garage | 8 pi |
| Mur rez-de-chaussée | 9 + 10 pi |
| Inclinaison toit avant/arrière | 12/12 |
| Inclinaison toit gauche/droite | 12/12 |