Description
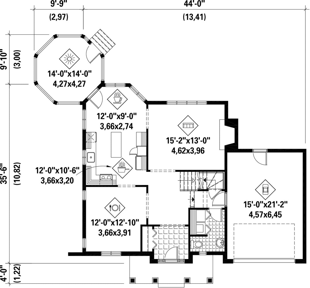
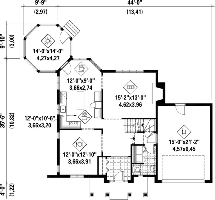
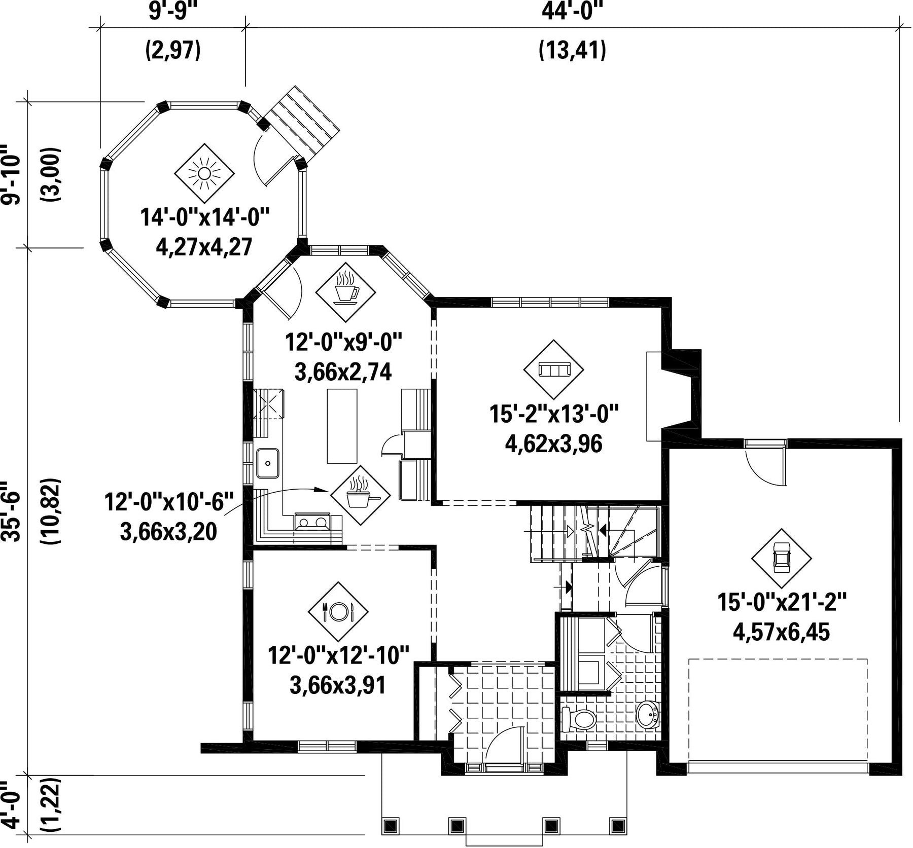
L’apparence de cette coquette maison est rehaussée par le gazebo à l’arrière, le fini extérieur composé de briques et d’un revêtement d’aluminium posé à l’horizontale, et les volets décoratifs. Ce modèle à étage, qui mesure 44 pieds de largeur sur 35 pieds 6 pouces de profondeur, offre une surface habitable de 1 820 pieds carrés.
Avec 912 pieds carrés de surface habitable, le rez-de-chaussée comporte un grand hall d'entrée, une salle à manger, une cuisine avec une fenestration abondante et un coin-repas, un salon avec foyer, une salle d’eau et un garage simple de 351 pieds carrés.
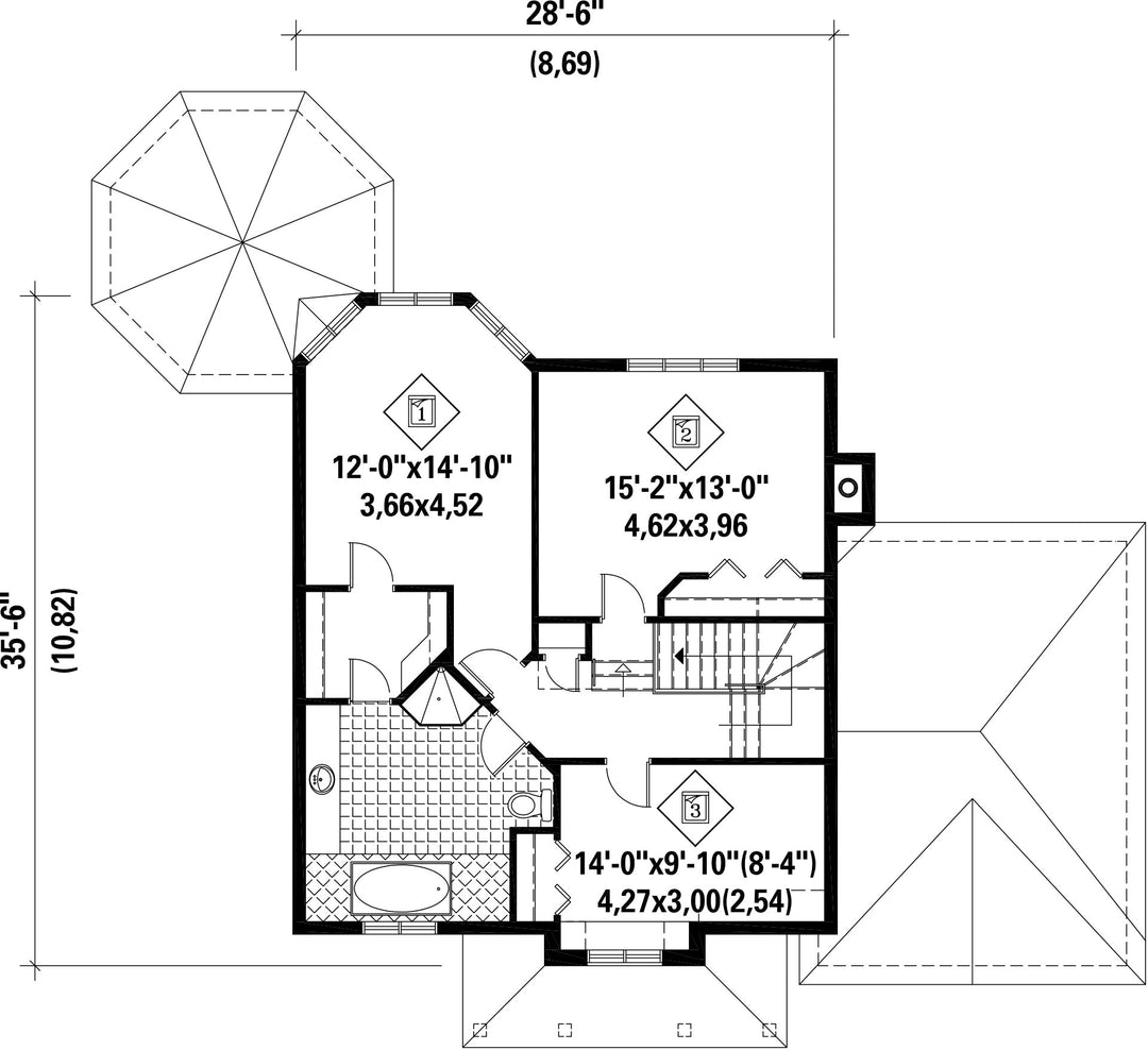
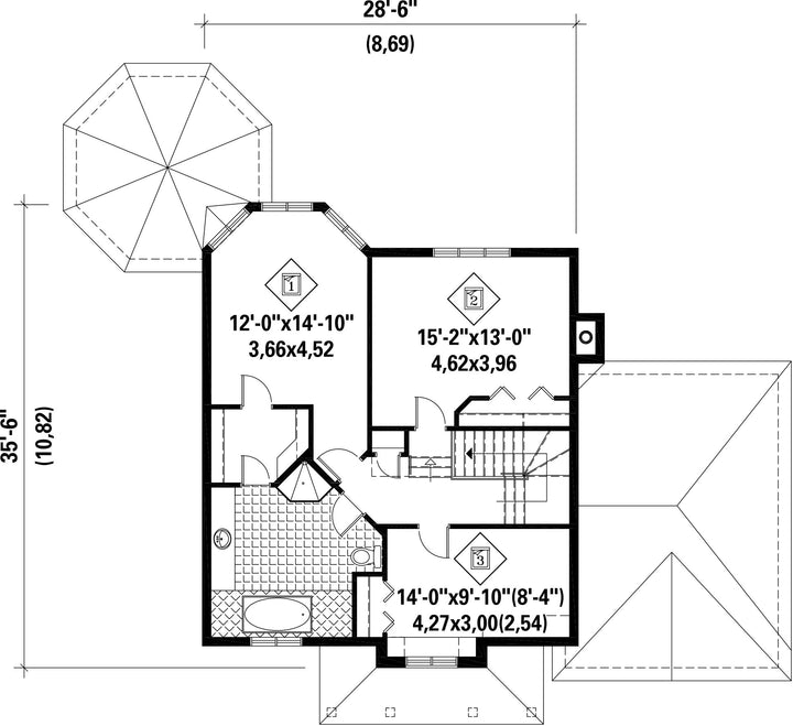
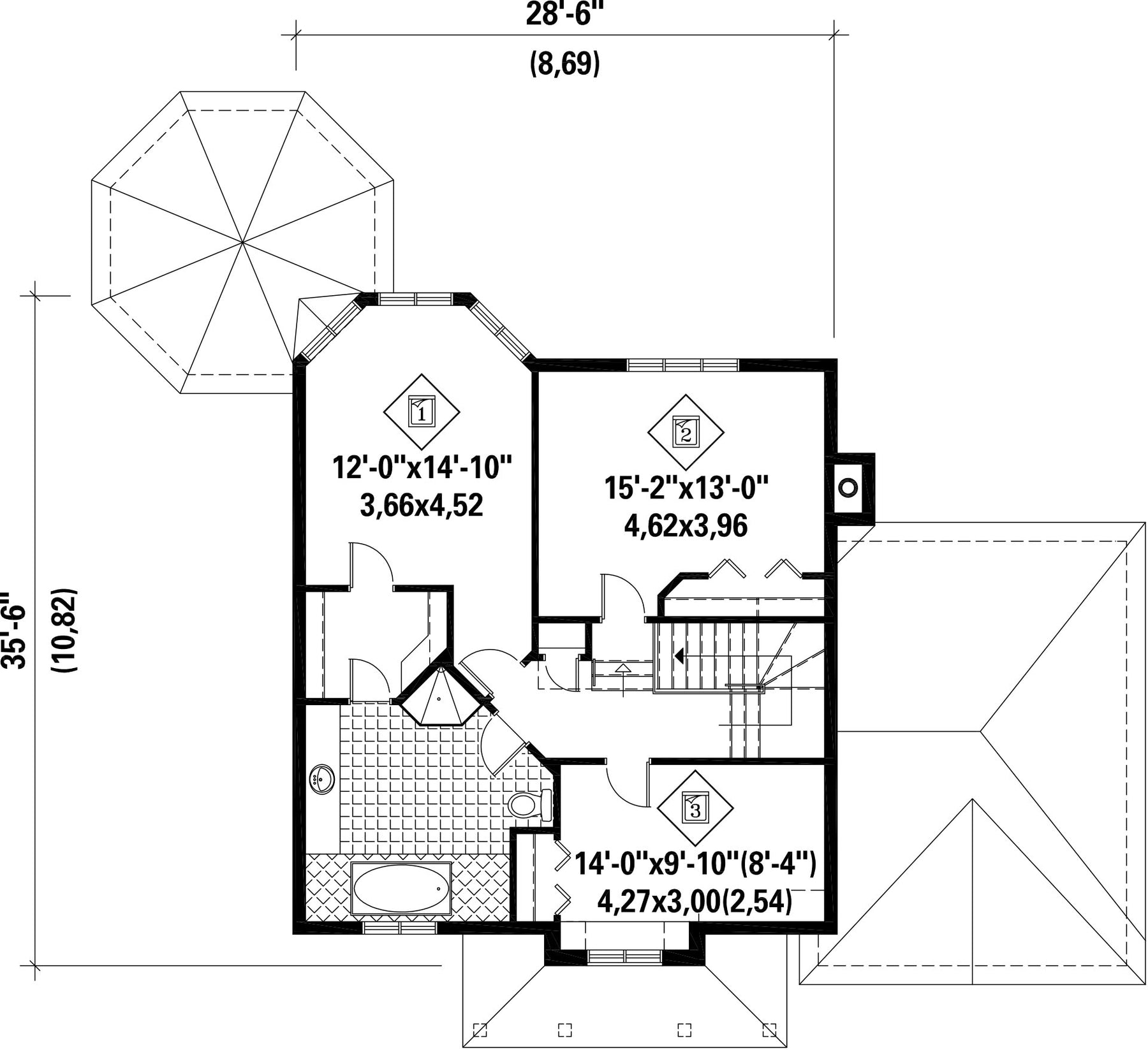
L’étage, d’une surface habitable de 908 pieds carrés, compte une chambre principale très éclairée avec une penderie, deux chambres secondaires et une immense salle de bains.
Avec 912 pieds carrés de surface habitable, le rez-de-chaussée comporte un grand hall d'entrée, une salle à manger, une cuisine avec une fenestration abondante et un coin-repas, un salon avec foyer, une salle d’eau et un garage simple de 351 pieds carrés.
L’étage, d’une surface habitable de 908 pieds carrés, compte une chambre principale très éclairée avec une penderie, deux chambres secondaires et une immense salle de bains.
Caractéristiques
Mesures : Impérial| Style d'architecture | Champêtre |
Coût de construction
Montant approximatif équivalent à celui d'un entrepreneur général (région de la Rive-Sud de Montréal) pour une construction clé en main sans terrain ni infrastructures.
|
394583 $ |
|---|---|---|---|
| Façade | 44 pi | Surface habitable totale | 1820 pi² |
| Profondeur | 35 pi 6 po | Nombre de salles de bain | 1 |
| Hauteur | 36 pi 7 po | Nombre de chambres | 3 |
| Chambre des maîtres | Bain podium + Douche + Lavabo simple + Penderie + Toilettes | Chambre des maîtres - commentaires | Beaucoup de fenestration dans la chambre des maîtres |
| Surface rez-de-chaussée | 912 pi² | Finition extérieure | Aluminium + Bardeau de cèdre + Brique |
| Surface étage | 908 pi² | Type de cuisine | Coin repas + Salle à manger + Îlot |
| Surface garage | 351 pi² | Garage | 1 |
| Mur garage | 8 pi | Mur rez-de-chaussée | 8 pi |
| Mur étage | 8 pi | Inclinaison toit avant/arrière | 11/12 |
| Inclinaison toit gauche/droite | 14/12 |
| Style d'architecture | Champêtre |
|---|---|
|
Coût de construction
Montant approximatif équivalent à celui d'un entrepreneur général (région de la Rive-Sud de Montréal) pour une construction clé en main sans terrain ni infrastructures.
|
394583 $ |
| Façade | 44 pi |
| Surface habitable totale | 1820 pi² |
| Profondeur | 35 pi 6 po |
| Nombre de salles de bain | 1 |
| Hauteur | 36 pi 7 po |
| Nombre de chambres | 3 |
| Chambre des maîtres | Bain podium + Douche + Lavabo simple + Penderie + Toilettes |
| Chambre des maîtres - commentaires | Beaucoup de fenestration dans la chambre des maîtres |
| Surface rez-de-chaussée | 912 pi² |
| Finition extérieure | Aluminium + Bardeau de cèdre + Brique |
| Surface étage | 908 pi² |
| Type de cuisine | Coin repas + Salle à manger + Îlot |
| Surface garage | 351 pi² |
| Garage | 1 |
| Mur garage | 8 pi |
| Mur rez-de-chaussée | 8 pi |
| Mur étage | 8 pi |
| Inclinaison toit avant/arrière | 11/12 |
| Inclinaison toit gauche/droite | 14/12 |