Description
L’apparence de cette ravissante maison à étage est rehaussée par son revêtement de briques et d’aluminium et par ses volets décoratifs à l’avant. La demeure, qui mesure 40 pieds de largeur sur 28 pieds de profondeur, offre une surface habitable de 1 699 pieds carrés.
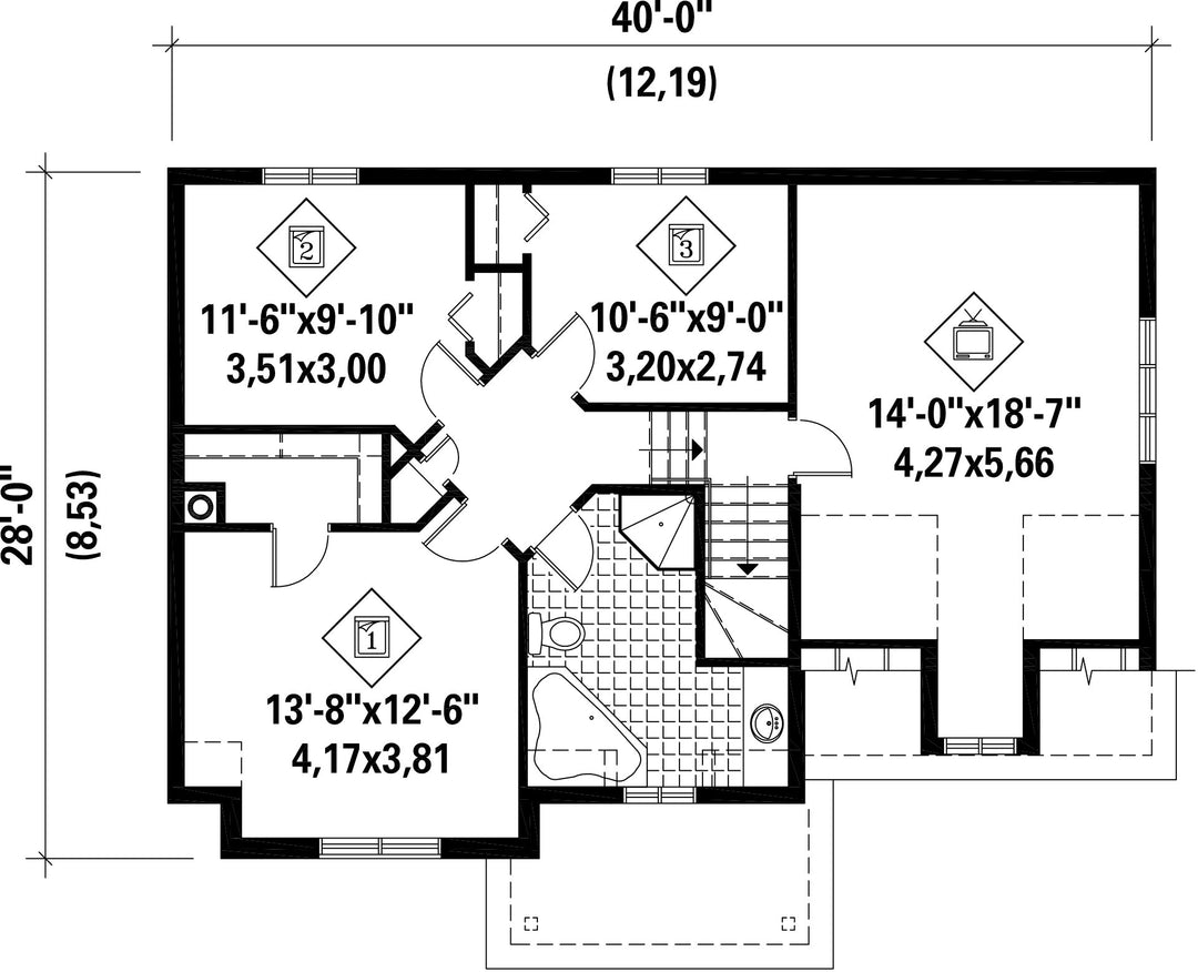
Le rez-de-chaussée, qui fait 713 pieds carrés, comporte un salon avec foyer, une cuisine fonctionnelle avec îlot, une salle à manger, une salle d’eau, et est relié à un garage simple de 325 pieds carrés.
L’étage de 986 pieds carrés comprend trois chambres, dont une grande chambre principale avec penderie, une salle de bains et une salle familiale située au-dessus du garage.
Le rez-de-chaussée, qui fait 713 pieds carrés, comporte un salon avec foyer, une cuisine fonctionnelle avec îlot, une salle à manger, une salle d’eau, et est relié à un garage simple de 325 pieds carrés.
L’étage de 986 pieds carrés comprend trois chambres, dont une grande chambre principale avec penderie, une salle de bains et une salle familiale située au-dessus du garage.
Caractéristiques
Mesures : Impérial| Style d'architecture | Champêtre |
Coût de construction
Montant approximatif équivalent à celui d'un entrepreneur général (région de la Rive-Sud de Montréal) pour une construction clé en main sans terrain ni infrastructures.
|
350010 $ |
|---|---|---|---|
| Façade | 40 pi | Surface habitable totale | 1699 pi² |
| Profondeur | 28 pi | Nombre de salles de bain | 1 |
| Hauteur | 35 pi 2 po | Nombre de chambres | 3 |
| Chambre des maîtres | Penderie | Chambre des maîtres - commentaires | Chambre des maîtres de bonnes dimensions avec penderie |
| Surface rez-de-chaussée | 713 pi² | Finition extérieure | Aluminium + Brique |
| Surface étage | 986 pi² | Type de cuisine | Îlot |
| Surface garage | 325 pi² | Garage | 1 |
| Mur garage | 8 pi | Mur rez-de-chaussée | 8 pi |
| Mur étage | 8 pi | Inclinaison toit avant/arrière | 10/12 |
| Style d'architecture | Champêtre |
|---|---|
|
Coût de construction
Montant approximatif équivalent à celui d'un entrepreneur général (région de la Rive-Sud de Montréal) pour une construction clé en main sans terrain ni infrastructures.
|
350010 $ |
| Façade | 40 pi |
| Surface habitable totale | 1699 pi² |
| Profondeur | 28 pi |
| Nombre de salles de bain | 1 |
| Hauteur | 35 pi 2 po |
| Nombre de chambres | 3 |
| Chambre des maîtres | Penderie |
| Chambre des maîtres - commentaires | Chambre des maîtres de bonnes dimensions avec penderie |
| Surface rez-de-chaussée | 713 pi² |
| Finition extérieure | Aluminium + Brique |
| Surface étage | 986 pi² |
| Type de cuisine | Îlot |
| Surface garage | 325 pi² |
| Garage | 1 |
| Mur garage | 8 pi |
| Mur rez-de-chaussée | 8 pi |
| Mur étage | 8 pi |
| Inclinaison toit avant/arrière | 10/12 |