Description
Cette belle maison à étage est revêtue de pierres et d’aluminium et comprend une grande véranda en coin. Elle mesure 30 pieds de largeur sur 30 pieds de profondeur et offre une surface habitable de 1 604 pieds carrés.
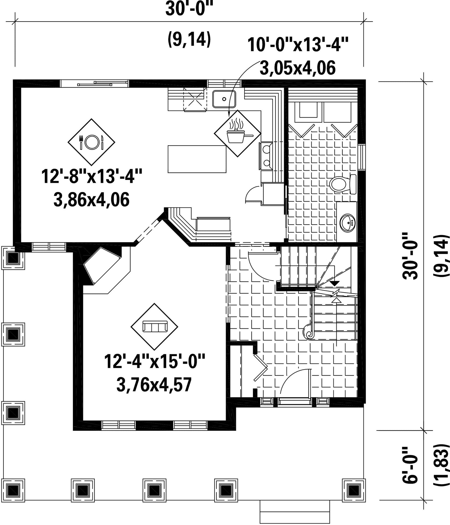
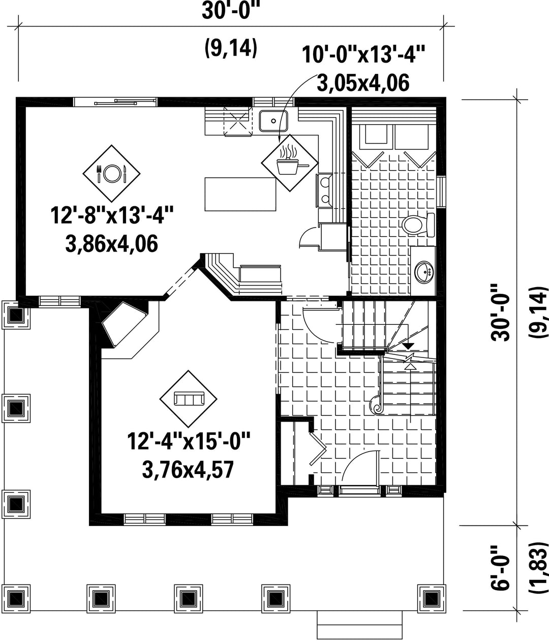
Le rez-de-chaussée, qui fait 802 pieds carrés, comporte un très grand vestibule, un salon avec foyer, une cuisine avec de grandes surfaces de travail, une salle à manger et une salle d’eau.
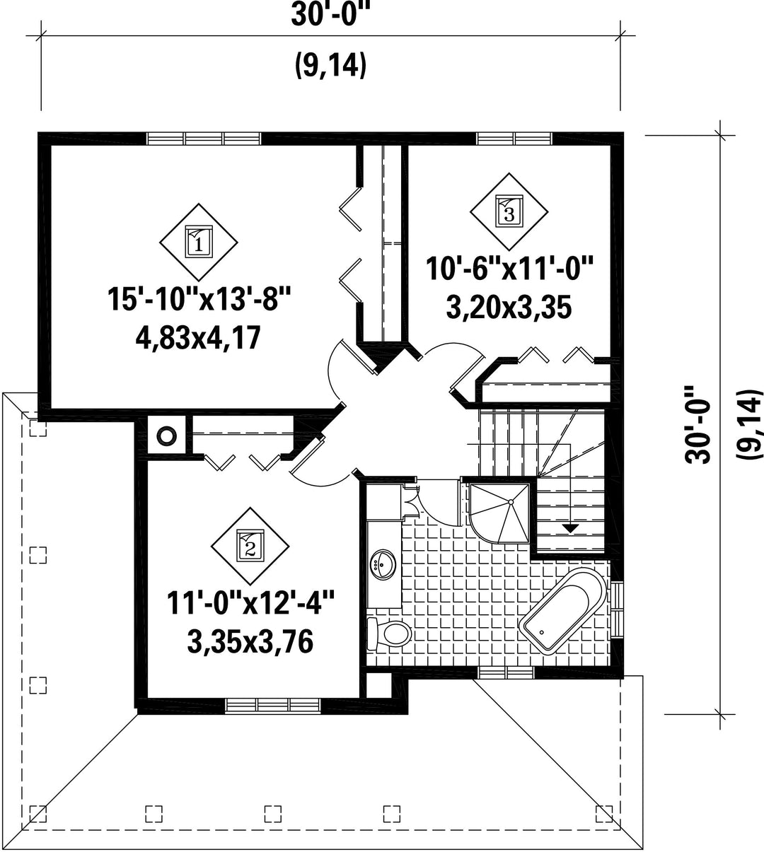
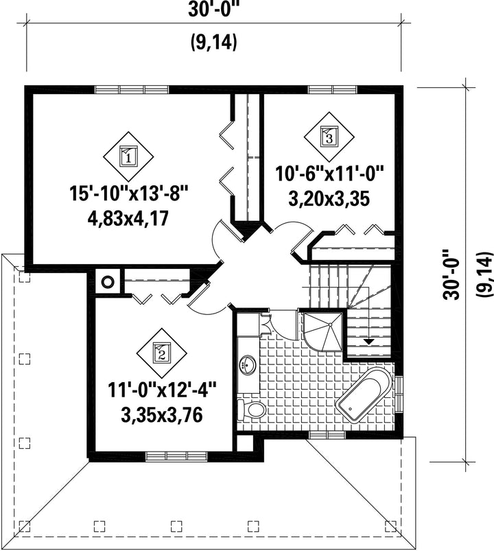
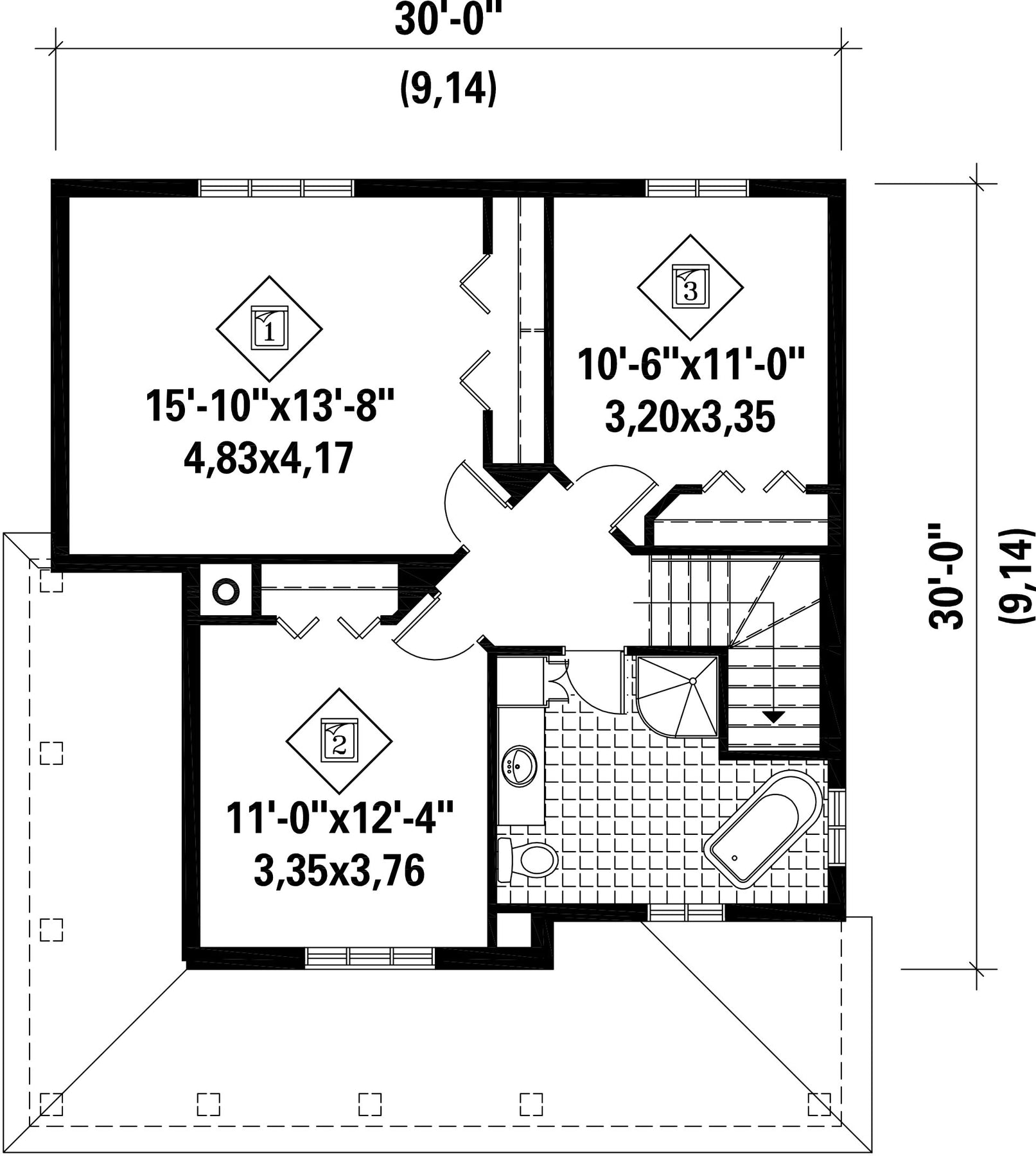
L’étage de 802 pieds carrés comprend une grande chambre principale, deux chambres secondaires, ainsi qu’une salle de bains.
Le rez-de-chaussée, qui fait 802 pieds carrés, comporte un très grand vestibule, un salon avec foyer, une cuisine avec de grandes surfaces de travail, une salle à manger et une salle d’eau.
L’étage de 802 pieds carrés comprend une grande chambre principale, deux chambres secondaires, ainsi qu’une salle de bains.
Caractéristiques
Mesures : Impérial| Style d'architecture | Champêtre |
Coût de construction
Montant approximatif équivalent à celui d'un entrepreneur général (région de la Rive-Sud de Montréal) pour une construction clé en main sans terrain ni infrastructures.
|
341702 $ |
|---|---|---|---|
| Façade | 30 pi | Surface habitable totale | 1604 pi² |
| Profondeur | 30 pi | Nombre de salles de bain | 1 |
| Hauteur | 35 pi 8 po | Nombre de chambres | 3 |
| Chambre des maîtres - commentaires | Grande chambre des maîtres | ||
| Surface rez-de-chaussée | 802 pi² | Finition extérieure | Aluminium + Pierre |
| Surface étage | 802 pi² | Type de cuisine | Îlot |
| Garage | 0 | ||
| Mur rez-de-chaussée | 8 pi | ||
| Mur étage | 8 pi | Inclinaison toit avant/arrière | 10/12 |
| Inclinaison toit gauche/droite | 16/12 |
| Style d'architecture | Champêtre |
|---|---|
|
Coût de construction
Montant approximatif équivalent à celui d'un entrepreneur général (région de la Rive-Sud de Montréal) pour une construction clé en main sans terrain ni infrastructures.
|
341702 $ |
| Façade | 30 pi |
| Surface habitable totale | 1604 pi² |
| Profondeur | 30 pi |
| Nombre de salles de bain | 1 |
| Hauteur | 35 pi 8 po |
| Nombre de chambres | 3 |
| Chambre des maîtres - commentaires | Grande chambre des maîtres |
| Surface rez-de-chaussée | 802 pi² |
| Finition extérieure | Aluminium + Pierre |
| Surface étage | 802 pi² |
| Type de cuisine | Îlot |
| Garage | 0 |
| Mur rez-de-chaussée | 8 pi |
| Mur étage | 8 pi |
| Inclinaison toit avant/arrière | 10/12 |
| Inclinaison toit gauche/droite | 16/12 |