Description
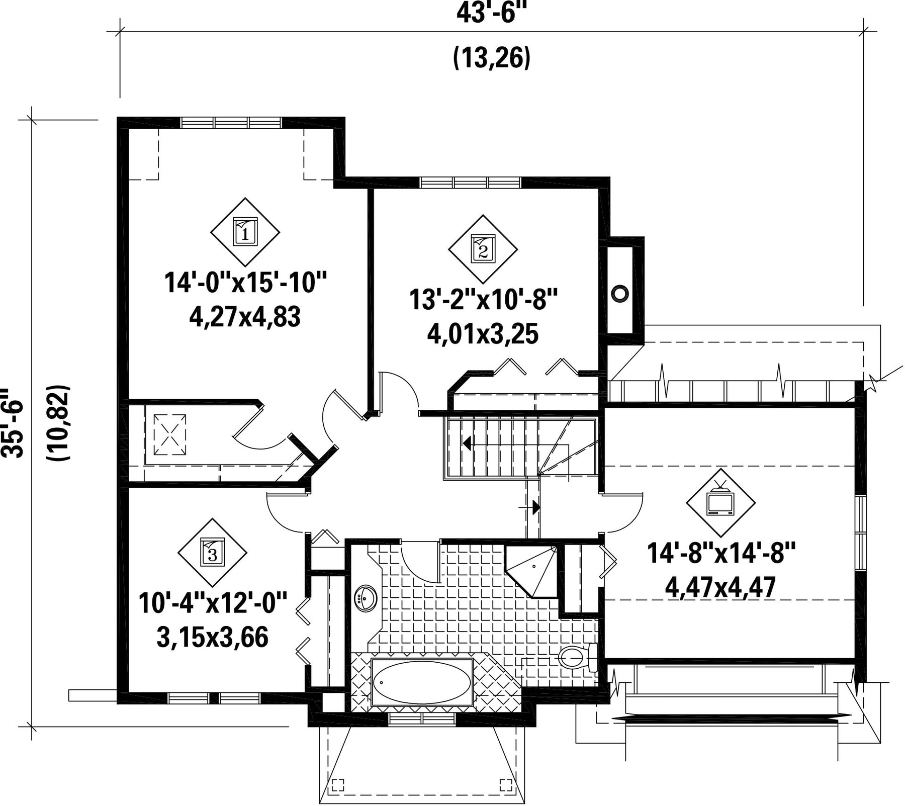
Avec son revêtement de pierres et d’aluminium horizontal, cette magnifique demeure se distingue des autres. La maison à étage mesure 43 pieds 6 pouces de largeur sur 35 pieds 6 pouces de profondeur et offre une surface habitable de 2 092 pieds carrés.
Le rez-de-chaussée de 927 pieds carrés compte une cuisine avec de grandes surfaces de travail et un coin-repas, une salle à manger, un salon avec foyer, une salle d’eau et un garage simple de 339 pieds carrés.
À l’étage, dont la surface habitable est de 1 165 pieds carrés, on retrouve une grande chambre principale avec penderie, une salle de bains, deux chambres secondaires ainsi qu’une salle familiale située au-dessus du garage.
Le rez-de-chaussée de 927 pieds carrés compte une cuisine avec de grandes surfaces de travail et un coin-repas, une salle à manger, un salon avec foyer, une salle d’eau et un garage simple de 339 pieds carrés.
À l’étage, dont la surface habitable est de 1 165 pieds carrés, on retrouve une grande chambre principale avec penderie, une salle de bains, deux chambres secondaires ainsi qu’une salle familiale située au-dessus du garage.
Caractéristiques
Mesures : Impérial| Style d'architecture | Champêtre |
Coût de construction
Montant approximatif équivalent à celui d'un entrepreneur général (région de la Rive-Sud de Montréal) pour une construction clé en main sans terrain ni infrastructures.
|
430387 $ |
|---|---|---|---|
| Façade | 43 pi 6 po | Surface habitable totale | 2092 pi² |
| Profondeur | 35 pi 6 po | Nombre de salles de bain | 1 |
| Hauteur | 38 pi 2 po | Nombre de chambres | 3 |
| Chambre des maîtres | Penderie | Chambre des maîtres - commentaires | Grande chambre des maîtres avec penderie |
| Surface rez-de-chaussée | 927 pi² | Finition extérieure | Aluminium + Pierre |
| Surface étage | 1165 pi² | Type de cuisine | Coin repas + Salle à manger + Îlot |
| Surface garage | 339 pi² | Garage | 1 |
| Mur garage | 8 pi | Mur rez-de-chaussée | 8 pi |
| Mur étage | 8 pi | Inclinaison toit avant/arrière | 11/12 |
| Style d'architecture | Champêtre |
|---|---|
|
Coût de construction
Montant approximatif équivalent à celui d'un entrepreneur général (région de la Rive-Sud de Montréal) pour une construction clé en main sans terrain ni infrastructures.
|
430387 $ |
| Façade | 43 pi 6 po |
| Surface habitable totale | 2092 pi² |
| Profondeur | 35 pi 6 po |
| Nombre de salles de bain | 1 |
| Hauteur | 38 pi 2 po |
| Nombre de chambres | 3 |
| Chambre des maîtres | Penderie |
| Chambre des maîtres - commentaires | Grande chambre des maîtres avec penderie |
| Surface rez-de-chaussée | 927 pi² |
| Finition extérieure | Aluminium + Pierre |
| Surface étage | 1165 pi² |
| Type de cuisine | Coin repas + Salle à manger + Îlot |
| Surface garage | 339 pi² |
| Garage | 1 |
| Mur garage | 8 pi |
| Mur rez-de-chaussée | 8 pi |
| Mur étage | 8 pi |
| Inclinaison toit avant/arrière | 11/12 |