Description
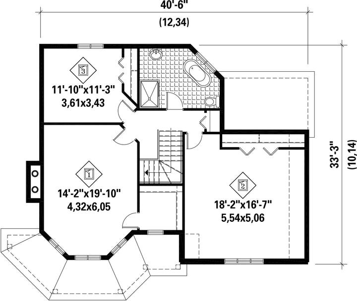
Cette magnifique maison à étage de style victorien est rehaussée par ses détails architecturaux, son revêtement de brique rouge et d’aluminium, et son gazebo à l’arrière. Elle mesure 40 pieds 6 pouces de largeur sur 33 pieds 3 pouces de profondeur, et offre une surface habitable de 1 918 pieds carrés.
D'une surface habitable de 811 pieds carrés, le rez-de-chaussée comporte un salon avec foyer, une vaste cuisine avec îlot, une salle à manger, une salle d’eau, ainsi qu’un garage avec espace de rangement de 407 pieds carrés pouvant accueillir deux voitures.
L’étage, qui occupe 1107 pieds carrés de surface, compte trois grandes chambres et une salle de bains.
D'une surface habitable de 811 pieds carrés, le rez-de-chaussée comporte un salon avec foyer, une vaste cuisine avec îlot, une salle à manger, une salle d’eau, ainsi qu’un garage avec espace de rangement de 407 pieds carrés pouvant accueillir deux voitures.
L’étage, qui occupe 1107 pieds carrés de surface, compte trois grandes chambres et une salle de bains.
Caractéristiques
Mesures : Impérial| Style d'architecture | Victorien |
Coût de construction
Montant approximatif équivalent à celui d'un entrepreneur général (région de la Rive-Sud de Montréal) pour une construction clé en main sans terrain ni infrastructures.
|
412374 $ |
|---|---|---|---|
| Façade | 40 pi 6 po | Surface habitable totale | 1918 pi² |
| Profondeur | 33 pi 3 po | Nombre de salles de bain | 1 |
| Hauteur | 33 pi 8 po | Nombre de chambres | 3 |
| Chambre des maîtres | Penderie | Chambre des maîtres - commentaires | Très grande chambre des maîtres avec penderie |
| Surface rez-de-chaussée | 811 pi² | Finition extérieure | Aluminium + Brique |
| Surface étage | 1107 pi² | Type de cuisine | Îlot |
| Surface garage | 407 pi² | Garage | 2 |
| Mur garage | 8 pi | Mur rez-de-chaussée | 8 pi |
| Mur étage | 8 pi | Inclinaison toit avant/arrière | 8/12 |
| Inclinaison toit gauche/droite | 14/12 |
| Style d'architecture | Victorien |
|---|---|
|
Coût de construction
Montant approximatif équivalent à celui d'un entrepreneur général (région de la Rive-Sud de Montréal) pour une construction clé en main sans terrain ni infrastructures.
|
412374 $ |
| Façade | 40 pi 6 po |
| Surface habitable totale | 1918 pi² |
| Profondeur | 33 pi 3 po |
| Nombre de salles de bain | 1 |
| Hauteur | 33 pi 8 po |
| Nombre de chambres | 3 |
| Chambre des maîtres | Penderie |
| Chambre des maîtres - commentaires | Très grande chambre des maîtres avec penderie |
| Surface rez-de-chaussée | 811 pi² |
| Finition extérieure | Aluminium + Brique |
| Surface étage | 1107 pi² |
| Type de cuisine | Îlot |
| Surface garage | 407 pi² |
| Garage | 2 |
| Mur garage | 8 pi |
| Mur rez-de-chaussée | 8 pi |
| Mur étage | 8 pi |
| Inclinaison toit avant/arrière | 8/12 |
| Inclinaison toit gauche/droite | 14/12 |