CCL00051
CCL00051
CCL00051
CCL00051

CCL00051


Jeux de plans - Sets of plans
Prix régulier$1,188.00
/

Ce site est protégé par hCaptcha, et la Politique de confidentialité et les Conditions de service de hCaptcha s’appliquent.

Description

"Grande galerie sur le côté Vestibule fermé Aire ouverte"

Caractéristiques

Mesures : Impérial

Style d'architecture Champêtre Coût de construction 
Montant approximatif équivalent à celui d'un entrepreneur général (région de la Rive-Sud de Montréal) pour une construction clé en main sans terrain ni infrastructures.
442694 $
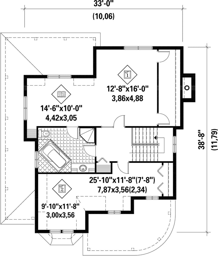
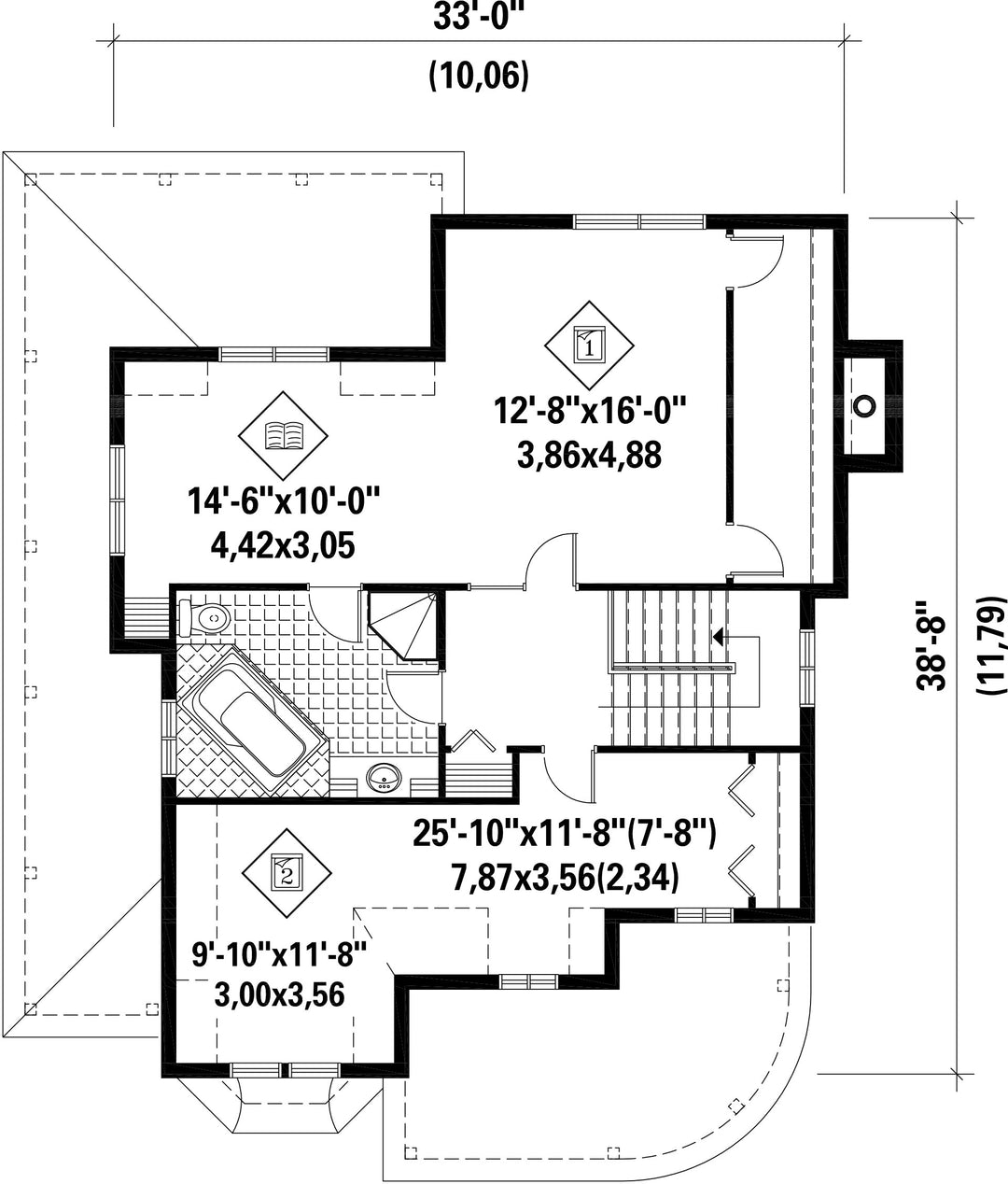
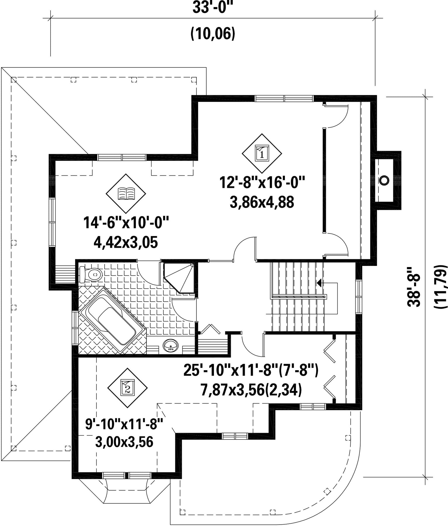
Façade 33 pi Surface habitable totale 2043 pi²
Profondeur 38 pi 8 poNombre de salles de bain 1
Hauteur 34 piNombre de chambres 2
Chambre des maîtres Penderie + Portes doubles Chambre des maîtres - commentaires "Chambre avec salle lecture Accès à la salle de bain"
Surface rez-de-chaussée 1031 pi² Finition extérieure Aluminium + Pierre
Surface étage 1012 pi² Type de cuisine Coin repas + Forme en U
Garage 0
Mur rez-de-chaussée 9 pi
Mur étage 8 piInclinaison toit avant/arrière 12/12
Inclinaison toit gauche/droite 12/12
Style d'architecture Champêtre
Coût de construction 
Montant approximatif équivalent à celui d'un entrepreneur général (région de la Rive-Sud de Montréal) pour une construction clé en main sans terrain ni infrastructures.
442694 $
Façade 33 pi
Surface habitable totale 2043 pi²
Profondeur 38 pi 8 po
Nombre de salles de bain 1
Hauteur 34 pi
Nombre de chambres 2
Chambre des maîtres Penderie + Portes doubles
Chambre des maîtres - commentaires "Chambre avec salle lecture Accès à la salle de bain"
Surface rez-de-chaussée 1031 pi²
Finition extérieure Aluminium + Pierre
Surface étage 1012 pi²
Type de cuisine Coin repas + Forme en U
Garage 0
Mur rez-de-chaussée 9 pi
Mur étage 8 pi
Inclinaison toit avant/arrière 12/12
Inclinaison toit gauche/droite 12/12

Ces plans de maison pourraient également vous intéresser


Vu récemment