Description
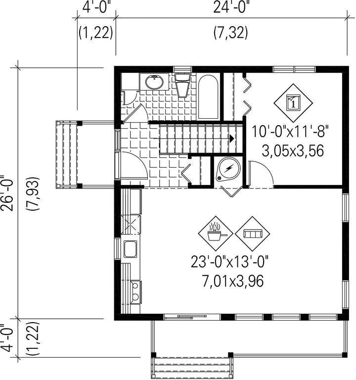
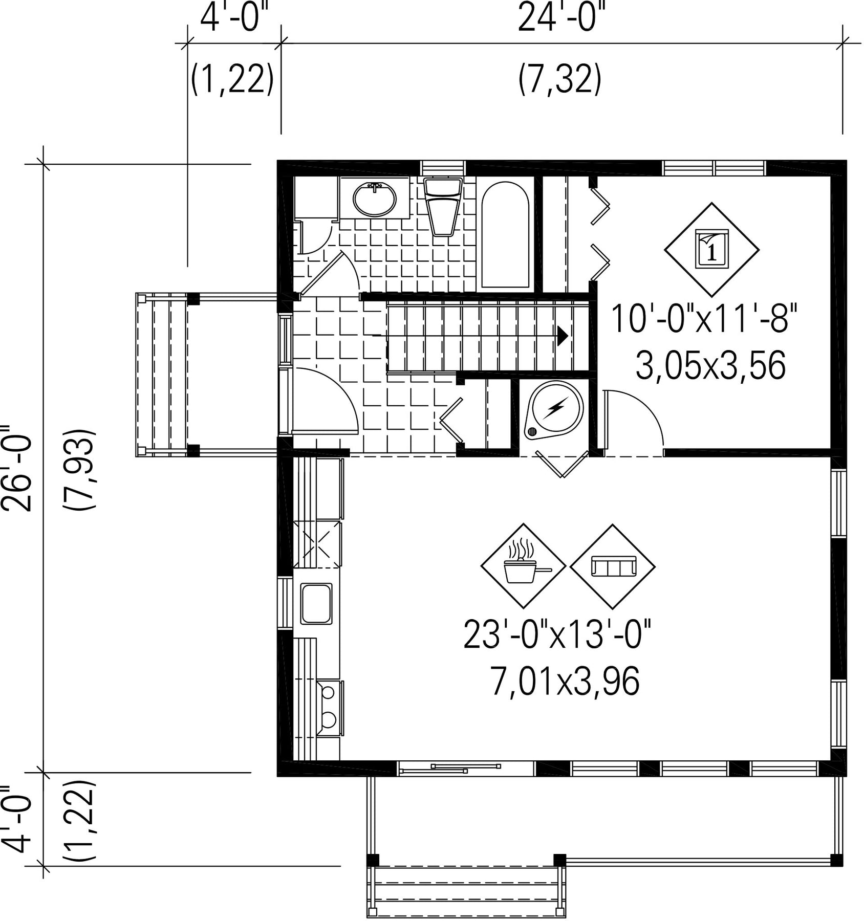
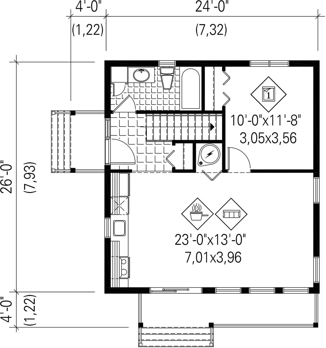
Ce chalet au toit en pente et à la fenestration des plus abondantes mesure 24 pieds de largeur sur 26 pieds de profondeur. Il offre une surface habitable de 624 pieds carrés.
Ce modèle comprend un petit vestibule, une pièce à aire ouverte où se trouvent la cuisine et le salon, ainsi qu'une salle de bains et une chambre.
Ce modèle comprend un petit vestibule, une pièce à aire ouverte où se trouvent la cuisine et le salon, ainsi qu'une salle de bains et une chambre.
Caractéristiques
Mesures : Impérial| Style d'architecture | Urbain |
Coût de construction
Montant approximatif équivalent à celui d'un entrepreneur général (région de la Rive-Sud de Montréal) pour une construction clé en main sans terrain ni infrastructures.
|
161198 $ |
|---|---|---|---|
| Façade | 24 pi | Surface habitable totale | 624 pi² |
| Profondeur | 26 pi | Nombre de salles de bain | 1 |
| Hauteur | 20 pi 9 po | Nombre de chambres | 1 |
| Surface rez-de-chaussée | 624 pi² | Finition extérieure | Aluminium |
| Garage | 0 | ||
| Mur rez-de-chaussée | 8 pi | ||
| Inclinaison toit avant/arrière | 0 | ||
| Inclinaison toit gauche/droite | 4/12 |
| Style d'architecture | Urbain |
|---|---|
|
Coût de construction
Montant approximatif équivalent à celui d'un entrepreneur général (région de la Rive-Sud de Montréal) pour une construction clé en main sans terrain ni infrastructures.
|
161198 $ |
| Façade | 24 pi |
| Surface habitable totale | 624 pi² |
| Profondeur | 26 pi |
| Nombre de salles de bain | 1 |
| Hauteur | 20 pi 9 po |
| Nombre de chambres | 1 |
| Surface rez-de-chaussée | 624 pi² |
| Finition extérieure | Aluminium |
| Garage | 0 |
| Mur rez-de-chaussée | 8 pi |
| Inclinaison toit avant/arrière | 0 |
| Inclinaison toit gauche/droite | 4/12 |