Description
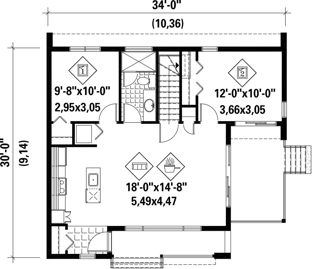
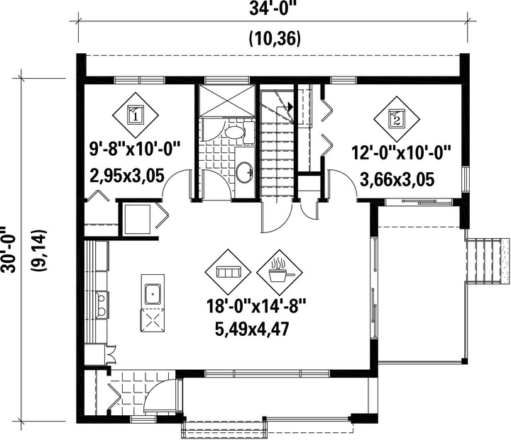
Véritable invitation à la détente, ce chalet de 34 pieds de largeur sur 30 pieds de profondeur, dont la superficie habitable est de 800 pieds carrés, plaira à ceux qui désirent s’évader dans la nature. La demeure au style à la fois contemporain et chaleureux dispose d’un revêtement extérieur horizontal et vertical sur les quatre façades.
Ce chalet à la fenestration abondante comprend un salon et une cuisine à aire ouverte avec un vaste îlot, une salle de bains, ainsi que deux chambres.
Ce chalet à la fenestration abondante comprend un salon et une cuisine à aire ouverte avec un vaste îlot, une salle de bains, ainsi que deux chambres.
Caractéristiques
Mesures : Impérial| Style d'architecture | Urbain |
Coût de construction
Montant approximatif équivalent à celui d'un entrepreneur général (région de la Rive-Sud de Montréal) pour une construction clé en main sans terrain ni infrastructures.
|
200000 $ |
|---|---|---|---|
| Façade | 34 pi | Surface habitable totale | 800 pi² |
| Profondeur | 30 pi | Nombre de salles de bain | 1 |
| Hauteur | 24 pi 2 po | Nombre de chambres | 2 |
| Surface rez-de-chaussée | 800 pi² | ||
| Garage | 0 | ||
| Mur rez-de-chaussée | 8 pi | ||
| Inclinaison toit avant/arrière | 4/12 | ||
| Inclinaison toit gauche/droite | 0 |
| Style d'architecture | Urbain |
|---|---|
|
Coût de construction
Montant approximatif équivalent à celui d'un entrepreneur général (région de la Rive-Sud de Montréal) pour une construction clé en main sans terrain ni infrastructures.
|
200000 $ |
| Façade | 34 pi |
| Surface habitable totale | 800 pi² |
| Profondeur | 30 pi |
| Nombre de salles de bain | 1 |
| Hauteur | 24 pi 2 po |
| Nombre de chambres | 2 |
| Surface rez-de-chaussée | 800 pi² |
| Garage | 0 |
| Mur rez-de-chaussée | 8 pi |
| Inclinaison toit avant/arrière | 4/12 |
| Inclinaison toit gauche/droite | 0 |