Description
Avec ses pignons, son revêtement de bardeaux de cèdre et son immense véranda, cette prestigieuse maison à étage de type « bigénération » se démarquera certainement. Elle mesure 62 pieds de largeur sur 49 pieds de profondeur et offre une surface habitable de 3 455 pieds carrés.
Le rez-de-chaussée est divisé en deux sections distinctes et occupe 2 037 pieds carrés. Une des sections comprend un salon, une salle à manger, une cuisine, une salle de bains ainsi qu’une chambre. L’autre section inclut une salle de lecture, une salle d’eau, une vaste cuisine avec coin-repas, une salle à manger et un salon divisés par un foyer à deux faces.
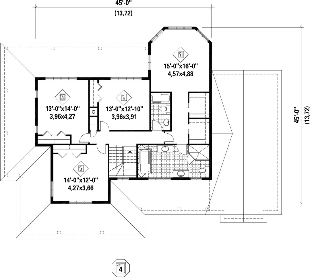
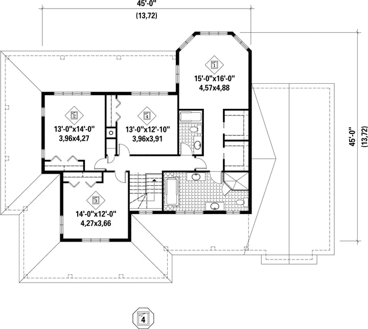
L’étage de 1 418 pieds carrés abrite une salle de bains familiale, quatre chambres, dont une chambre principale avec une abondante fenestration, deux penderies et une immense salle de bains privée.
Le rez-de-chaussée est divisé en deux sections distinctes et occupe 2 037 pieds carrés. Une des sections comprend un salon, une salle à manger, une cuisine, une salle de bains ainsi qu’une chambre. L’autre section inclut une salle de lecture, une salle d’eau, une vaste cuisine avec coin-repas, une salle à manger et un salon divisés par un foyer à deux faces.
L’étage de 1 418 pieds carrés abrite une salle de bains familiale, quatre chambres, dont une chambre principale avec une abondante fenestration, deux penderies et une immense salle de bains privée.
Caractéristiques
Mesures : Impérial| Style d'architecture | Champêtre |
Coût de construction
Montant approximatif équivalent à celui d'un entrepreneur général (région de la Rive-Sud de Montréal) pour une construction clé en main sans terrain ni infrastructures.
|
726287 $ |
|---|---|---|---|
| Façade | 62 pi | Surface habitable totale | 3455 pi² |
| Profondeur | 49 pi | Nombre de salles de bain | 3 |
| Hauteur | 41 pi 8 po | Nombre de chambres | 5 |
| Chambre des maîtres | Baignoire + Douche + Lavabo double + Penderie + Toilettes | Chambre des maîtres - commentaires | Beaucoup de fenestration dans la chambre des maîtres |
| Surface rez-de-chaussée | 2037 pi² | Finition extérieure | Aluminium + Bardeau de cèdre |
| Surface étage | 1418 pi² | ||
| Garage | 0 | ||
| Mur rez-de-chaussée | 9 pi | ||
| Mur étage | 8 pi | Inclinaison toit avant/arrière | 12/12 |
| Inclinaison toit gauche/droite | 12/12 |
| Style d'architecture | Champêtre |
|---|---|
|
Coût de construction
Montant approximatif équivalent à celui d'un entrepreneur général (région de la Rive-Sud de Montréal) pour une construction clé en main sans terrain ni infrastructures.
|
726287 $ |
| Façade | 62 pi |
| Surface habitable totale | 3455 pi² |
| Profondeur | 49 pi |
| Nombre de salles de bain | 3 |
| Hauteur | 41 pi 8 po |
| Nombre de chambres | 5 |
| Chambre des maîtres | Baignoire + Douche + Lavabo double + Penderie + Toilettes |
| Chambre des maîtres - commentaires | Beaucoup de fenestration dans la chambre des maîtres |
| Surface rez-de-chaussée | 2037 pi² |
| Finition extérieure | Aluminium + Bardeau de cèdre |
| Surface étage | 1418 pi² |
| Garage | 0 |
| Mur rez-de-chaussée | 9 pi |
| Mur étage | 8 pi |
| Inclinaison toit avant/arrière | 12/12 |
| Inclinaison toit gauche/droite | 12/12 |