39203
39203
39203
39203
39203
39203
39203
39203

39203


Jeux de plans - Sets of plans
Prix régulier$2,140.00
/

Ce site est protégé par hCaptcha, et la Politique de confidentialité et les Conditions de service de hCaptcha s’appliquent.

Description

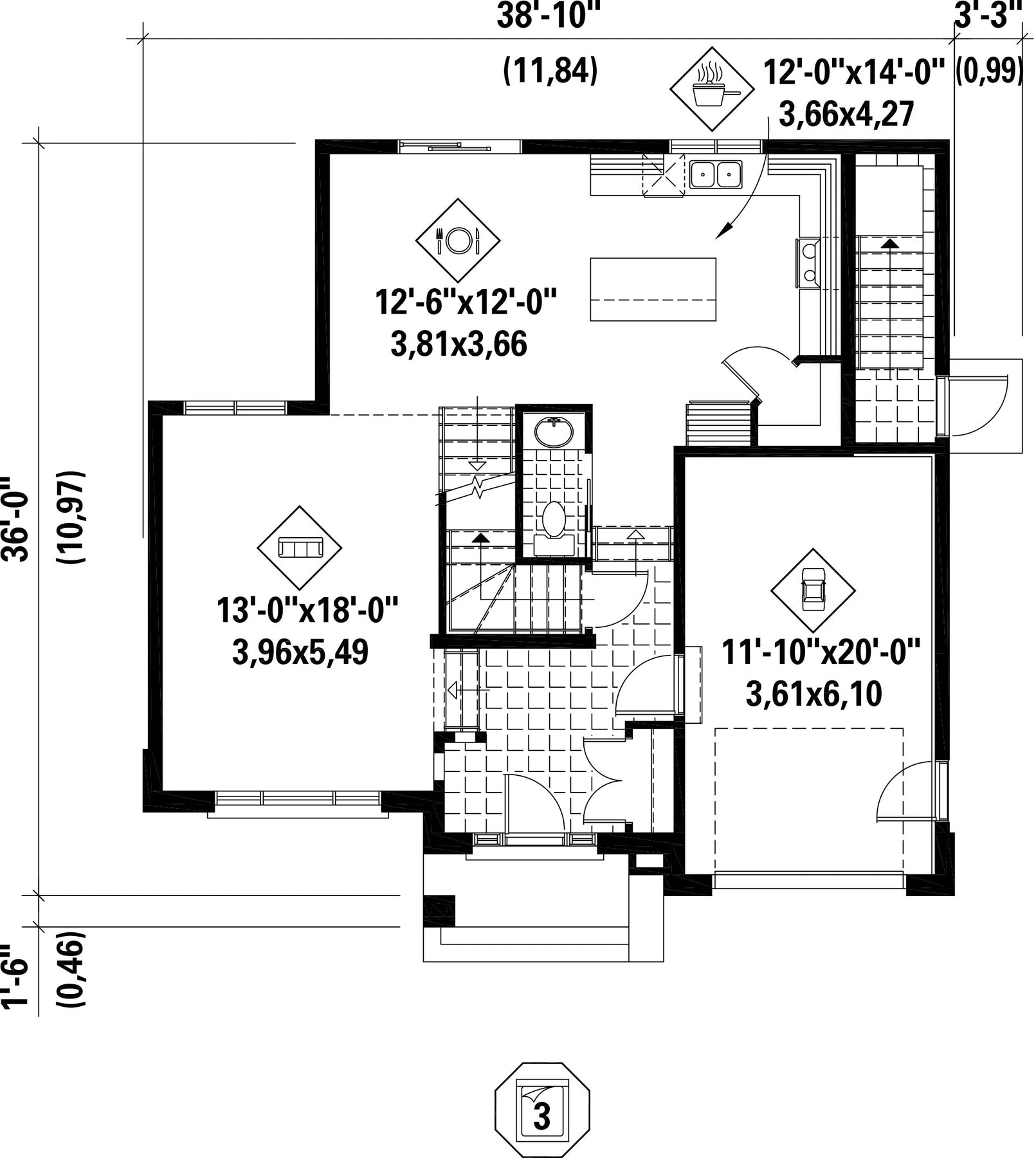
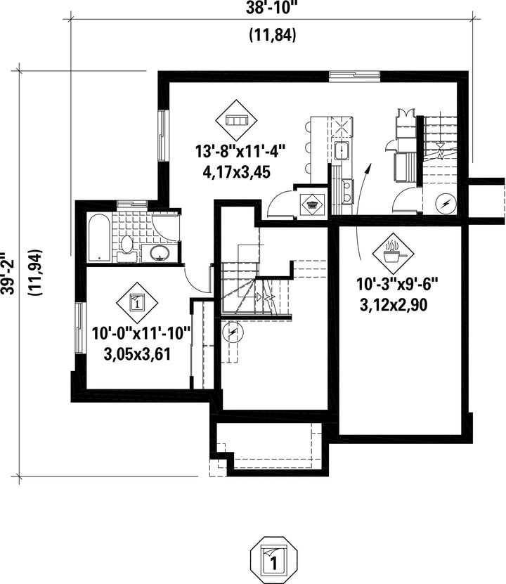
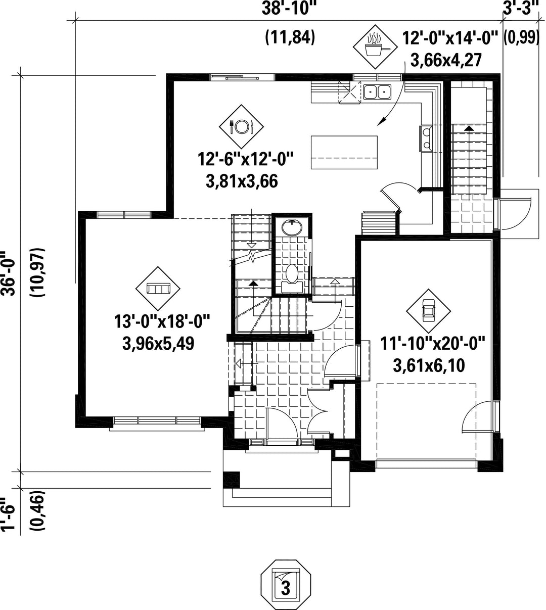
Cette maison à étage de style urbain se distingue par son porche aux lignes épurées, son revêtement extérieur de pierres et de bois, et ses immenses fenêtres. Une entrée privée située sur le côté de la maison permet d’accéder à l’appartement du sous-sol. La demeure mesure 38 pieds 10 pouces de largeur sur 36 pieds de profondeur et offre une surface habitable totale de 2 741 pieds carrés. Un garage intégré de 266 pieds carrés pouvant loger une voiture avec deux portes de sortie, une intérieure et l’autre extérieure, complète le tout. La superficie du rez-de-chaussée est de 930 pieds carrés. On retrouve une entrée en contrebas, une salle d'eau, et un immense salon à la fenestration abondante dont le plafond fait 18 pieds de hauteur. Les autres pièces de l’étage, soit la salle à manger et la cuisine en U avec un îlot et un vaste garde-manger, ont des plafonds de 9 pieds de haut. L'étage de 881 pieds carrés comprend une mezzanine surplombant le salon, un placard dans le couloir pour la laveuse et la sécheuse, une salle de bains avec douche en céramique et une baignoire autoportante, ainsi que trois chambres, dont une chambre des maîtres avec une penderie spacieuse. Le sous-sol possède une superficie de 930 pieds carrés et comporte une pièce de rangement réservée à l’usage du propriétaire, ainsi que l’appartement qui est composé d’une cuisine, d’un salon, d’un placard pour la laveuse et la sécheuse, d’une salle de bains et d’une chambre.

Caractéristiques

Mesures : Impérial

Style d'architecture Urbain Coût de construction 
Montant approximatif équivalent à celui d'un entrepreneur général (région de la Rive-Sud de Montréal) pour une construction clé en main sans terrain ni infrastructures.
471201 $
Façade 38 pi 10 po Surface habitable totale 2741 pi²
Profondeur 36 piNombre de salles de bain 2
Hauteur 30 pi 3 poNombre de chambres 4
Chambre des maîtres Penderie + Portes doubles
Surface rez-de-chaussée 930 pi² Finition extérieure Aluminium + Bois + Pierre
Surface étage 881 pi² Type de cuisine Forme en U + Îlot
Surface garage 266 pi² Garage 1
Mur garage 8 piMur rez-de-chaussée 9 + 10 pi
Mur étage 8 piInclinaison toit avant/arrière 6/12
Inclinaison toit gauche/droite 6/12Surface sous-sol 930 pi²
Style d'architecture Urbain
Coût de construction 
Montant approximatif équivalent à celui d'un entrepreneur général (région de la Rive-Sud de Montréal) pour une construction clé en main sans terrain ni infrastructures.
471201 $
Façade 38 pi 10 po
Surface habitable totale 2741 pi²
Profondeur 36 pi
Nombre de salles de bain 2
Hauteur 30 pi 3 po
Nombre de chambres 4
Chambre des maîtres Penderie + Portes doubles
Surface rez-de-chaussée 930 pi²
Finition extérieure Aluminium + Bois + Pierre
Surface étage 881 pi²
Type de cuisine Forme en U + Îlot
Surface garage 266 pi²
Garage 1
Mur garage 8 pi
Mur rez-de-chaussée 9 + 10 pi
Mur étage 8 pi
Inclinaison toit avant/arrière 6/12
Inclinaison toit gauche/droite 6/12
Surface sous-sol 930 pi²

Ces plans de maison pourraient également vous intéresser


Vu récemment