23103
23103
23103
23103

23103


Ce plan est offert en plusieurs variations. Vous pouvez consulter les variations en choissant un numéro de plan dans le menu ci-dessous. Les plans techniques dans les images ainsi que le tableau des caractéristiques et dimensions se mettront automatiquement à jour.


Jeux de plans - Sets of plans
Prix régulier$1,440.00
/

Ce site est protégé par hCaptcha, et la Politique de confidentialité et les Conditions de service de hCaptcha s’appliquent.

Description

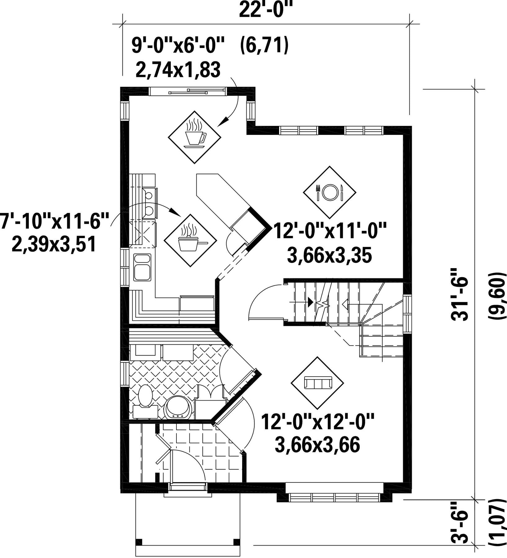
Vestibule fermé

Caractéristiques

Mesures : Impérial

Style d'architecture Européen Coût de construction 
Montant approximatif équivalent à celui d'un entrepreneur général (région de la Rive-Sud de Montréal) pour une construction clé en main sans terrain ni infrastructures.
236223 $
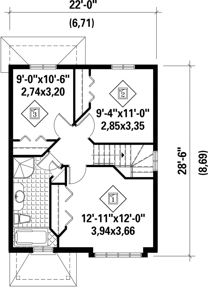
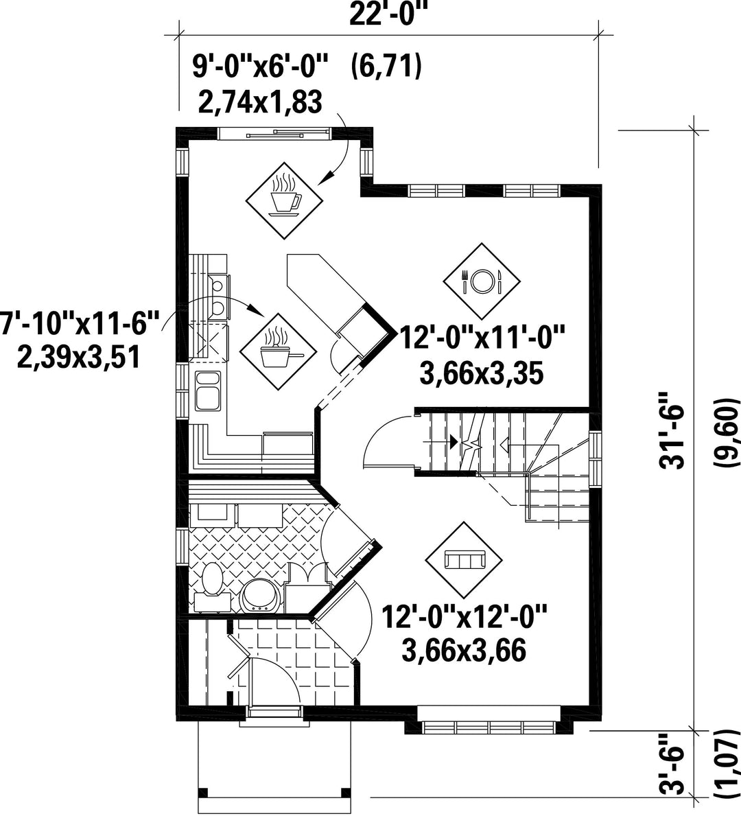
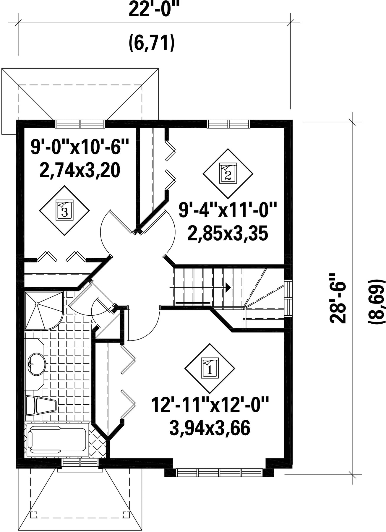
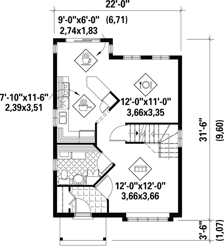
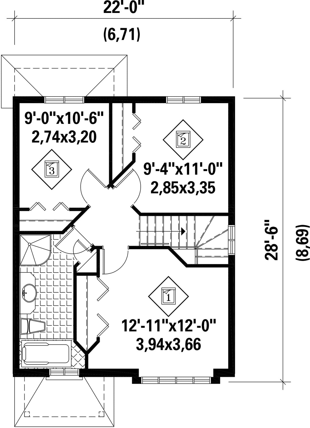
Façade 22 pi Surface habitable totale 1272 pi²
Profondeur 31 pi 6 poNombre de salles de bain 1
Hauteur 29 pi 5 poNombre de chambres 3
Chambre des maîtres - commentaires Garde-robe
Surface rez-de-chaussée 651 pi² Finition extérieure Aluminium + Brique + Écailles de poisson
Surface étage 621 pi² Type de cuisine Coin repas + Forme en L + Salle à manger
Garage 0
Mur rez-de-chaussée 8 pi
Mur étage 8 piInclinaison toit avant/arrière 14/12
Inclinaison toit gauche/droite 10/12
Style d'architecture Européen
Coût de construction 
Montant approximatif équivalent à celui d'un entrepreneur général (région de la Rive-Sud de Montréal) pour une construction clé en main sans terrain ni infrastructures.
236223 $
Façade 22 pi
Surface habitable totale 1272 pi²
Profondeur 31 pi 6 po
Nombre de salles de bain 1
Hauteur 29 pi 5 po
Nombre de chambres 3
Chambre des maîtres - commentaires Garde-robe
Surface rez-de-chaussée 651 pi²
Finition extérieure Aluminium + Brique + Écailles de poisson
Surface étage 621 pi²
Type de cuisine Coin repas + Forme en L + Salle à manger
Garage 0
Mur rez-de-chaussée 8 pi
Mur étage 8 pi
Inclinaison toit avant/arrière 14/12
Inclinaison toit gauche/droite 10/12

Ces plans de maison pourraient également vous intéresser


Vu récemment