20528
20528
20528
20528
20528
20528

20528


Jeux de plans - Sets of plans
Prix régulier$1,640.00
/

Ce site est protégé par hCaptcha, et la Politique de confidentialité et les Conditions de service de hCaptcha s’appliquent.

Description

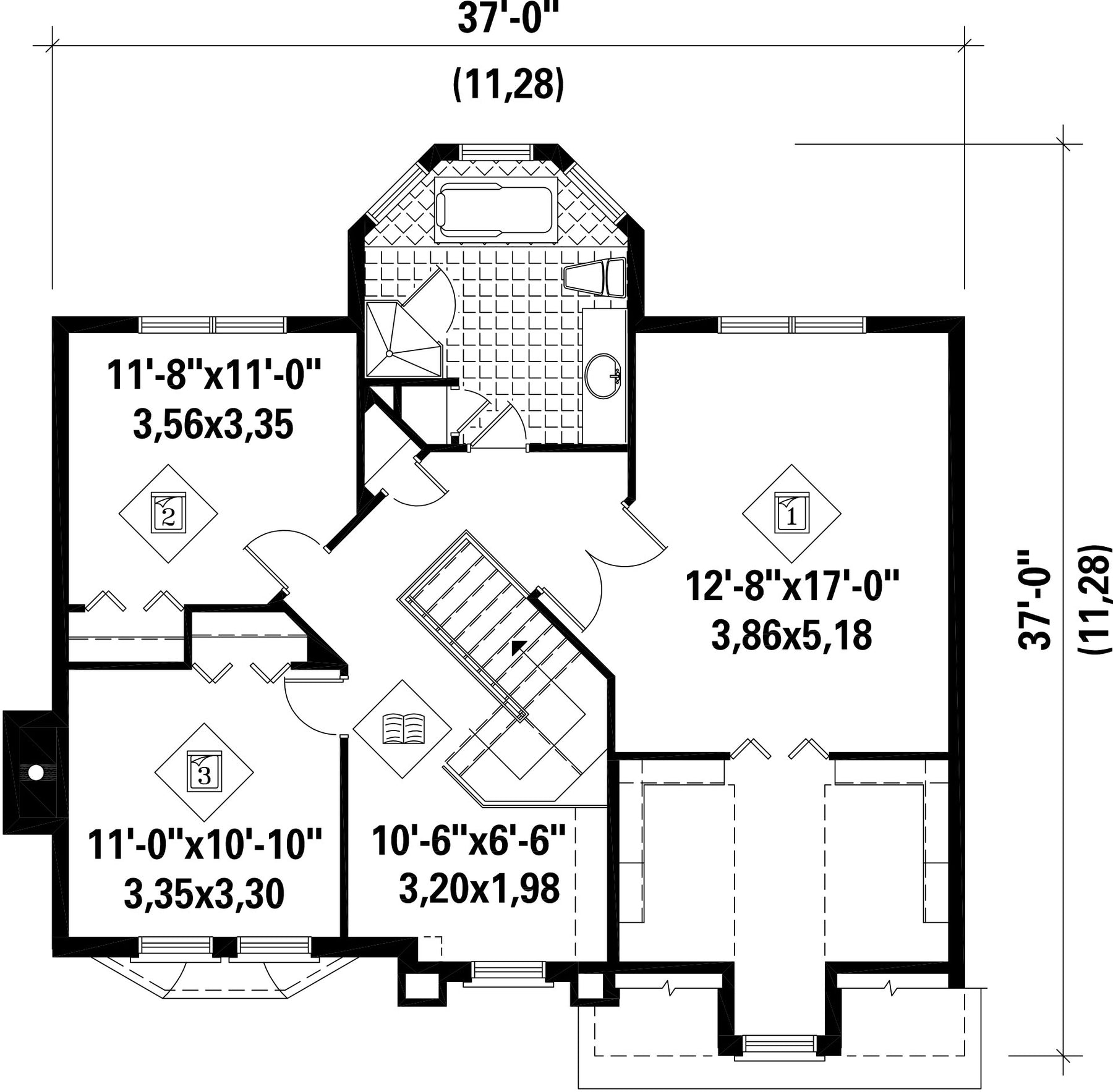
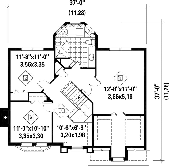
"Vestibule fermé Coin lecture à l'étage Grande penderie avec lucarne dans la chambre des maîtres Laveuse et sécheuse au rez-de-chaussée"

Caractéristiques

Mesures : Impérial

Style d'architecture Européen Coût de construction 
Montant approximatif équivalent à celui d'un entrepreneur général (région de la Rive-Sud de Montréal) pour une construction clé en main sans terrain ni infrastructures.
363877 $
Façade 37 pi Surface habitable totale 1881 pi²
Profondeur 37 piNombre de salles de bain 1
Hauteur 32 pi 4 poNombre de chambres 3
Chambre des maîtres Penderie + Portes doubles Chambre des maîtres - commentaires Penderie en cathédrale
Surface rez-de-chaussée 812 pi² Finition extérieure Aluminium + Brique
Surface étage 1069 pi² Type de cuisine Coin repas + Salle à manger
Surface garage 300 pi² Garage 1
Mur garage 8 piMur rez-de-chaussée 8 pi
Mur étage 8 piInclinaison toit avant/arrière 10/12
Inclinaison toit gauche/droite 12/12
Style d'architecture Européen
Coût de construction 
Montant approximatif équivalent à celui d'un entrepreneur général (région de la Rive-Sud de Montréal) pour une construction clé en main sans terrain ni infrastructures.
363877 $
Façade 37 pi
Surface habitable totale 1881 pi²
Profondeur 37 pi
Nombre de salles de bain 1
Hauteur 32 pi 4 po
Nombre de chambres 3
Chambre des maîtres Penderie + Portes doubles
Chambre des maîtres - commentaires Penderie en cathédrale
Surface rez-de-chaussée 812 pi²
Finition extérieure Aluminium + Brique
Surface étage 1069 pi²
Type de cuisine Coin repas + Salle à manger
Surface garage 300 pi²
Garage 1
Mur garage 8 pi
Mur rez-de-chaussée 8 pi
Mur étage 8 pi
Inclinaison toit avant/arrière 10/12
Inclinaison toit gauche/droite 12/12

Ces plans de maison pourraient également vous intéresser


Vu récemment