Description
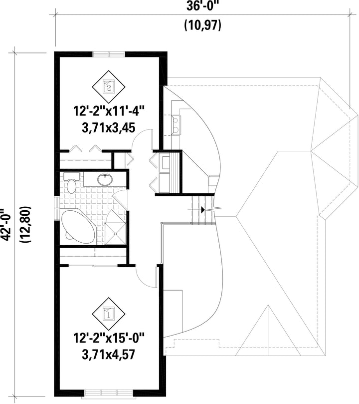
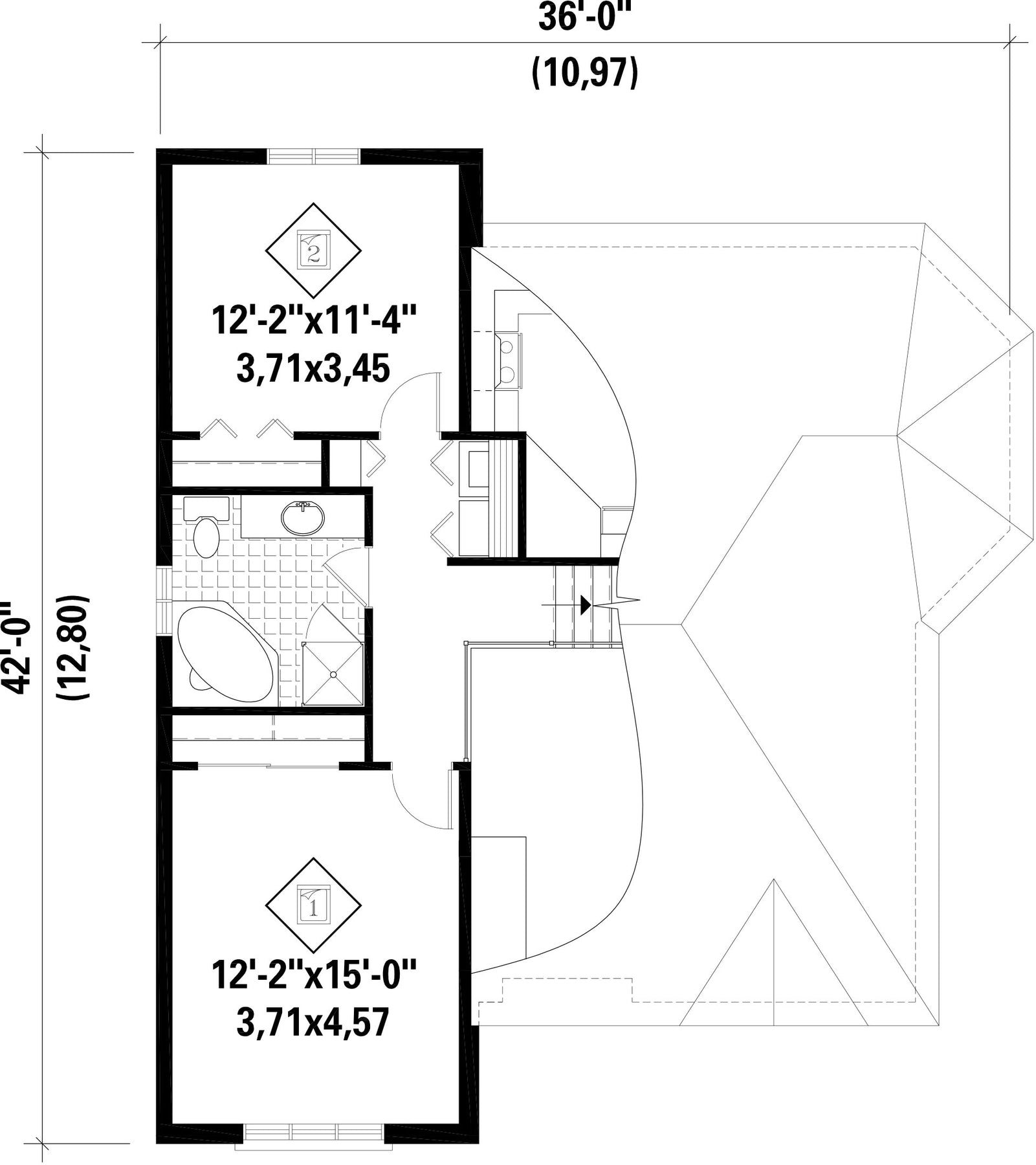
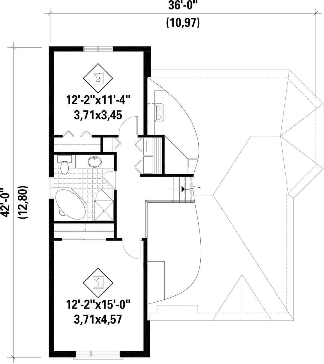
Cette jolie maison à paliers est très lumineuse grâce à sa fenestration abondante. La résidence mesure 36 pieds de largeur sur 42 pieds de profondeur et sa surface habitable est de 1 514 pieds carrés.
Elle comprend deux chambres, deux salles de bain, une salle familiale, une cuisine, une salle à manger, un salon et un garage simple attenant à la maison.
Elle comprend deux chambres, deux salles de bain, une salle familiale, une cuisine, une salle à manger, un salon et un garage simple attenant à la maison.
Caractéristiques
Mesures : Impérial| Style d'architecture | Classique |
Coût de construction
Montant approximatif équivalent à celui d'un entrepreneur général (région de la Rive-Sud de Montréal) pour une construction clé en main sans terrain ni infrastructures.
|
348615 $ |
|---|---|---|---|
| Façade | 36 pi | Surface habitable totale | 1514 pi² |
| Profondeur | 42 pi | Nombre de salles de bain | 2 |
| Hauteur | 27 pi 6 po | Nombre de chambres | 2 |
| Chambre des maîtres - commentaires | Chambre des maîtres de bonnes dimensions | ||
| Surface rez-de-chaussée | 931 pi² | Finition extérieure | Aluminium + Brique |
| Surface étage | 583 pi² | Type de cuisine | Forme en U + Salle à manger |
| Surface garage | 270 pi² | Garage | 1 |
| Mur garage | 8 pi | Mur rez-de-chaussée | 8 pi |
| Mur étage | 8 pi | ||
| Inclinaison toit gauche/droite | 14/12 |
| Style d'architecture | Classique |
|---|---|
|
Coût de construction
Montant approximatif équivalent à celui d'un entrepreneur général (région de la Rive-Sud de Montréal) pour une construction clé en main sans terrain ni infrastructures.
|
348615 $ |
| Façade | 36 pi |
| Surface habitable totale | 1514 pi² |
| Profondeur | 42 pi |
| Nombre de salles de bain | 2 |
| Hauteur | 27 pi 6 po |
| Nombre de chambres | 2 |
| Chambre des maîtres - commentaires | Chambre des maîtres de bonnes dimensions |
| Surface rez-de-chaussée | 931 pi² |
| Finition extérieure | Aluminium + Brique |
| Surface étage | 583 pi² |
| Type de cuisine | Forme en U + Salle à manger |
| Surface garage | 270 pi² |
| Garage | 1 |
| Mur garage | 8 pi |
| Mur rez-de-chaussée | 8 pi |
| Mur étage | 8 pi |
| Inclinaison toit gauche/droite | 14/12 |