Description
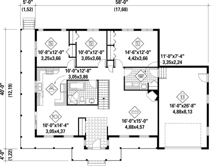
Cette magnifique maison de plain-pied se distingue par sa grande véranda. Elle fait 58 pieds de largeur sur 40 pieds de profondeur et occupe une surface habitable de 1 526 pieds carrés. Elle dispose d’un garage simple de 459 pieds carrés.
La demeure comprend une salle à manger, une cuisine, un salon avec foyer en coin, une salle de bains, une salle de lavage et trois chambres dont une chambre des maîtres qui dispose de deux penderies.
La demeure comprend une salle à manger, une cuisine, un salon avec foyer en coin, une salle de bains, une salle de lavage et trois chambres dont une chambre des maîtres qui dispose de deux penderies.
Caractéristiques
Mesures : Impérial| Style d'architecture | Classique |
Coût de construction
Montant approximatif équivalent à celui d'un entrepreneur général (région de la Rive-Sud de Montréal) pour une construction clé en main sans terrain ni infrastructures.
|
415648 $ |
|---|---|---|---|
| Façade | 58 pi | Surface habitable totale | 1526 pi² |
| Profondeur | 40 pi | Nombre de salles de bain | 1 |
| Hauteur | 23 pi | Nombre de chambres | 3 |
| Chambre des maîtres - commentaires | 2 garde-robes | ||
| Surface rez-de-chaussée | 1526 pi² | Finition extérieure | Aluminium |
| Type de cuisine | Salle à manger | ||
| Surface garage | 459 pi² | Garage | 1 |
| Mur garage | 8 pi | Mur rez-de-chaussée | 8 pi |
| Inclinaison toit avant/arrière | 7/12 | ||
| Style d'architecture | Classique |
|---|---|
|
Coût de construction
Montant approximatif équivalent à celui d'un entrepreneur général (région de la Rive-Sud de Montréal) pour une construction clé en main sans terrain ni infrastructures.
|
415648 $ |
| Façade | 58 pi |
| Surface habitable totale | 1526 pi² |
| Profondeur | 40 pi |
| Nombre de salles de bain | 1 |
| Hauteur | 23 pi |
| Nombre de chambres | 3 |
| Chambre des maîtres - commentaires | 2 garde-robes |
| Surface rez-de-chaussée | 1526 pi² |
| Finition extérieure | Aluminium |
| Type de cuisine | Salle à manger |
| Surface garage | 459 pi² |
| Garage | 1 |
| Mur garage | 8 pi |
| Mur rez-de-chaussée | 8 pi |
| Inclinaison toit avant/arrière | 7/12 |