10025
10025
10025
10025

10025


Jeux de plans - Sets of plans
Prix régulier$1,240.00
/

Ce site est protégé par hCaptcha, et la Politique de confidentialité et les Conditions de service de hCaptcha s’appliquent.

Description

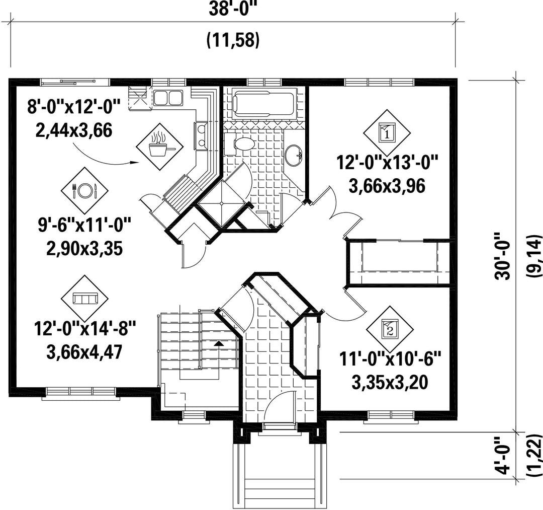
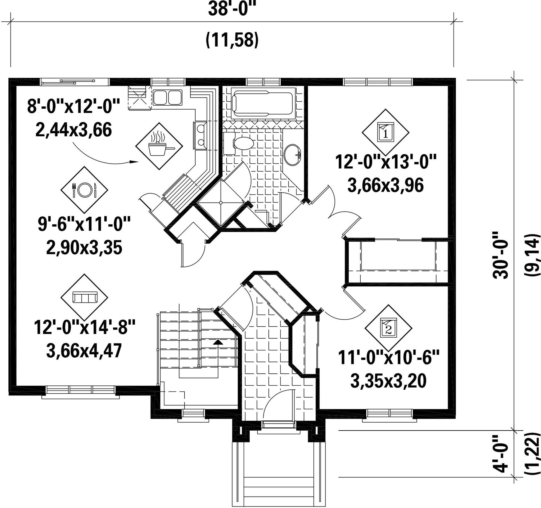
Maison à aire ouverte

Caractéristiques

Mesures : Impérial

Style d'architecture Classique Coût de construction 
Montant approximatif équivalent à celui d'un entrepreneur général (région de la Rive-Sud de Montréal) pour une construction clé en main sans terrain ni infrastructures.
262958 $
Façade 38 pi Surface habitable totale 1086 pi²
Profondeur 30 piNombre de salles de bain 1
Hauteur 25 pi 4 poNombre de chambres 2
Chambre des maîtres Penderie + Portes doubles Chambre des maîtres - commentaires Grande fenêtre
Surface rez-de-chaussée 1086 pi² Finition extérieure Agrégats + Aluminium + Brique + Pierre
Garage 0
Mur rez-de-chaussée 8 pi
Inclinaison toit avant/arrière 9/12
Inclinaison toit gauche/droite 12/12
Style d'architecture Classique
Coût de construction 
Montant approximatif équivalent à celui d'un entrepreneur général (région de la Rive-Sud de Montréal) pour une construction clé en main sans terrain ni infrastructures.
262958 $
Façade 38 pi
Surface habitable totale 1086 pi²
Profondeur 30 pi
Nombre de salles de bain 1
Hauteur 25 pi 4 po
Nombre de chambres 2
Chambre des maîtres Penderie + Portes doubles
Chambre des maîtres - commentaires Grande fenêtre
Surface rez-de-chaussée 1086 pi²
Finition extérieure Agrégats + Aluminium + Brique + Pierre
Garage 0
Mur rez-de-chaussée 8 pi
Inclinaison toit avant/arrière 9/12
Inclinaison toit gauche/droite 12/12

Ces plans de maison pourraient également vous intéresser


Vu récemment