06797
06797
06797
06797
06797
06797

06797


Jeux de plans - Sets of plans
Prix régulier$1,233.00
/

Ce site est protégé par hCaptcha, et la Politique de confidentialité et les Conditions de service de hCaptcha s’appliquent.

Description

Puits de lumière dans la salle à manger

Caractéristiques

Mesures : Impérial

Style d'architecture Européen Coût de construction 
Montant approximatif équivalent à celui d'un entrepreneur général (région de la Rive-Sud de Montréal) pour une construction clé en main sans terrain ni infrastructures.
511688 $
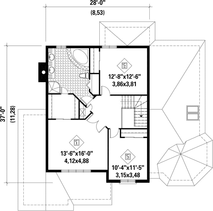
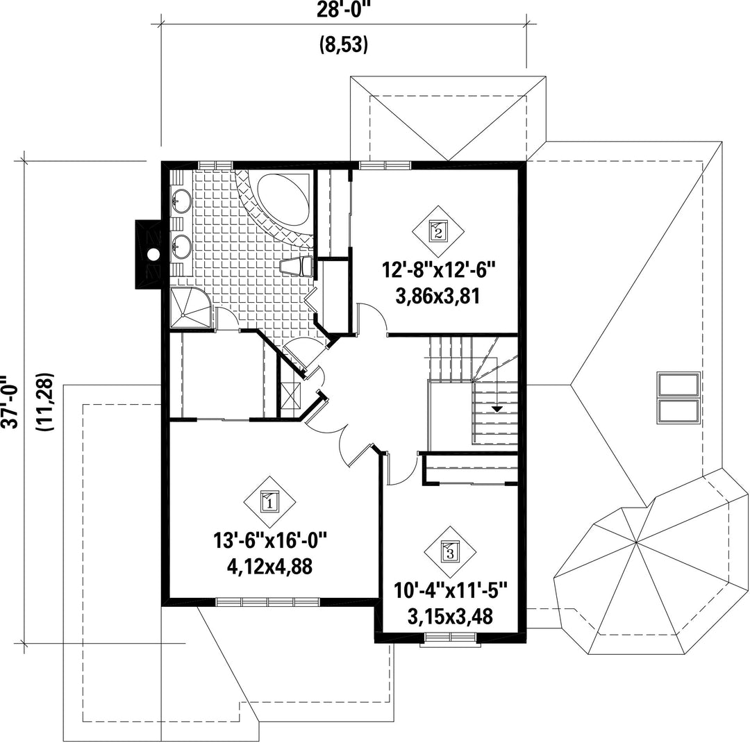
Façade 49 pi 6 po Surface habitable totale 2260 pi²
Profondeur 48 piNombre de salles de bain 1
Hauteur 29 piNombre de chambres 3
Chambre des maîtres Penderie + Portes doubles Chambre des maîtres - commentaires Accès salle de bain
Surface rez-de-chaussée 1270 pi² Finition extérieure Aluminium + Brique
Surface étage 990 pi² Type de cuisine Coin repas + Comptoir repas + Forme en U
Surface garage 527 pi² Garage 2
Mur garage 8 piMur rez-de-chaussée 8 pi
Mur étage 8 piInclinaison toit avant/arrière 5/12
Inclinaison toit gauche/droite 8/12
Style d'architecture Européen
Coût de construction 
Montant approximatif équivalent à celui d'un entrepreneur général (région de la Rive-Sud de Montréal) pour une construction clé en main sans terrain ni infrastructures.
511688 $
Façade 49 pi 6 po
Surface habitable totale 2260 pi²
Profondeur 48 pi
Nombre de salles de bain 1
Hauteur 29 pi
Nombre de chambres 3
Chambre des maîtres Penderie + Portes doubles
Chambre des maîtres - commentaires Accès salle de bain
Surface rez-de-chaussée 1270 pi²
Finition extérieure Aluminium + Brique
Surface étage 990 pi²
Type de cuisine Coin repas + Comptoir repas + Forme en U
Surface garage 527 pi²
Garage 2
Mur garage 8 pi
Mur rez-de-chaussée 8 pi
Mur étage 8 pi
Inclinaison toit avant/arrière 5/12
Inclinaison toit gauche/droite 8/12

Ces plans de maison pourraient également vous intéresser


Vu récemment