04111
04111
04111
04111

04111


Jeux de plans - Sets of plans
Prix régulier$945.00
/

Ce site est protégé par hCaptcha, et la Politique de confidentialité et les Conditions de service de hCaptcha s’appliquent.

Description

"Rangement Mezzanine Salle de lecture"

Caractéristiques

Mesures : Impérial

Style d'architecture Champêtre Coût de construction 
Montant approximatif équivalent à celui d'un entrepreneur général (région de la Rive-Sud de Montréal) pour une construction clé en main sans terrain ni infrastructures.
236264 $
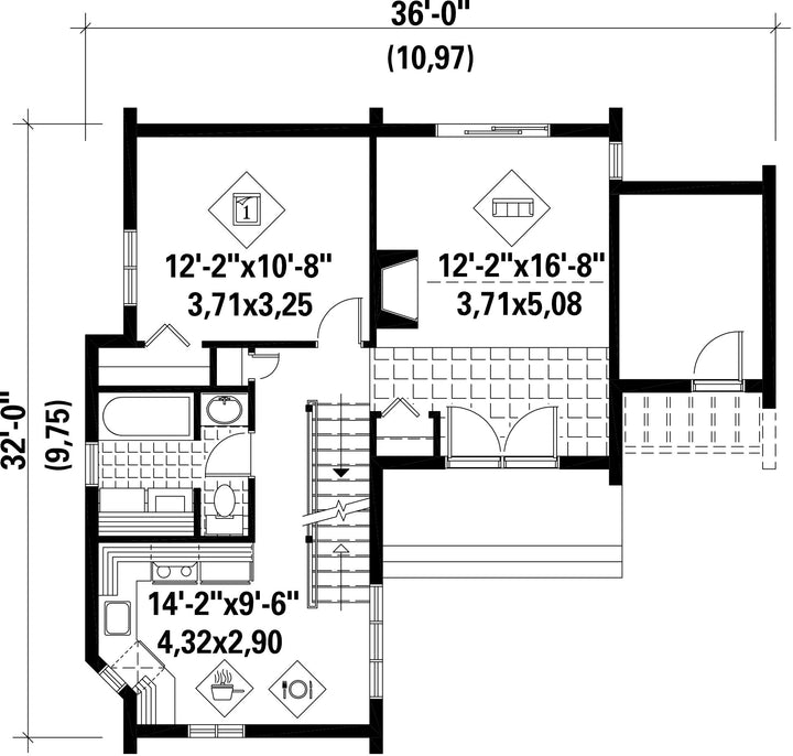
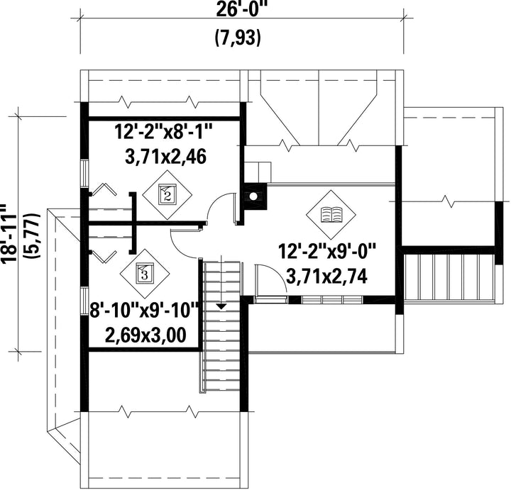
Façade 36 pi Surface habitable totale 1044 pi²
Profondeur 32 piNombre de salles de bain 1
Hauteur 27 pi 6 poNombre de chambres 3
Chambre des maîtres - commentaires Garde-robe
Surface rez-de-chaussée 693 pi² Finition extérieure Bois
Surface étage 351 pi² Type de cuisine Forme en L
Garage 0
Mur rez-de-chaussée 8 pi
Mur étage 8 piInclinaison toit avant/arrière 7/12 + 12/12
Style d'architecture Champêtre
Coût de construction 
Montant approximatif équivalent à celui d'un entrepreneur général (région de la Rive-Sud de Montréal) pour une construction clé en main sans terrain ni infrastructures.
236264 $
Façade 36 pi
Surface habitable totale 1044 pi²
Profondeur 32 pi
Nombre de salles de bain 1
Hauteur 27 pi 6 po
Nombre de chambres 3
Chambre des maîtres - commentaires Garde-robe
Surface rez-de-chaussée 693 pi²
Finition extérieure Bois
Surface étage 351 pi²
Type de cuisine Forme en L
Garage 0
Mur rez-de-chaussée 8 pi
Mur étage 8 pi
Inclinaison toit avant/arrière 7/12 + 12/12

Ces plans de maison pourraient également vous intéresser


Vu récemment