03991
03991
03991

03991


Jeux de plans - Sets of plans
Prix régulier$1,035.00
/

Ce site est protégé par hCaptcha, et la Politique de confidentialité et les Conditions de service de hCaptcha s’appliquent.

Description

Descente au sous-sol

Caractéristiques

Mesures : Impérial

Style d'architecture Classique Coût de construction 
Montant approximatif équivalent à celui d'un entrepreneur général (région de la Rive-Sud de Montréal) pour une construction clé en main sans terrain ni infrastructures.
337505 $
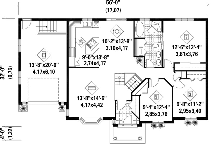
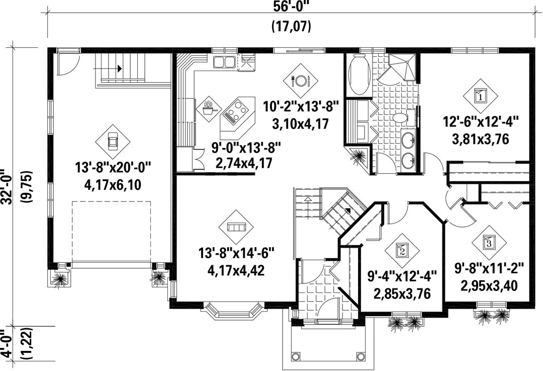
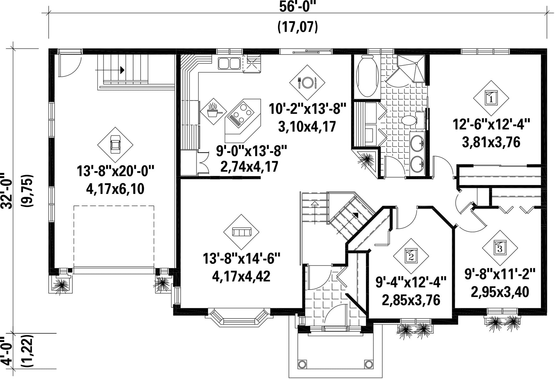
Façade 56 pi Surface habitable totale 1278 pi²
Profondeur 32 piNombre de salles de bain 1
Hauteur 20 pi 10 poNombre de chambres 3
Chambre des maîtres - commentaires PORTE COULISSANTE
Surface rez-de-chaussée 1278 pi² Finition extérieure Aluminium + Brique
Type de cuisine Comptoir repas + Forme en L + Îlot
Surface garage 366 pi² Garage 1
Mur garage 8 piMur rez-de-chaussée 8 pi
Inclinaison toit avant/arrière 6/12
Style d'architecture Classique
Coût de construction 
Montant approximatif équivalent à celui d'un entrepreneur général (région de la Rive-Sud de Montréal) pour une construction clé en main sans terrain ni infrastructures.
337505 $
Façade 56 pi
Surface habitable totale 1278 pi²
Profondeur 32 pi
Nombre de salles de bain 1
Hauteur 20 pi 10 po
Nombre de chambres 3
Chambre des maîtres - commentaires PORTE COULISSANTE
Surface rez-de-chaussée 1278 pi²
Finition extérieure Aluminium + Brique
Type de cuisine Comptoir repas + Forme en L + Îlot
Surface garage 366 pi²
Garage 1
Mur garage 8 pi
Mur rez-de-chaussée 8 pi
Inclinaison toit avant/arrière 6/12

Ces plans de maison pourraient également vous intéresser


Vu récemment