03822
03822
03822
03822

03822


Jeux de plans - Sets of plans
Prix régulier$1,134.00
/

Ce site est protégé par hCaptcha, et la Politique de confidentialité et les Conditions de service de hCaptcha s’appliquent.

Description

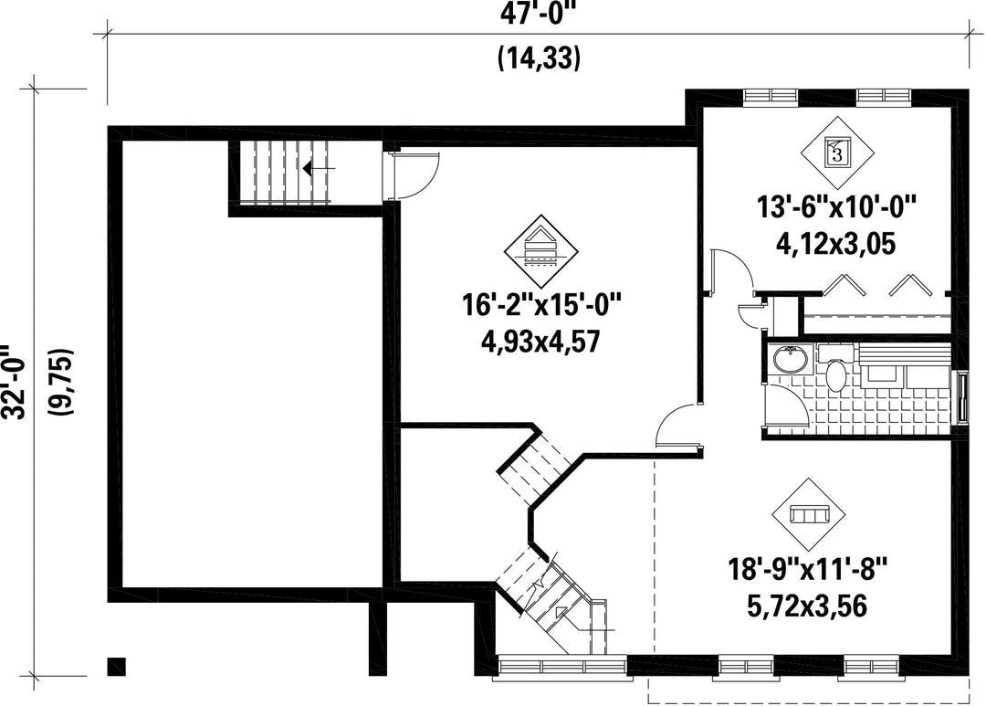
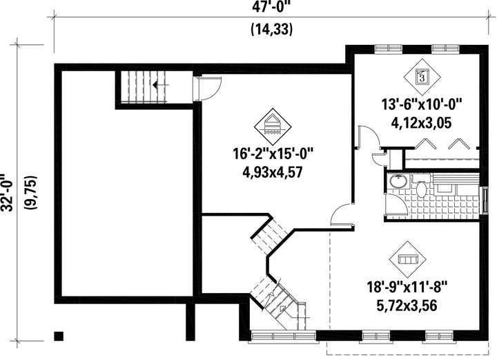
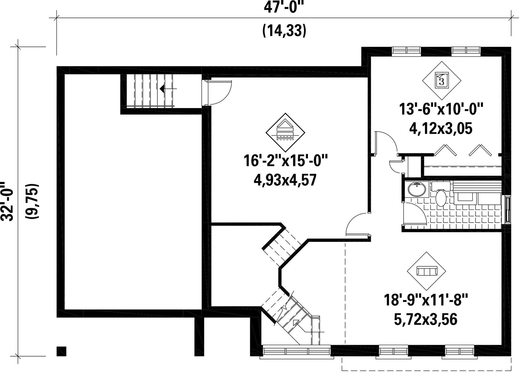
Laveuse et sécheuse au sous-sol

Caractéristiques

Mesures : Impérial

Style d'architecture Classique Coût de construction 
Montant approximatif équivalent à celui d'un entrepreneur général (région de la Rive-Sud de Montréal) pour une construction clé en main sans terrain ni infrastructures.
307523 $
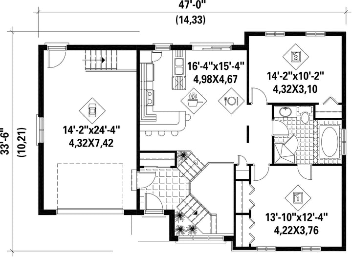
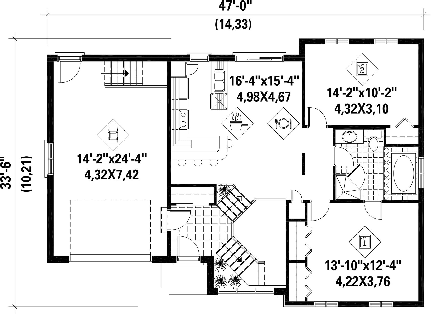
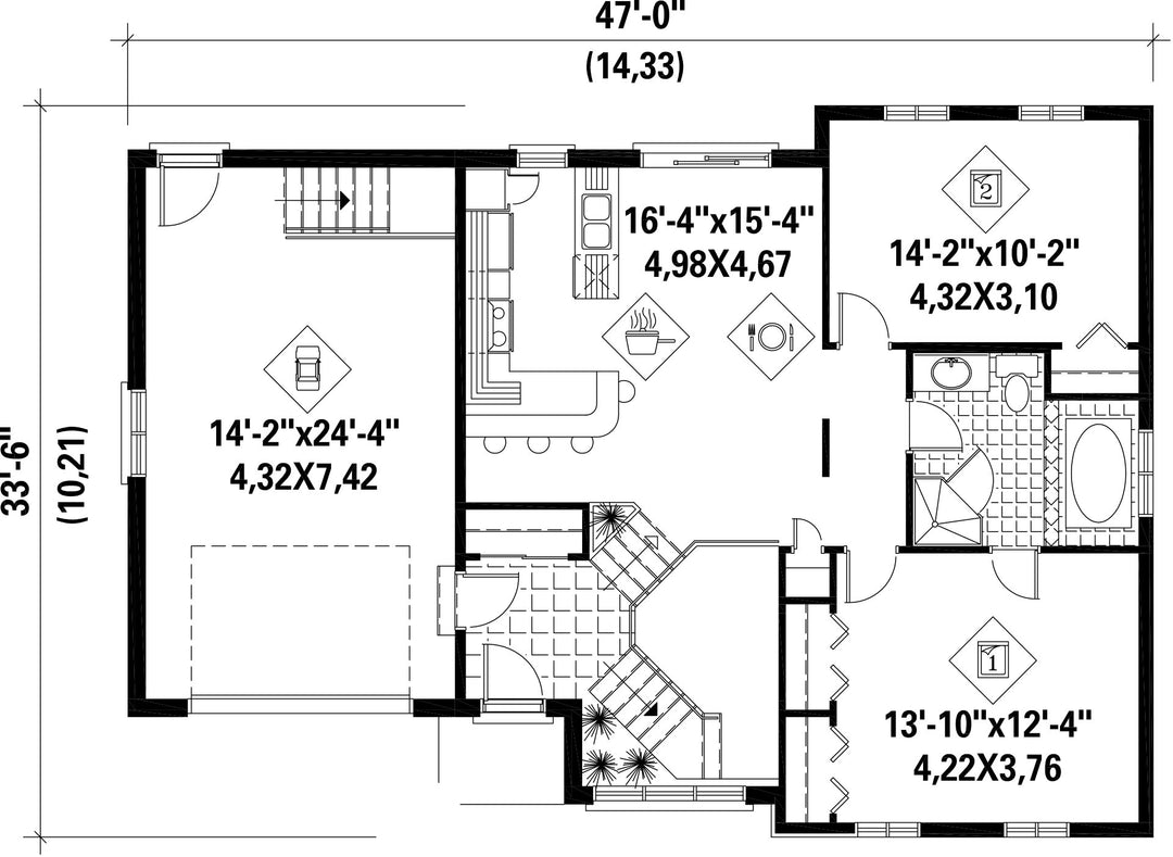
Façade 47 pi Surface habitable totale 1969 pi²
Profondeur 33 pi 6 poNombre de salles de bain 2
Hauteur 21 pi 10 poNombre de chambres 3
Chambre des maîtres - commentaires 2 GARDE-ROBES
Surface rez-de-chaussée 998 pi² Finition extérieure Aluminium + Bois + Brique
Type de cuisine Comptoir repas
Surface garage 390 pi² Garage 1
Mur garage 8 piMur rez-de-chaussée 8 pi
Inclinaison toit avant/arrière 6/12
Surface sous-sol 971 pi²
Style d'architecture Classique
Coût de construction 
Montant approximatif équivalent à celui d'un entrepreneur général (région de la Rive-Sud de Montréal) pour une construction clé en main sans terrain ni infrastructures.
307523 $
Façade 47 pi
Surface habitable totale 1969 pi²
Profondeur 33 pi 6 po
Nombre de salles de bain 2
Hauteur 21 pi 10 po
Nombre de chambres 3
Chambre des maîtres - commentaires 2 GARDE-ROBES
Surface rez-de-chaussée 998 pi²
Finition extérieure Aluminium + Bois + Brique
Type de cuisine Comptoir repas
Surface garage 390 pi²
Garage 1
Mur garage 8 pi
Mur rez-de-chaussée 8 pi
Inclinaison toit avant/arrière 6/12
Surface sous-sol 971 pi²

Ces plans de maison pourraient également vous intéresser


Vu récemment