Description
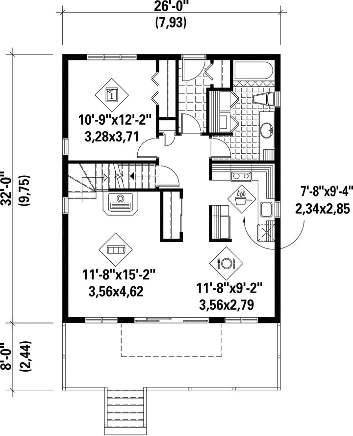
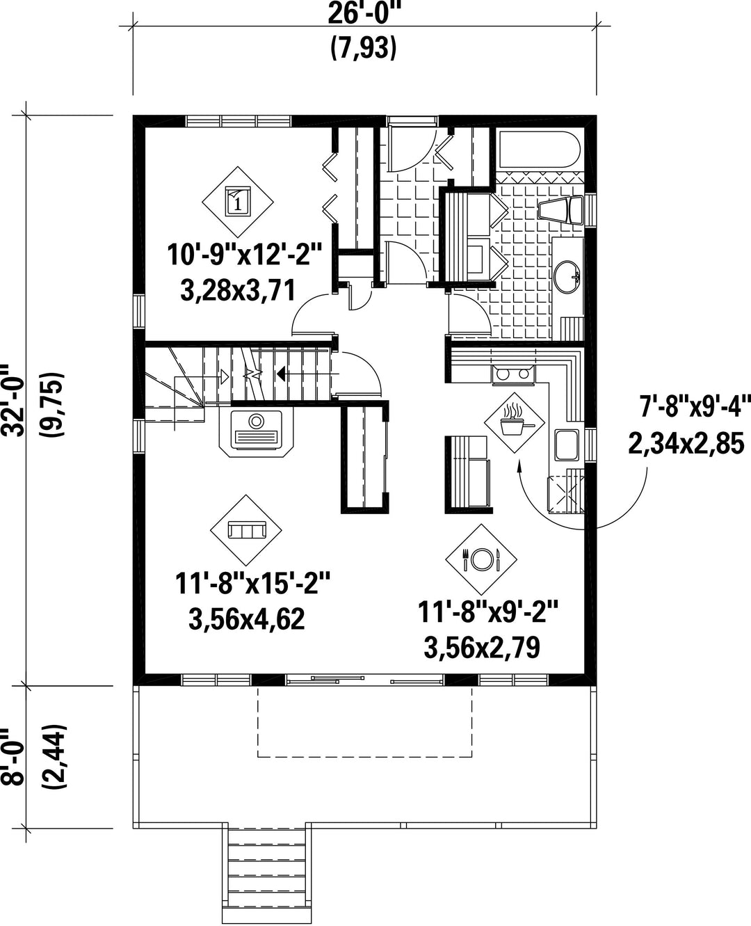
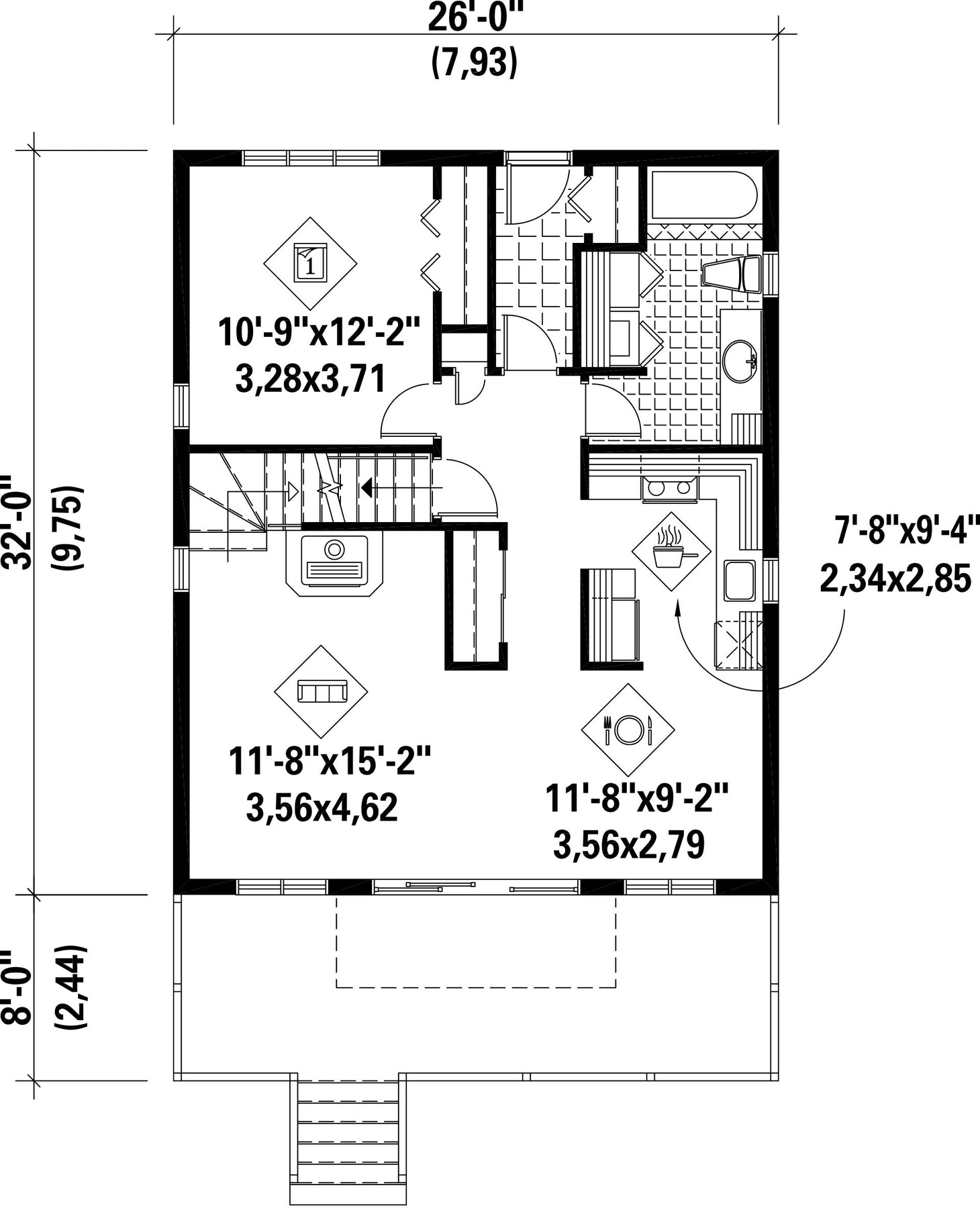
Pour profiter du grand air, quoi de mieux que ce joli chalet avec sa grande terrasse. La maison mesure 26 pieds de largeur sur 32 pieds de profondeur, et offre une surface habitable de 1 286 pieds carrés.
Le rez-de-chaussée fait 832 pieds carrés et on y retrouve un salon avec un foyer et une salle à manger à aire ouverte, une cuisine, une salle de bains et une chambre.
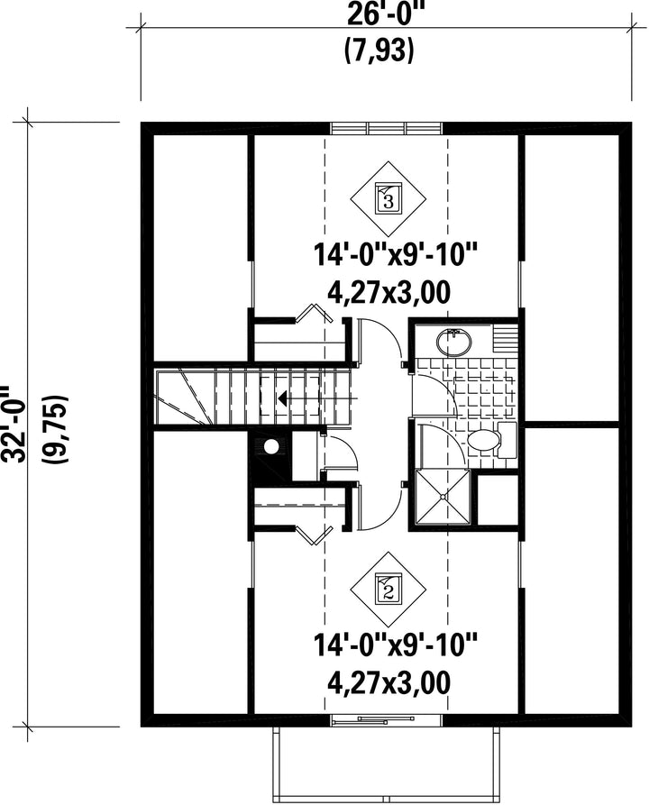
L’étage de 454 pieds carré comprend une salle de bains et deux chambres dont celle des maîtres qui dispose d’une grande porte-fenêtre.
Le rez-de-chaussée fait 832 pieds carrés et on y retrouve un salon avec un foyer et une salle à manger à aire ouverte, une cuisine, une salle de bains et une chambre.
L’étage de 454 pieds carré comprend une salle de bains et deux chambres dont celle des maîtres qui dispose d’une grande porte-fenêtre.
Caractéristiques
Mesures : Impérial| Style d'architecture | Suisse |
Coût de construction
Montant approximatif équivalent à celui d'un entrepreneur général (région de la Rive-Sud de Montréal) pour une construction clé en main sans terrain ni infrastructures.
|
261929 $ |
|---|---|---|---|
| Façade | 26 pi | Surface habitable totale | 1286 pi² |
| Profondeur | 32 pi | Nombre de salles de bain | 2 |
| Hauteur | 25 pi 10 po | Nombre de chambres | 3 |
| Chambre des maîtres - commentaires | GRANDE FENÊTRE | ||
| Surface rez-de-chaussée | 832 pi² | Finition extérieure | Aluminium |
| Surface étage | 454 pi² | Type de cuisine | Forme en U + Laboratoire + Salle à manger |
| Garage | 0 | ||
| Mur rez-de-chaussée | 8 pi | ||
| Mur étage | 8 pi | ||
| Inclinaison toit gauche/droite | 10/12 |
| Style d'architecture | Suisse |
|---|---|
|
Coût de construction
Montant approximatif équivalent à celui d'un entrepreneur général (région de la Rive-Sud de Montréal) pour une construction clé en main sans terrain ni infrastructures.
|
261929 $ |
| Façade | 26 pi |
| Surface habitable totale | 1286 pi² |
| Profondeur | 32 pi |
| Nombre de salles de bain | 2 |
| Hauteur | 25 pi 10 po |
| Nombre de chambres | 3 |
| Chambre des maîtres - commentaires | GRANDE FENÊTRE |
| Surface rez-de-chaussée | 832 pi² |
| Finition extérieure | Aluminium |
| Surface étage | 454 pi² |
| Type de cuisine | Forme en U + Laboratoire + Salle à manger |
| Garage | 0 |
| Mur rez-de-chaussée | 8 pi |
| Mur étage | 8 pi |
| Inclinaison toit gauche/droite | 10/12 |